Exterior Design
This compact Craftsman plan features **approximately 1,000 sq ft** of living area, designed with charm and efficiency in mind.
The exterior likely incorporates classic Craftsman elements—such as low-sloped gable roofs, exposed rafter tails, tapered columns on stone or masonry piers, and mixed siding textures (e.g. clapboard with shingle accents).
A modest **covered front porch** lends a welcoming transition from outdoors to indoors.

Interior Layout
All living spaces fall on a single level, maximizing accessibility and reducing construction complexity.
Typically, the layout would center the living, dining, and kitchen in a contiguous open zone, with the bedrooms arranged off one or two short halls to maintain compactness and minimize wasted circulation.
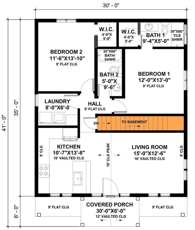
Floor Plan:



Bedrooms & Bathrooms
The plan includes **2 bedrooms**—a master and a secondary bedroom.
There is **1 full bathroom**, likely located to serve both bedrooms while also accessible from the common area with minimal hallway travel.
Closets for bedrooms would be sized appropriately for a home of this scale—modest but functional.

Living & Dining Spaces
The living/dining area would be open and connected to enhance the sense of space. Even in 1,000 sq ft, the arrangement can feel generous by eliminating redundant corridors.
Windows around this zone, along with the front porch and possibly side or rear glazing, bring daylight deep into the core.

Kitchen Features
The kitchen is integrated into the common zone, likely with efficient runs of cabinetry and a compact work triangle. It could include a small island or peninsula (depending on detailed plan) to support prep and limited seating.
Proximity to the dining area ensures the cook remains part of daily conversation and interaction.

Outdoor Living (porch, deck, patio, etc.)
The front covered porch provides sheltered outdoor living—ideal for seating, potted plants, or simply a place to pause before entering.
Although not explicitly stated, a rear patio or deck extension would be a practical addition, especially accessed from the living or dining area.

Garage & Storage
This plan does **not appear to include a garage** in its published form.
Storage is likely handled by bedroom closets, cabinetry in the kitchen or living zones, and possibly a utility or storage closet off the hallway or entry.
Bonus/Expansion Rooms
No bonus room or second floor is indicated in the plan’s base description.
Given the roof shape, there may be potential for attic storage or a very small loft, depending on structural capacity and local building codes.

Estimated Building Cost
The estimated cost to build this home in the United States ranges between $220,000 – $380,000, varying by region, material quality, site conditions, and finish level.
Plan 420082WNT offers a balanced mix of simplicity, style, and utility. With two bedrooms, a single bathroom, open common areas, and classic Craftsman charm, this compact home is ideal for couples, small families, or as a downsized yet comfortable residence. The efficient layout and outdoor connections enhance livability in a modest footprint.

