Exterior Design
This home brings charm in a compact package. The front façade features sturdy columns set on stone bases, lending a touch of craftsman or bungalow character. 1
The roof is a simple gable design (pitch 6:12) that keeps construction costs down while still delivering visual interest. 2 A modest covered porch spans part of the front, offering a welcoming entry and outdoor seating zone.

Interior Layout
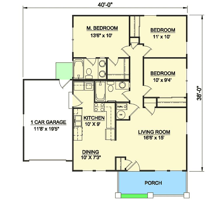
The total heated area is **1,064 sq ft** all on one level. 3 The depth is 38′ and the width is 40′, giving the house a compact footprint of 40′ × 38′. 4
The interior is organized with living spaces in front and private rooms tucked to the rear. The layout is efficient, minimizing corridors. 5
Bedrooms & Bathrooms
The plan includes **3 bedrooms** and **2 full bathrooms**. 6 The bedrooms are grouped at the back of the house for privacy. 7
The master suite features its own private bathroom, while the other two bedrooms share access via a common bath. 8

Living & Dining Spaces
A generous living room opens toward the front and side, with multiple windows for natural light. 9 The living area measures about **16′6″ × 15′** in the floor plan.
The dining area blends with the kitchen space in an open manner, ensuring that daily life flows without obstruction. 11
Kitchen Features
The kitchen is compact but serviceable, measuring roughly **10′ × 9′** in the plan drawing. Cabinets likely wrap around a U-shape or L-shape, allowing efficient storage and workspace. 13
A small pantry or storage space would be a sensible addition behind the scenes, though the standard plan emphasizes economy.

Outdoor Living (porch, deck, patio, etc.)
The front porch is an integral feature, providing a sheltered transition from outdoors to indoors. It adds curb appeal and gives a space for seating or greeting guests. 14
Although there’s no large rear porch shown in the base plan, the layout in the dining / living areas suggests possible rear door access, enabling an outdoor extension if desired.
Garage & Storage
This plan includes a **1-car attached garage** measuring about **11′8″ × 19′5″**. The garage is accessible and close to main living areas for convenience. 17
Storage is handled via bedroom closets and kitchen cabinetry. Because this is a starter home, built-in storage is modest but practical.

Bonus / Expansion Rooms
The plan doesn’t include a formal bonus room, but the roof pitch and attic space might allow for limited storage above. 18 Another option is building outward with a deck or screened room to increase usable space without altering core plan geometry.
Estimated Building Cost
The estimated cost to build this home in the United States ranges between $170,000 – $300,000, depending on location, finishes, labor, and site conditions.
Floor Plan:


Why This Plan Works for First Homes
Plan 12728MA proves that you don’t need a massive home to live comfortably. With 3 bedrooms and 2 baths within just over 1,000 sq ft, it packs practicality into a modest form. The style details—stone column bases, a welcoming porch, balanced proportions—belie its economical nature. The one-level layout simplifies access and reduces maintenance. All in all, this starter home offers a smart balance between affordability, charm, and functionality.














