Exterior Design
This brick-clad beauty blends classic curb appeal with modern functionality. The façade showcases richly textured masonry, crisp trim, and balanced window groupings that frame the entry without overwhelming it. A simple, clean roofline keeps the composition timeless while ensuring construction stays efficient. Modest eaves and well-scaled gables provide just enough shadow play to make the brickwork feel dimensional throughout the day.At the approach, a covered entry welcomes guests out of the weather and sets a gracious tone. The brick continues around the sides to create a sense of permanence and low-maintenance durability—no constant painting or fuss. Thoughtful details—arched lintels, soldier-course accents, and a handsome front door—deliver the “this feels finished” energy before anyone even steps inside.
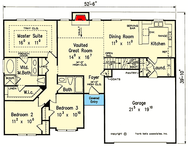
Interior Layout
Inside, the plan emphasizes open sightlines and an intuitive flow. The foyer opens directly to a vaulted great room, drawing the eye upward and across to the rear windows. This vertical lift makes the heart of the home feel larger than its footprint. Living, dining, and kitchen spaces sit in close conversation, so daily life unfolds smoothly—no bottlenecks, no awkward detours around furniture.

A split layout gives the primary suite separation from the secondary bedrooms. Circulation paths are short and logical, allowing more square footage to be dedicated to rooms you’ll actually use. Altogether, you’ll find approximately 1,340 square feet of heated living area on the main level, smartly organized to live big without unnecessary hallway mileage.
Bedrooms & Bathrooms
The home offers 3 bedrooms and 2 full bathrooms. The primary suite sits on its own side of the house, buffered from activity zones for truly restful nights. Expect a well-proportioned bedroom with space for a king bed, a dresser, and a reading chair, plus a walk-in closet with room for seasonal storage.

The primary bath delivers daily ease: dual-sink vanity to end the morning shuffle, a glassy shower for quick starts, and space for linens. Across the plan, two secondary bedrooms share a hall bath. Whether you use them for kids, guests, or a hybrid setup (hello, Peloton + pullout sofa), they’re sized to be comfortable, not cramped. A nearby linen closet keeps towels and toiletries where they belong—within arm’s reach.

Living & Dining Spaces
The great room, crowned by a vaulted ceiling, forms the home’s social hub. It’s easy to picture a fireplace punctuating the main wall with built-in shelving for books, art, or your ever-growing vinyl collection. Windows at the rear capture daylight, while the room’s proportions support multiple furniture arrangements—from a sectional-and-chairs combo to a pair of sofas flanking a generous coffee table.Adjacent, the dining area enjoys a subtly defined footprint that feels connected to the kitchen without being swallowed by it. There’s space for a family-size table and holiday expansions, yet the area stays snug enough to keep conversation close. It’s the kind of setup where Tuesday tacos and Sunday roasts feel equally at home.

Kitchen Features
The kitchen follows a practical C-shaped layout with a central island for prep and seating. This configuration gives you counter on three sides—more elbow room for rolling dough, plating meals, or staging a snack attack before a game. The island doubles as a breakfast perch, homework station, or casual landing spot for friends who gravitate to wherever the food appears (funny how that works).

Storage is handled with a mix of base and wall cabinets plus a walk-in pantry to corral bulk buys and countertop appliances. The work triangle is compact—range, sink, fridge all within easy reach—so cooking feels efficient, not like an obstacle course. With the great room and dining nearby, the cook stays in the conversation instead of yelling updates from a closed-off corner.Floor Plan:

Outdoor Living (porch, deck, patio, etc.)
Outdoor connections are straightforward and flexible. A rear door off the main living zone sets up a natural transition to grilling, dining al fresco, or simply parking a pair of lounge chairs and calling it “vacation mode.” A modest covered entry at the front keeps guests dry and packages shaded, and there’s ample space in back to add a deck, a pergola, or a screened porch later if you’re in the “start now, upgrade later” club.

Because the exterior is mostly brick, maintenance is refreshingly low. Power wash once in a while, check sealants around penetrations, and you’re good. That means more time in the yard, less time on the ladder—everyone’s favorite kind of weekend plan.
Garage & Storage
A 2-car attached garage anchors the façade without dominating it and provides direct access to the home. There’s room along a sidewall for yard tools or a workshop bench if you plan cleverly (pegboard and labeled bins are the secret sauce). Inside, storage shows up where you need it: a coat closet near the entry, a pantry off the kitchen, and bedroom closets that don’t skimp on hanging length.For seasonal overflow, the attic above the main level and the bonus area (more on that next) expand your options. If you’re the type who collects hobbies (kayaks, camping gear, a suspicious number of coolers), you’ll appreciate the flexible storage pathways built into this layout.

Bonus/Expansion Rooms
Above the garage, a bonus space delivers roughly 350 square feet of “choose your own adventure.” Keep it as a playroom now and convert to a teen lounge later; set up a quiet home office; or finish it as a guest retreat for visiting family. Because it’s over the garage, you gain extra square footage without enlarging the footprint—more living, same foundation. That’s value.Detail-minded folks will love how this area can be tailored: add a dormer for light and headroom, tuck in built-in desks or storage, or wire for surround sound and movie nights. It’s a flexible canvas that grows with you, not against you.
Estimated Building Cost
The estimated cost to build this home in the United States ranges between $320,000 – $520,000, depending on location, labor, and material choices.














