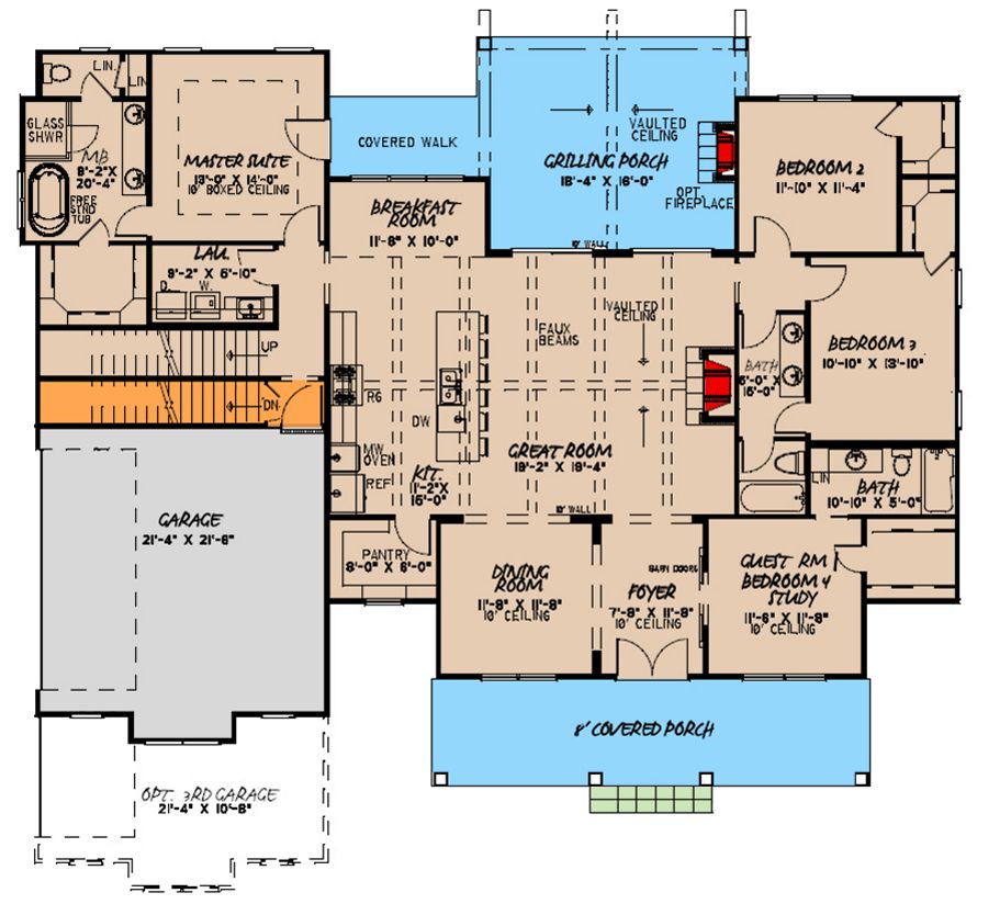
The main level includes a formal foyer with 10′ ceilings, a den/guest room with ensuite bath, and a formal dining room. The great room, kitchen, and breakfast nook flow together under a vaulted ceiling complemented by exposed timber beams. On one side sits a master suite with boxed ceiling, freestanding tub, glass shower, dual vanity, and walk-in closet. Across the home, two secondary bedrooms each with walk-in closets share a hall bath. Over the attached garage is an optional **432 sq. ft. bonus room** for added flexibility. 1
Exterior Design
The curb appeal leans classic-modern: board-and-batten siding rises above a brick skirt which grounds the house visually and adds texture. The welcoming front porch is flanked by dormers and large windows that bring a friendly, open feel. 2 Roof pitches are straightforward, and the overall form keeps complexity moderate—helping manage cost while delivering strong style.

Interior Layout & Flow
Enter via the foyer where 10′ ceilings create an early sense of spaciousness. To one side is a den or guest suite with private bath—ideal for visitors or home office use. Opposite is a formal dining room opening toward the main living zone. The layout encourages movement through the heart: the vaulted great room, kitchen, and breakfast nook create one large, connected living space.



The master suite is placed for privacy, with its own wings subtly separated from the public areas. Secondary bedrooms lie on the opposite wing. A side entry and mud/laundry area link daily life routines to the design in a practical way.
Great Room, Kitchen & Dining
The vaulted great room features exposed timber beams and a fireplace, making it both dramatic and cozy. Visibility to the dining and kitchen ensures social cohesion. The kitchen includes a generous island with bar seating, a walk-in pantry, and space for serious prep work. The breakfast nook sits adjacent, with windows or doors that likely connect to the rear porch for indoor-outdoor flow.


Bedrooms & Bathrooms
The master suite gets premium treatment: boxed ceilings add architectural character, and its bathroom includes a free-standing tub, glass shower, dual vanities, private toilet room, linen closet, and a sizable walk-in closet. 4 The two additional bedrooms each feature walk-in closets and access to a shared bath with separated vanities for convenience.

Bonus Room & Future Flexibility
Above the garage lies a **432 sq. ft. optional bonus room**, ideal for media, gym, guest loft, or playroom. Because it’s tucked over the garage, it adds usable space without altering the main footprint. 5 Also, the plan offers flexibility: you might configure 3 bedrooms with more open gathering space or shift toward a 4-bedroom layout depending on your needs.

Garage, Storage & Extras
The plan includes an attached garage (2 to 3-car options) of about 524 sq. ft. 6 Storage is woven in: walk-in closets in all bedrooms, a large pantry, and mud/laundry zones. The footprint is well considered—structure and flow are balanced so you’re not fighting for every square foot.

Estimated Building Cost
The estimated cost to build this home in the United States ranges between $450,000 – $700,000, depending on region, finishes, labor, and site conditions. Because it combines high ceilings, specialty details (beams, vaulted space), and optional bonus rooms, finish quality plays a major role in budget variation.

Why This Plan Stands Out
Plan 70628MK hits a sweet spot: bold architectural interest without being overcomplicated. The vaulted, beamed great room makes a statement. The balance of formal and casual spaces works for everyday life and entertaining alike. Bedrooms are private yet efficient. And that bonus room over the garage? A smart way to expand later without redoing the core. If you want a modern farmhouse that blends elegance, flexibility, and thoughtful design, this one deserves to be on your shortlist.

