DREAM HOMES
  • Home
  • Tiny House
  • Two Bedrooms
  • Three Bedrooms
  • Two-storey
  • Modern House
No Result
View All Result
  • Home
  • Tiny House
  • Two Bedrooms
  • Three Bedrooms
  • Two-storey
  • Modern House
No Result
View All Result
DREAM HOMES
No Result
View All Result
Home House Plans

Rustic 3-Bedroom New American Ranch (Approx. 1,162 Sq. Ft.)

barikisimba by barikisimba
October 8, 2025
in House Plans
0
Rustic 3-Bedroom New American Ranch (Approx. 1,162 Sq. Ft.)
0
SHARES
18
VIEWS
Share on FacebookShare on Twitter

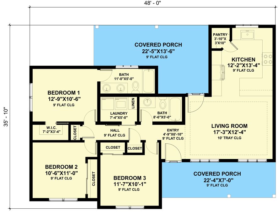
This rustic ranch plan offers an efficient and warm footprint: about 1,162 square feet of living space, three bedrooms, and two full bathrooms. Anchored by a cozy front porch and complemented by a rear porch extension, it balances charm with utility. Built in a single level, it’s ideal for small-lot living, downsizing, or a comfortable primary residence. 0Floor Plan:

Exterior Design

The exterior presents a rustic, down-to-earth aesthetic with natural texture, muted trim, and a welcoming front porch measuring about 22′4″ wide by 7′ deep. 1 The siding, modest gables, and gently pitched roof contribute to cottage character without overstatement. With dimensions of 48′ by 35′-10″, the home sits comfortably on modest parcels. 2Windows are grouped for balance and daylight access. The roof overhangs protect glass planes, and the rear porch ties the architecture to outdoor living, especially for grilling or relaxation. 3 The combination of rustic styling and pragmatic form creates curb appeal that feels grounded and honest.

Interior Layout & Flow

Upon entry, a living room greets you to the right, creating direct sightlines across the home and toward the rear porch. 4 The combined living, dining, and kitchen spaces balance openness and definition, with transitions that are smooth yet distinct. Hallways are kept to a minimum, maximizing usable area.The kitchen sits toward the back side, featuring a rectangular layout, corner pantry, and a window over the sink for backyard views. 5 Behind that, living space continues outward via the rear porch—ideal for blending indoor and outdoor life. 6 Bedrooms flank the central zones for privacy, with the master suite on one side and two secondary bedrooms on the opposite side sharing a bath. The laundry sits centrally for convenience. 7

Bedrooms & Bathrooms

The primary bedroom includes a full private bathroom with dual-vanity setup, giving a sense of luxury within the modest footprint. 8 Light, ventilation, and privacy are balanced. The two secondary bedrooms share a full hall bathroom, giving flexibility and guest capacity without crowding the plan. 9

Each bedroom is sized for real-world furniture—beds, side tables, dresser/wardrobe—and retains wall space for circulation. Natural light is managed through window placement but not at the expense of usable wall surface.

Living & Dining Spaces

The living room functions as the heart of the home—with a layout that supports multiple seating arrangements, media focal points, and clear movement corridors. Because traffic flows along the perimeter, the central area remains open and uncluttered. 10The dining area sits adjacent to both kitchen and rear porch points, making service and social connection easy. Sliding or patio doors (if included) further blur the line between interior mealtime and exterior enjoyment. 11

Kitchen Features

The kitchen is modest but efficient. With its rectangular “back wall + cabinetry + corner pantry” plan, it supports all essential functions—prep, storage, and cleanup—without wasted steps. 12 A window over the sink gives view and daylight, while cabinetry and pantry storage manage daily needs cleanly.Counter space is optimized for tasks, and adjacency to dining ensures serving stays fluid. The layout keeps the cook connected to household activity rather than isolated. Under-cabinet lighting and task lighting may be ideal additions in real use.

Outdoor Living (Front & Rear Porch)

The front porch provides a welcoming transition zone—ideal for chairs, potted plants, and morning relaxation. Its covered depth invites use even in sun or light rain. This detail makes the home feel friendlier and more grounded.The rear porch is more than decorative—it expands the entertainment footprint. Access from the living area means summer dinners, lounging, or evening conversation happen in shaded, semi-outdoor comfort. The roof overhead makes the space usable in variable weather. 13

Storage & Utility

Storage is distributed thoughtfully. The corner pantry in the kitchen handles bulk goods. Linen and hall closets support bath zones. Bedroom closets store personal and seasonal items. The laundry sits centrally, reducing carrying distances. 14Because the plan is efficient, you won’t find large wasted or redundant spaces. Every square foot is intended for active use—living, sleeping, cooking, storage, or passage.

Construction & Efficiency Notes

Exterior walls are 2×6 for added insulation and robustness. 15 The main floor ceiling height is 9′, giving a sense of volume without overbuilding. 16 Roof framing uses trusses to simplify structure and span. 17Plumbing runs are consolidated: wet zones (bathrooms, kitchen, laundry) are adjacent or aligned to reduce piping lengths and improve efficiency. Roof overhangs and shading reduce heat gain. Quality windows and air sealing strategies help stabilize interior climate. Because the footprint is compact, energy loads are inherently lower.

Estimated Building Cost

The estimated cost to build this home in the United States ranges between $260,000 – $430,000, depending on location, material quality, site conditions, and labor choices.

Why This Rustic Ranch Is a Great Choice

This plan proves that small can feel generous. With 1,162 square feet, it offers three full bedrooms, two bathrooms, and meaningful outdoor spaces without wasted areas. The design marries charm and function—something many larger plans struggle to do.Every room is intentional, transitions are smooth, and the rustic styling gives timeless appeal. For those wanting a modest home with character, efficiency, and space for life, this rustic New American ranch is an excellent match. It’s cozy, capable, and built for living well.“`18

Related

Previous Post

Exclusive Southern Cottage with Grand Screened Porch (Approx. 1,376 Sq. Ft.)

Next Post

Country Craftsman Ranch with Angled Garage (Approx. 1,561 Sq. Ft.)

barikisimba

barikisimba

Next Post
Country Craftsman Ranch with Angled Garage (Approx. 1,561 Sq. Ft.)

Country Craftsman Ranch with Angled Garage (Approx. 1,561 Sq. Ft.)

Leave a Reply Cancel reply

Your email address will not be published. Required fields are marked *

  • Trending
  • Comments
  • Latest
10 Beautiful Houses And Advantages of Owning a Small House (1–2 Rooms)

10 Beautiful Houses And Advantages of Owning a Small House (1–2 Rooms)

November 30, 2024
AMERICAN BEAUTIFUL HOUSES WITH FLOOR PLANS

AMERICAN BEAUTIFUL HOUSES WITH FLOOR PLANS

February 10, 2025
Discover The Benefits Of Tiny Houses As Well As 10 Unique House Designs For Modern Lifestyles

Discover The Benefits Of Tiny Houses As Well As 10 Unique House Designs For Modern Lifestyles

October 31, 2024
Top 10 Stunning House Designs for Modern Living

Top 10 Stunning House Designs for Modern Living

September 29, 2024
Country Ranch Duplex — (2 × 612 Sq Ft Units)

Country Ranch Duplex — (2 × 612 Sq Ft Units)

3
The Ten Best Tiny House Designs in 2024 With Floor Plans

The Ten Best Tiny House Designs in 2024 With Floor Plans

2
Explore Our 12×9 Meter House Design with 2 Beds, 2 Baths, and Gable Roof

Explore Our 12×9 Meter House Design with 2 Beds, 2 Baths, and Gable Roof

1
Compact Comfort: Designing a Stylish 60 sqm Two-Bedroom Bungalow

Compact Comfort: Designing a Stylish 60 sqm Two-Bedroom Bungalow

1
Gorgeous Craftsman – ~5,098 Sq Ft with Private Master Suite & Bonus Room

Gorgeous Craftsman – ~5,098 Sq Ft with Private Master Suite & Bonus Room

November 15, 2025
4-Bed Modern Farmhouse with Split Layout & Vaulted Great Room (~2,483 Sq Ft)

4-Bed Modern Farmhouse with Split Layout & Vaulted Great Room (~2,483 Sq Ft)

November 15, 2025
Hill-Country Luxe: 5-Bed, 5.5-Bath Texas Home (~5,000 Sq Ft) with Game & Media Rooms

Hill-Country Luxe: 5-Bed, 5.5-Bath Texas Home (~5,000 Sq Ft) with Game & Media Rooms

November 15, 2025
Rustic One-Story Family Home – ~2,896 Sq Ft with Timber Charm & Rustic Elegance

Rustic One-Story Family Home – ~2,896 Sq Ft with Timber Charm & Rustic Elegance

November 15, 2025

Recent News

Gorgeous Craftsman – ~5,098 Sq Ft with Private Master Suite & Bonus Room

Gorgeous Craftsman – ~5,098 Sq Ft with Private Master Suite & Bonus Room

November 15, 2025
4-Bed Modern Farmhouse with Split Layout & Vaulted Great Room (~2,483 Sq Ft)

4-Bed Modern Farmhouse with Split Layout & Vaulted Great Room (~2,483 Sq Ft)

November 15, 2025
Hill-Country Luxe: 5-Bed, 5.5-Bath Texas Home (~5,000 Sq Ft) with Game & Media Rooms

Hill-Country Luxe: 5-Bed, 5.5-Bath Texas Home (~5,000 Sq Ft) with Game & Media Rooms

November 15, 2025
Rustic One-Story Family Home – ~2,896 Sq Ft with Timber Charm & Rustic Elegance

Rustic One-Story Family Home – ~2,896 Sq Ft with Timber Charm & Rustic Elegance

November 15, 2025
  • Home
  • House Design

© 2024 Site By @Renato

No Result
View All Result
  • Home
  • Small House
  • 2 Bedroom
  • 3 BedRoom
  • House Design
  • 3-Storey
  • Bungalow
  • 2-Storey
  • Farmhouse

© 2024 Site By @Renato