DREAM HOMES
  • Home
  • Tiny House
  • Two Bedrooms
  • Three Bedrooms
  • Two-storey
  • Modern House
No Result
View All Result
  • Home
  • Tiny House
  • Two Bedrooms
  • Three Bedrooms
  • Two-storey
  • Modern House
No Result
View All Result
DREAM HOMES
No Result
View All Result
Home House Plans

3-Bed Rustic Cabin with Drive-Under Garage – 2,221 Sq Ft

barikisimba by barikisimba
October 13, 2025
in House Plans
0
3-Bed Rustic Cabin with Drive-Under Garage – 2,221 Sq Ft
0
SHARES
635
VIEWS
Share on FacebookShare on Twitter

This striking rustic cabin offers **2,221 heated sq ft**, with **3 bedrooms**, **2½ bathrooms**, and a **582 sq ft drive-under garage** integrated below the house. Its design spans three levels—lower, main, and upper—making it ideal for sloped sites or walkout conditions. 0

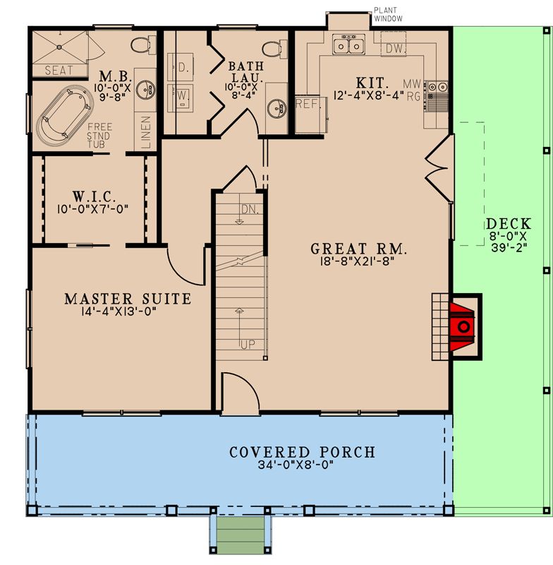
Floor Plan:

Exterior Design

The cabin’s exterior carries strong rustic character: full-width 8-ft deep front porch, side deck, timber accents, dormers, and broad rooflines that anchor the home into a wooded or sloping landscape. 1

Its footprint holds a width of **36′-4″** and depth of **39′-0″**, with a maximum ridge height of **22′-4″**. Exterior walls are 2×4 framing with optional upgrade to 2×6. 2

The garage below is a drive-under style, with side entry for the vehicle, giving sheltered parking while preserving the cabin aesthetic above. 3

Interior Layout & Flow

The main level (1,071 sq ft) is the heart of daily living. It includes the great room, kitchen, dining, master suite, and front porch entry. 4

French doors on the side open the great room to the deck, enhancing indoor/outdoor connection. 5 The kitchen features a double sink centered under a window overlooking the rear.

Upstairs (717 sq ft) hosts two secondary bedrooms sharing a full bath, with light from front dormers. 7 Beneath, the lower level (433 sq ft) provides rec space and storage, directly over the garage. 8

Bedrooms & Bathrooms

The master is on the main floor, with a pocket door separating the walk-in closet and another pocket door into the bathroom (which includes both tub and shower). 9

Upstairs, the two bedrooms share a bath. Dormer windows bring natural light and charm. 10 A half bath on the main level serves guests. 11

Living & Dining Spaces

The great room is open to kitchen and dining, centered around a fireplace (if included) and strong visual connection to outdoor spaces via French doors. 12

Dining flows adjacent to the kitchen and near deck access—ideal for relaxed meals or entertaining with indoor/outdoor flexibility.

Kitchen Features

The kitchen is practical: double sink under window, counters, cabinetry, and plumbing clustered to serve main and upstairs bathrooms efficiently. 13

A walk-in pantry or built-in storage may be included to support the rustic cabin’s storage needs.

Outdoor Living (Porch & Deck)

A full **8-ft deep front porch** spans the width of the home, inviting seating, shelter, and a welcoming presence. 14

A side deck off the great room gives secondary outdoor access and view extension. 15 The porch and deck together total **272 sq ft**. 16

Garage & Storage

The drive-under **582 sq ft garage** is built into the lower level, with side entry and additional storage areas. 17

Storage is also provided on the lower level via rec/storage room, and in closets upstairs and cabinetry on the main level. 18

Bonus / Expansion Rooms

The lower level “rec room” can be finished as a bonus space—media, home office, gym, or additional guest area. 19

Because the design uses dormers and vertical massing, attic or partial loft expansion may be possible depending on roof structure and local codes.

Construction & Efficiency Notes

Ceiling heights: lower level **8 ft**, main **9 ft**, upstairs **8 ft**. 20 Roof pitch is **10:12** for primary slopes, with **3:12** secondary zones. 21

Stick framing is used for roof structure. The split-level / walkout design makes good use of site slope. Clustering of plumbing and mechanical systems helps reduce run lengths and cost. The compact width helps reduce exterior wall losses.

Estimated Building Cost

The estimated cost to build this home in the United States ranges between $380,000 – $600,000, depending on region, finish level, site conditions, slope, and labor.

Why This Rustic Cabin Plan Appeals

This design combines dramatic rustic style and functional multi-level living. The drive-under garage suits sloping terrain while preserving the cabin look above. Split bedrooms, generous outdoor porches, and a rec level give flexibility and comfort. For someone seeking a cabin with character, usable space, and integration with land, this is a compelling plan.

“`22

Related

Previous Post

3-Bed Barndominium with Sloped Ceiling Great Room – 1,710 Sq Ft

Next Post

Country Plan — 1,600 Sq Ft | 3 Bedrooms & 2 Bathrooms

barikisimba

barikisimba

Next Post
Country Plan — 1,600 Sq Ft | 3 Bedrooms & 2 Bathrooms

Country Plan — 1,600 Sq Ft | 3 Bedrooms & 2 Bathrooms

Leave a Reply Cancel reply

Your email address will not be published. Required fields are marked *

  • Trending
  • Comments
  • Latest
10 Beautiful Houses And Advantages of Owning a Small House (1–2 Rooms)

10 Beautiful Houses And Advantages of Owning a Small House (1–2 Rooms)

November 30, 2024
AMERICAN BEAUTIFUL HOUSES WITH FLOOR PLANS

AMERICAN BEAUTIFUL HOUSES WITH FLOOR PLANS

February 10, 2025
Discover The Benefits Of Tiny Houses As Well As 10 Unique House Designs For Modern Lifestyles

Discover The Benefits Of Tiny Houses As Well As 10 Unique House Designs For Modern Lifestyles

October 31, 2024
Top 10 Stunning House Designs for Modern Living

Top 10 Stunning House Designs for Modern Living

September 29, 2024
Country Ranch Duplex — (2 × 612 Sq Ft Units)

Country Ranch Duplex — (2 × 612 Sq Ft Units)

3
The Ten Best Tiny House Designs in 2024 With Floor Plans

The Ten Best Tiny House Designs in 2024 With Floor Plans

2
Explore Our 12×9 Meter House Design with 2 Beds, 2 Baths, and Gable Roof

Explore Our 12×9 Meter House Design with 2 Beds, 2 Baths, and Gable Roof

1
Compact Comfort: Designing a Stylish 60 sqm Two-Bedroom Bungalow

Compact Comfort: Designing a Stylish 60 sqm Two-Bedroom Bungalow

1
Gorgeous Craftsman – ~5,098 Sq Ft with Private Master Suite & Bonus Room

Gorgeous Craftsman – ~5,098 Sq Ft with Private Master Suite & Bonus Room

November 15, 2025
4-Bed Modern Farmhouse with Split Layout & Vaulted Great Room (~2,483 Sq Ft)

4-Bed Modern Farmhouse with Split Layout & Vaulted Great Room (~2,483 Sq Ft)

November 15, 2025
Hill-Country Luxe: 5-Bed, 5.5-Bath Texas Home (~5,000 Sq Ft) with Game & Media Rooms

Hill-Country Luxe: 5-Bed, 5.5-Bath Texas Home (~5,000 Sq Ft) with Game & Media Rooms

November 15, 2025
Rustic One-Story Family Home – ~2,896 Sq Ft with Timber Charm & Rustic Elegance

Rustic One-Story Family Home – ~2,896 Sq Ft with Timber Charm & Rustic Elegance

November 15, 2025

Recent News

Gorgeous Craftsman – ~5,098 Sq Ft with Private Master Suite & Bonus Room

Gorgeous Craftsman – ~5,098 Sq Ft with Private Master Suite & Bonus Room

November 15, 2025
4-Bed Modern Farmhouse with Split Layout & Vaulted Great Room (~2,483 Sq Ft)

4-Bed Modern Farmhouse with Split Layout & Vaulted Great Room (~2,483 Sq Ft)

November 15, 2025
Hill-Country Luxe: 5-Bed, 5.5-Bath Texas Home (~5,000 Sq Ft) with Game & Media Rooms

Hill-Country Luxe: 5-Bed, 5.5-Bath Texas Home (~5,000 Sq Ft) with Game & Media Rooms

November 15, 2025
Rustic One-Story Family Home – ~2,896 Sq Ft with Timber Charm & Rustic Elegance

Rustic One-Story Family Home – ~2,896 Sq Ft with Timber Charm & Rustic Elegance

November 15, 2025
  • Home
  • House Design

© 2024 Site By @Renato

No Result
View All Result
  • Home
  • Small House
  • 2 Bedroom
  • 3 BedRoom
  • House Design
  • 3-Storey
  • Bungalow
  • 2-Storey
  • Farmhouse

© 2024 Site By @Renato