DREAM HOMES
  • Home
  • Tiny House
  • Two Bedrooms
  • Three Bedrooms
  • Two-storey
  • Modern House
No Result
View All Result
  • Home
  • Tiny House
  • Two Bedrooms
  • Three Bedrooms
  • Two-storey
  • Modern House
No Result
View All Result
DREAM HOMES
No Result
View All Result
Home House Plans

Traditional One-Story Home Plan – 1,600 sq ft | 3 Bedrooms & 2 Bathrooms

barikisimba by barikisimba
October 25, 2025
in House Plans
0
Traditional One-Story Home Plan – 1,600 sq ft | 3 Bedrooms & 2 Bathrooms
0
SHARES
0
VIEWS
Share on FacebookShare on Twitter

This thoughtfully designed home provides approximately **1,600 heated square feet**, accommodating **3 bedrooms** and **2 full bathrooms**, all on a single level. The plan offers practical efficiency and classic proportions, ideal for a family seeking comfortable one-floor living.

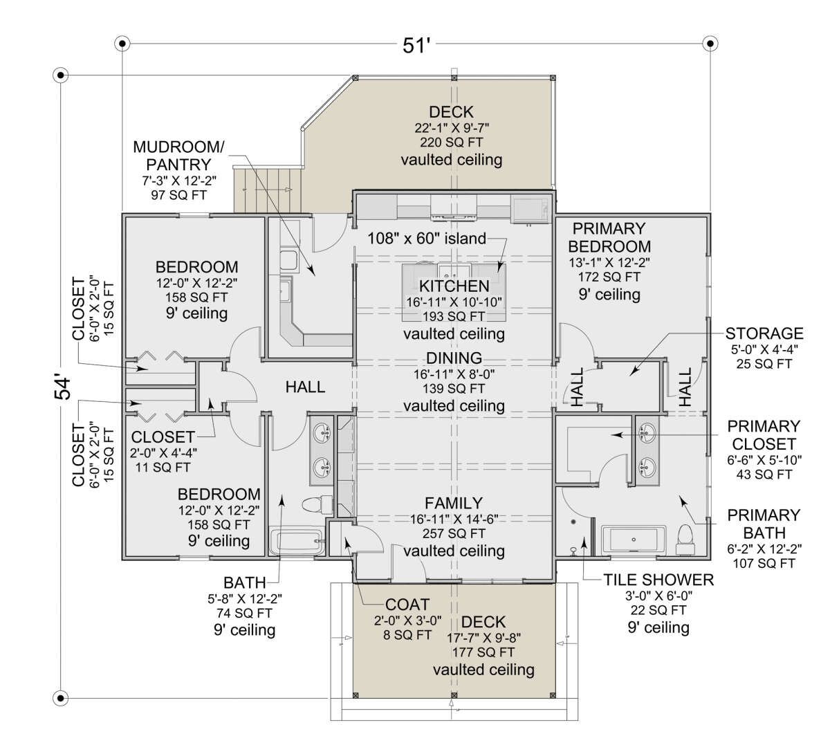
Floor Plan:

Exterior Design

The front elevation spans about **51′ wide × 54′ deep**, creating a rectangular, efficient footprint. 1 A low-pitched gable roof (8:12) and 9 ft main-floor ceilings deliver scale without overwhelming height. 2

A generous covered front porch (approximately 177 sq ft) and a back porch/patio area (about 220 sq ft) extend the living space outdoors while enhancing curb appeal. 3

The façade is traditional and versatile—siding or brick veneer, simple trim, symmetrical windows—making it suitable for a range of sites and neighbourhoods.

Interior Layout & Flow

The main entry opens into a foyer that flows smoothly into an open great-room, dining and kitchen zone. The open design gives a sense of space and connectivity within the 1,600 sq ft footprint. 4

The rear-roofed porch is accessed directly from the living area, allowing indoor-outdoor integration for informal entertaining or family activities.

Bedrooms & Bathrooms

The plan includes three bedrooms: two secondary bedrooms at the front or side of the home, and a master suite tucked toward the rear for privacy. The master likely features an ensuite and walk-in closet, while the other two share the second full bath. 5

This two-bath arrangement in a moderate size home enhances flexibility for families or guests, without consuming unnecessary square footage.

Living & Dining Spaces

The great room features a vaulted or open ceiling (depending on variant) and becomes the heart of the home. A fireplace may anchor the living space, lending warmth and focal interest. 6

Dining space is positioned adjacent to the kitchen and living zone—this integrated layout supports practical daily living while remaining socially connected.

Kitchen Features

The kitchen is centrally located, open to the living and dining spaces for ease of interaction. It often includes an island or peninsula for casual seating and workspace, supporting both functional cooking and social engagement.

Proximity to the dining zone and living area ensures efficiency, and cabinetry is sized to maximise storage in this efficient footprint.

Outdoor Living (Porches & Patio)

The generous front porch (~177 sq ft) provides a comfortable outdoor room with overhead shelter—ideal for morning coffee or welcoming arrival. 7

The rear porch/patio (~220 sq ft) is accessed from the main living zone, making it conveniently part of the home’s everyday zones—great for grilling, relaxing or extendable living.

Construction & Efficiency Notes

This one-story plan with 1,600 sq ft is economical to build: simpler rooflines, no stairs, fewer structural complications. The 2×4 exterior framing (standard) and 9 ft ceilings keep costs moderate. 8

Compact footprint means less exterior wall exposure, which aids energy efficiency. The open plan maximises usable space without wasted corridors. For many households, this size offers room to grow without excess.

Estimated Building Cost

The estimated cost to build this home in the United States ranges between $290,000 – $390,000, depending on region, material selections, site work, and labour rates.

Why This Plan Makes Sense

This traditional single-level plan strikes an effective balance: three bedrooms and two bathrooms deliver full household functionality, while the size remains manageable for maintenance, cost and energy use.

With its simple but adaptable design, generous porches, efficient layout, and timeless styling, it’s a strong choice for families seeking smart, flexible living now and for the future.

“`9

Related

Previous Post

1726 Square Foot, 3-Bedroom One-Level Home Plan

Next Post

Traditional – 1,316 Sq Ft | 3 Bedrooms & 2 Bathrooms

barikisimba

barikisimba

Next Post
Traditional – 1,316 Sq Ft | 3 Bedrooms & 2 Bathrooms

Traditional – 1,316 Sq Ft | 3 Bedrooms & 2 Bathrooms

Leave a Reply Cancel reply

Your email address will not be published. Required fields are marked *

  • Trending
  • Comments
  • Latest
10 Beautiful Houses And Advantages of Owning a Small House (1–2 Rooms)

10 Beautiful Houses And Advantages of Owning a Small House (1–2 Rooms)

November 30, 2024
AMERICAN BEAUTIFUL HOUSES WITH FLOOR PLANS

AMERICAN BEAUTIFUL HOUSES WITH FLOOR PLANS

February 10, 2025
Discover The Benefits Of Tiny Houses As Well As 10 Unique House Designs For Modern Lifestyles

Discover The Benefits Of Tiny Houses As Well As 10 Unique House Designs For Modern Lifestyles

October 31, 2024
Top 10 Stunning House Designs for Modern Living

Top 10 Stunning House Designs for Modern Living

September 29, 2024
Country Ranch Duplex — (2 × 612 Sq Ft Units)

Country Ranch Duplex — (2 × 612 Sq Ft Units)

3
The Ten Best Tiny House Designs in 2024 With Floor Plans

The Ten Best Tiny House Designs in 2024 With Floor Plans

2
Explore Our 12×9 Meter House Design with 2 Beds, 2 Baths, and Gable Roof

Explore Our 12×9 Meter House Design with 2 Beds, 2 Baths, and Gable Roof

1
Compact Comfort: Designing a Stylish 60 sqm Two-Bedroom Bungalow

Compact Comfort: Designing a Stylish 60 sqm Two-Bedroom Bungalow

1
Traditional – 1,316 Sq Ft | 3 Bedrooms & 2 Bathrooms

Traditional – 1,316 Sq Ft | 3 Bedrooms & 2 Bathrooms

October 25, 2025
Traditional One-Story Home Plan – 1,600 sq ft | 3 Bedrooms & 2 Bathrooms

Traditional One-Story Home Plan – 1,600 sq ft | 3 Bedrooms & 2 Bathrooms

October 25, 2025
1726 Square Foot, 3-Bedroom One-Level Home Plan

1726 Square Foot, 3-Bedroom One-Level Home Plan

October 24, 2025
Petite Craftsman Bungalow – ~1,138 sq ft | 2 Beds & 2 Baths

Petite Craftsman Bungalow – ~1,138 sq ft | 2 Beds & 2 Baths

October 24, 2025

Recent News

Traditional – 1,316 Sq Ft | 3 Bedrooms & 2 Bathrooms

Traditional – 1,316 Sq Ft | 3 Bedrooms & 2 Bathrooms

October 25, 2025
Traditional One-Story Home Plan – 1,600 sq ft | 3 Bedrooms & 2 Bathrooms

Traditional One-Story Home Plan – 1,600 sq ft | 3 Bedrooms & 2 Bathrooms

October 25, 2025
1726 Square Foot, 3-Bedroom One-Level Home Plan

1726 Square Foot, 3-Bedroom One-Level Home Plan

October 24, 2025
Petite Craftsman Bungalow – ~1,138 sq ft | 2 Beds & 2 Baths

Petite Craftsman Bungalow – ~1,138 sq ft | 2 Beds & 2 Baths

October 24, 2025
  • Home
  • House Design

© 2024 Site By @Renato

No Result
View All Result
  • Home
  • Small House
  • 2 Bedroom
  • 3 BedRoom
  • House Design
  • 3-Storey
  • Bungalow
  • 2-Storey
  • Farmhouse

© 2024 Site By @Renato