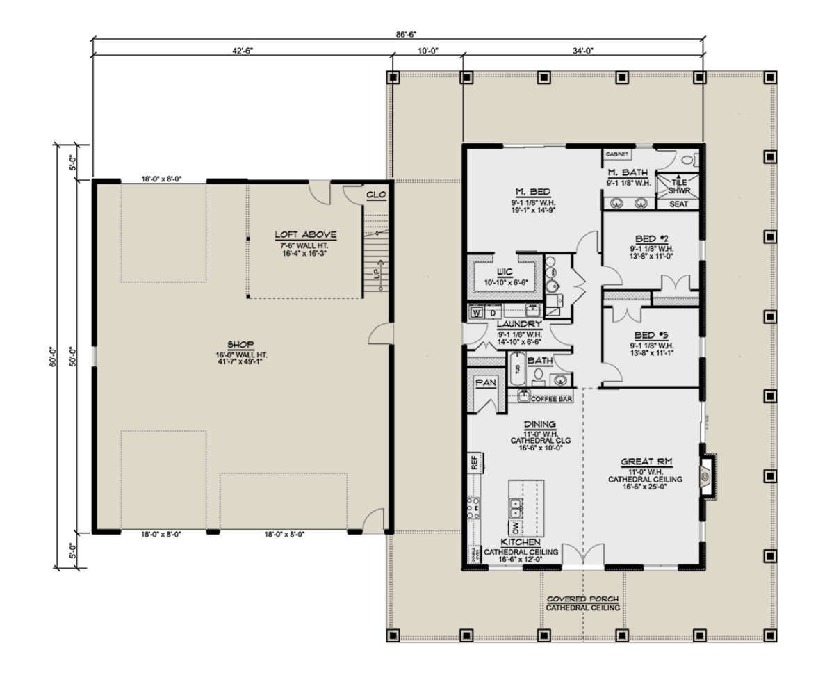
This striking barn-style home offers approximately **2,050 square feet** of heated living space, featuring **3 bedrooms** and **2 full bathrooms**, all laid out on one level for seamless living.
Floor Plan:


Exterior Design
The home measures approximately **96′-6″ wide × 80′ deep**, presenting a grand barn-inspired width that translates to usable interior span. 1 The height is modest for such width (maximum ridge height 25′-8″), which helps keep construction scale and cost in check. 2
The exterior channels classic barn character: board & batten or vertical siding, oversized doors (potential for garage/workshop integration), and a lofty open roofline. A three-car garage bay is included, further enhancing the barn-versatility aesthetic. 3

Interior Layout & Flow
Entering the home, you are immediately greeted by a broad, open living space that carries the barn-style volume. The large span from width means a great-room feel with extensive flexibility for furnishings. The kitchen and dining zones flow openly from this central space.
The bedrooms are thoughtfully placed to balance privacy and convenience: one end houses the master suite, the other end accommodates two secondary bedrooms. Wet zones (kitchen + both bathrooms) are clustered to optimize mechanical efficiency and reduce wasted corridor space.

Bedrooms & Bathrooms
The master suite features a comfortable footprint, likely with room for a full bedroom layout plus a walk-in closet and attached bath. The two additional bedrooms provide flexibility—ideal for family, guests or office-/hobby-use. The second full bathroom serves those rooms without forcing a traverse through the master.
This three-bedroom/two-bath arrangement in a 2,050 sq ft footprint offers balanced living: plenty of room without becoming overly large, which is in line with the barn-home ethos—generous, yet efficient.

Living & Dining Spaces
The living zone is expansive and sociable: the wide width allows for multiple seating and activity zones while retaining strong sight-lines. High ceilings or exposed structure typically associated with barn-style homes add dramatic volume, making the space feel larger than its square footage might suggest.
The dining area is seamlessly integrated, often placed adjacent to the kitchen peninsula or island to support everyday meals and casual entertaining. This open layout supports modern lifestyles where cooking, dining and living intermix fluidly.

Kitchen Features
The kitchen is central and practical: island-oriented, open to the living and dining spaces, so the cook remains part of the social flow. Ample counter space and storage are likely, given the generous footprint of the home. With wet zones grouped, plumbing runs remain efficient.
The layout supports flexibility: work space, pantry storage, appliance zones and seating can all be accommodated without forcing compromise, thanks to the overall width and open plan.

Outdoor / Utility Features
Given the barn width and three-car garage, this plan lends itself to workshop, hobby bay or storage space behind the large garage doors. Whether you’re storing equipment, pursuing a hobby or accommodating vehicles, the broad footprint supports real utility.
The design also offers favourable outdoor integration: sliding or folding glass walls along the living zone may open to a rear patio, extending the living space outward—ideal for indoor-outdoor lifestyles or entertaining. The barn-style roof may elegantly cover a patio or porch zone too.

Construction & Efficiency Notes
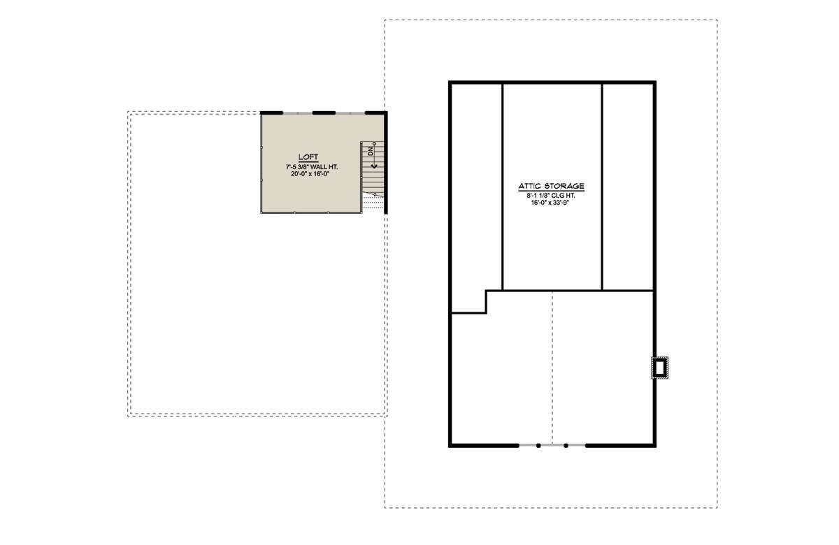
Despite the generous width, the single-level layout keeps complexity lower: no stairs, simpler HVAC distribution, and efficient foundation work. At 2,050 sq ft, the plan hits a sweet spot of size for many while keeping maintenance manageable. 4
The large width could pose some exposure challenges—long roof spans and greater exterior wall length—but the barn aesthetic typically marries well with structural steel or heavy timber framing, which can support the width without excessive cost. Additionally, clustering of mechanicals and plumbing helps maintain efficiency.

Estimated Building Cost
The estimated cost to build this home in the United States ranges between $330,000 – $450,000, depending heavily on site conditions, finish level, region and mechanical choices.
Why This Barn-Style Plan Works
For homeowners who want something distinctive yet practical, this barn-style plan delivers both character and function. The wide footprint opens up possibilities for workshop space, detached-garage feel, or hobby bays without adding to the main living area. But it still offers three bedrooms and two baths in a single-level, efficient layout.

If you’re drawn to the idea of a modern home with barn-building scale, integrated garage/workshop, strong indoor-outdoor connection and comfortable daily living for a family or dual-purpose household, this plan offers a compelling blueprint.
“`5














