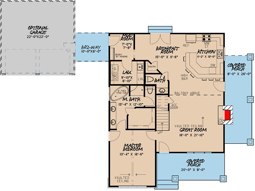
This charming home brings together cottage style, efficient design, and thoughtful features. With approximately **1,957 square feet** of heated living space, it offers **3 bedrooms**, **2.5 baths**, and an **optional 2-car garage with breezeway**.
Floor Plan:

Exterior Design
The design features a two-story great room that gives visual height and open airy volume, while still maintaining the charm of a cottage style home. A cozy fireplace anchors the living space and large windows and optional garage breezeway provide both form and function. 2
Interior Layout & Flow
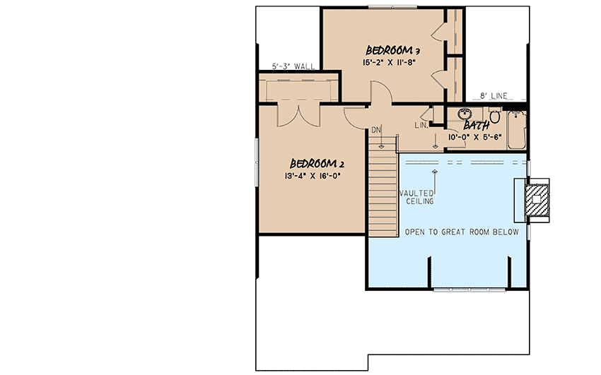
On the main level you’ll find the master suite with vaulted ceiling, and a generous ensuite bath featuring dual sinks, separate tub and shower, and large walk-in closet. 3 The main living zone opens into a spacious great room with direct access to a covered porch, positioned next to the kitchen and dining spaces—ideal for family time and casual entertaining. Upstairs, the second level holds two additional bedrooms and a full bathroom, providing separation and privacy. 5

Bedrooms & Bathrooms
The master bedroom enjoys premium space, ceiling volume and direct access to a luxurious bath—bringing a retreat-feel into everyday living. Secondary bedrooms are located on the upper floor, offering space for family or guests with their own bath access. Each bath is efficiently designed to avoid wasted space while delivering full functionality.
Living & Dining Spaces
The great room, spanning two stories, delivers visual drama and light, making the home feel larger and more generous than the square footage suggests. This connects fluidly to the dining and kitchen areas, allowing for open sight-lines and social ease. The covered porch adds to the indoor-outdoor dynamic.

Kitchen Features
Although detailed specs aren’t fully listed, the plan describes the kitchen as part of the great room footprint with sit-up counter space—ideal for casual meals and interaction while cooking. 7 Design wise, proximity to dining and living spaces ensures efficiency and social engagement.
Outdoor Living & Garage Options
One of the standout features is the optional 2-car garage, connected via a breezeway that maintains architectural cohesion and outdoor flow. 8 The covered porch sets the tone for relaxed outdoor living and extension of the main space. The plan’s form supports both façade appeal and backyard orientation.
Construction & Efficiency Notes
Efficiencies are achieved through smart volume (two-story great room rather than entire two-story build), compact bedroom wing upstairs, and optional garage integration via breezeway. Clustering public zones and utility spaces allows for shorter runs of plumbing and routing while the cottage size keeps overall costs in check.

Estimated Building Cost
While the exact cost will vary by region, build quality and site conditions, a home of this size and specification typically falls within a build range of approximately $300,000 – $400,000 USD for a mid-quality finish in many parts of the U.S.
Why This Plan Works
If you’re looking for a home that offers the warmth and character of a cottage, modern multi-level volume, and practical separation of living and sleeping areas—this plan checks those boxes. The optional garage and breezeway bring flexibility, and the two-story great room adds an expansive feel without a fully large footprints..

In summary: elegant, approachable, and designed for comfortable living—whether as a primary residence, vacation home or return-to-style build. This plan balances charm, flow and practicality.














