This dramatic mountain or lakeside residence delivers a striking vaulted great room, an expansive outdoor fireplace-anchored porch, and approximately 2,618 sq ft of heated living space (with a 3 bedroom / 3.5 bath layout) plus optional lower-level expansion (an additional ~1,760 sq ft).
Floor Plan:

Exterior Design
Set against a scenic backdrop, this design uses a strong pitched roof (9:12 primary, 12:12 secondary) and generous 9-ft main floor ceiling height to craft a statement mountain/”lake cabin” aesthetic. 1
The large rear porch is outfitted with an outdoor fireplace, creating an inviting transition between indoor comfort and outdoor setting. 2
Exterior materials lean toward stone and timber accents, large window walls to capture views and light, and dormer/loft massing to give architectural interest while anchoring the home into a wooded or lakeside terrain. 3

Interior Layout & Flow
Upon entry, you’re welcomed into a vaulted foyer that opens into the soaring great room—an ideal space for gathering, light and view. The volume is emphasized by the dual-story height and generous glazing. 4

The main floor places the master suite quietly away from the upstairs loft and secondary bedrooms. Double doors open from the master to its own rear porch—ideal for private outdoor moments. 5
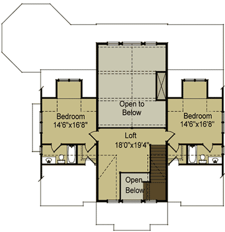
Upstairs, two bedrooms and a loft overlook the great room and foyer below—making creative use of vertical space and giving the home a sense of openness while retaining spatial separation. 6

Bedrooms & Bathrooms
The master suite enjoys generous volume, access to the outdoors, and a private bath. The upstairs pair of bedrooms share a lofted vantage point and can accommodate family or guest needs comfortably. The plan supports 3-4 bedrooms and 3.5-4.5 baths depending on finish options. 7
The inclusion of a half bath helps serve the main living area without compromising privacy of the sleeping zones. Overall the arrangement supports both daily living and entertaining comfort.

Living & Dining Spaces
The great room is the heart of the home—two stories of volume, a centerpiece fireplace, and connection to the rear porch all combine to amplify a sense of place. Visual lines extend from kitchen, through dining, to the outdoors, tying together the home’s social and nature-facing sides.
The dining space sits adjacent to the kitchen and overlooks the great room, allowing meals to feel integrated within family life and open to scenic surroundings—be it forest, mountain or lake view.

Kitchen Features
The kitchen anchors the main living zone and opens to dining and great room. While detailed fixture listings are not provided, the plan’s scale supports an island, generous counters and clear sightlines to both seating areas and exterior outlooks—making it ideal for both everyday living and social gatherings.
The adjacency of kitchen to outdoor porch with fireplace makes indoor-outdoor entertaining seamless—grilling, relaxing and gathering all flow from this design feature.

Outdoor Living (Porch, Deck, Patio)
A standout feature is the rear covered porch with an outdoor fireplace—a rarity that extends the home’s living footprint outward and enhances enjoyment of scenic vistas, fresh air, and entertaining spaces. 8
Whether the home sits on a mountain slope or lakefront setting, the design supports a strong indoor-outdoor connection: vaulted ceilings inside, large windows framing the view, and the porch pulling the outdoors in.

Garage & Storage
The plan width (~59′) and depth (~60′) allow a manageable footprint and efficient garage integration (front or side entry variations are supported). 9
Storage zones, pantry, and mudroom spaces are naturally clustered adjacent to the kitchen and garage/mud entry, making transitions smooth and circulation efficient regardless of setting.

Construction & Efficiency Notes
While the home offers generous volume, the efficient layout (main-level master, loft upstairs, and optional walk-out lower level) helps keep the build practical. Framing uses 2×6 exterior walls by default, improving insulation capacity on exposed sites. 10
The vaulting and large windows bring light and space, but also require attention to insulation, glazing U-values and HVAC zoning. Finished lower level offers expansion without changing footprint—ideal for future flexibility.

Estimated Building Cost
The estimated cost to build this home in the United States ranges between $400,000 – $550,000, depending on region (mountain or lakeside sites raise cost), finishes, site grading and material choices.

Why This Plan Works
If you’re seeking a home that blends dramatic volume, scenic orientation and smart layout—this plan checks those boxes. The outdoor fireplace porch elevates its standout factor, while vaulted interiors and flexible bedroom layout give it both character and utility.


Whether intended as a primary residence in a rugged setting, a lake-house retreat or a getaway built for entertaining family and friends, Plan 92328MX offers a compelling combination of style, function and lifestyle potential.
“`11














