This striking modern-farmhouse design offers approximately 2,589 square feet of heated living space, featuring **3–5 bedrooms**, **3.5–4.5 bathrooms**, and a full walk-out basement suited for future expansion.
Floor Plan:


Exterior Design
The exterior showcases board-and-batten siding, metal roof accents, a generous wrap-around porch and large gable dormers—creating a fresh take on farmhouse charm. 1
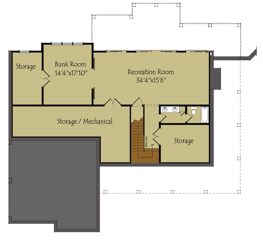
Designed for a sloped lot, the walk-out basement foundation allows for a full lower level with direct outdoor access, making it ideal for sites with grade changes and rear views. 2
Interior Layout & Flow
Entering through the foyer, the design opens into a large great room with direct access to the covered porch—delivering both indoor openness and outdoor connection. The kitchen and dining zones wrap around this central space for a cohesive layout. 3

The master suite is positioned on the main level, while upstairs (or within the basement level) the plan accommodates additional bedrooms and bonus spaces—offering flexibility for living and entertaining. 4
Bedrooms & Bathrooms
The primary bedroom on the main level features generous proportions, walk-in closet, and likely direct access to the laundry/mud zone—an efficient arrangement for everyday living. The plan supports two additional bedrooms upstairs or in the walk-out basement, sharing full baths or Jack-and-Jill configurations. The inclusion of a half bath on the main level supports guests and social areas without encroaching on private spaces. 5
Living & Dining Spaces
The great room serves as the home’s social heart: expansive, open to the kitchen, and anchored by large windows toward the rear porch or view. The dining area sits adjacent, making meals and everyday living feel connected. The wrap-around porch further enhances the sense of space by extending living outdoors. 6

Kitchen Features
While detailed specifications are limited in publicly available summaries, the layout supports an island workspace with bar seating, efficient adjacency to the dining area, and easy access to the porch for al-fresco dining or entertaining. The flow is intuitive: from garage/mud zone → kitchen → living/dining → porch. 7
Outdoor Living (Porch & Walk-Out Basement)
A major highlight is the full wrap-around porch, which creates a welcoming front façade and generous rear/side outdoor living zone. The walk-out basement adds versatility: step down to a patio, recreation room or guest suite with direct grade access. This dual-level interaction is ideal for scenic lots, family gatherings or flexible living. 8

Garage & Storage
The garage entry (typically on the main level) feeds into a mud/laundry zone, enabling practical transitions between vehicles, gear and home interior. Storage closets, built-ins and utility zones are logically placed near major traffic areas to support day-to-day convenience and keep main living spaces uncluttered.
Construction & Efficiency Notes
Designed to take advantage of a sloped lot, the walk-out basement can reduce site grading, provide daylight in below-grade spaces, and maximize usable square footage without dramatically increasing footprint. The wrap-around porch roof and large glazing need attention to insulation, overhangs and thermal performance—inferior detailing could affect energy usage on exposed site conditions. 9

Estimated Building Cost
The estimated range for building this home (in the United States) would fall approximately between $400,000 – $550,000 USD, depending on region, finishes, complexity of lower level and lot costs (grading, foundation, view enhancements).
Why This Plan Works
This modern farmhouse design blends clean contemporary aesthetics with traditional wrap-around porch charm, making it versatile for both rural and suburban settings. The walk-out basement adds value and flexibility—whether for recreation, guest space or storage—while the open main level promotes everyday living and entertaining alike.

If you’re looking for a home that delivers generous square footage, view-sensitive design, strong indoor/outdoor flow and aesthetic presence—Plan #92388MX offers an appealing mix of style and practicality. Whether as a full-time residence, vacation home or future-proof build, this plan balances charm, functionality and scale.
“`10

