If you love modern farmhouse style but you also want a floor plan that is smart, efficient, and ready for real family life, this 2,780 sq ft design is a very tempting option.
It gives you four spacious bedrooms on the main level, an optional upstairs bonus suite, a true split-bedroom layout for privacy, and a wide open living core that makes everyday life and entertaining feel easy instead of chaotic.

Think of it as the “just right” farmhouse: not too big, not too small, but carefully designed so every square foot actually works for you, not against you.

Quick Specs At A Glance
| Heated living area | Approx. 2,780 sq ft (main level) |
|---|---|
| Optional bonus | Approx. 620 sq ft (game room, guest suite, or teen haven) |
| Bedrooms | 4 on the main level (up to 5 with the bonus suite) |
| Bathrooms | 3 full baths + 1 half bath (with potential for a 4th full bath) |
| Stories | 1 main level with optional upper bonus |
| Garage | 3-car, side-entry, approx. 960 sq ft, with workshop space |
| Width | Approx. 76′ 0″ |
| Depth | Approx. 85′ 4″ |
| Front porch | Approx. 30 sq ft (covered entry) |
| Rear porch | Approx. 310 sq ft (covered outdoor living) |
| Ceiling heights | Approx. 9′ main ceilings with higher accents in key rooms |
| Exterior walls | Wood-framed (2×4 standard, 2×6 option) |
Estimated Build Cost (USA)
Actual costs will depend on your location, finishes, and builder, but a modern farmhouse of around 2,780 sq ft with this level of detail often falls roughly in this range in many parts of the United States:

- Approx. $500,000 to $750,000+ for the main house and standard 3-car garage, assuming mid-range finishes.
High-end finishes, custom built-ins, specialty exterior materials, or a fully decked-out bonus suite can push the total higher, while simpler selections or lower-cost regions may land on the lower side of the range.

Exterior Style & First Impressions
From the street, this home has that “polished farmhouse” look: clean rooflines, balanced gables, and a welcoming covered entry that centers the façade. The three-car side-entry garage keeps the front elevation looking elegant and residential instead of dominated by garage doors.

The footprint (about 76′ wide by 85′ 4″ deep) sits comfortably on a medium-to-large lot, giving you presence without feeling like the house is swallowing your yard. The small front porch works as a covered stoop, while the larger rear porch is where the real outdoor living happens.

Walkthrough: From Front Door To Main Living Area
Step inside and you are greeted by a foyer that feels open and connected instead of cramped. To one side you can picture a formal dining room with enough space for a proper table, holiday spreads, and maybe that sideboard you have been eyeing. This is the “dress-up” eating zone for special gatherings.

Straight ahead, the view opens toward the main living core: a spacious great room anchored by a central fireplace and windows looking out to the back porch. The ceiling height adds drama without being over the top, and the layout keeps furniture placement simple and natural. You do not have to fight the room to make your sofa and TV work.
The Kitchen: Everyday Hub With Butler’s Pantry
The kitchen is open to the great room, which is perfect for families who live in the kitchen and love to keep everyone in the same zone. A large island sits in the middle, ready for quick breakfasts, homework sessions, or casual entertaining.
Behind the scenes, a butler-style walk-in pantry is the secret weapon. It is big enough for bulk shopping, small appliances, and even a bit of tucked-away prep space. If you like a clean countertop look but also love cooking, this pantry will feel like your best friend.
Because the kitchen, dining, and great room flow together, you can host game nights, birthday parties, or Sunday brunch without feeling like guests are split into three different worlds. The whole space works as one big social zone.
Rear Porch & Outdoor Living
At the back of the house, a generous covered porch (around 310 sq ft) becomes your outdoor living room. It is big enough for a dining table and lounge seating, and it is covered so you get shade and weather protection while still enjoying fresh air.
This space is perfect for grilling, casual evenings with friends, or simply relaxing outside with a drink after a long day. With easy access from the main living areas, it feels like a natural extension of the great room instead of an afterthought.

Primary Suite: Quiet Wing With Laundry Access
The primary suite is tucked into its own wing on the main level, away from the secondary bedrooms. That split-bedroom arrangement is ideal if you like a peaceful retreat, or if kids or guests keep different schedules.
Inside the suite, you get a roomy bedroom, a private bath with all the essentials, and a walk-in closet. One of the nicest touches is the direct connection from this area to the laundry. Instead of hauling baskets across the house, you can slip straight into the laundry zone. It is a small thing on the floor plan that feels like a very big thing on busy days.
Secondary Bedrooms: Comfortable, Not Cramped
On the opposite side of the house, three additional bedrooms form a comfortable “kids’ or guests’ wing.” Each room has proper closet space and easy access to full bathrooms, so nobody feels like they drew the short straw.
This side of the home is well-suited for children, teens, overnight guests, or even a mix of uses like a dedicated guest room plus a hobby room or home gym. Because it is separated from the primary suite, everyone gets a little privacy and noise buffer.
Home Office & Everyday Practical Spaces
Modern life almost demands a dedicated work zone, and this plan delivers with a true home office. It is positioned away from the busiest circulation path so you can focus, take calls, and work from home without constantly hearing kitchen and TV noise.
Closer to the garage, you will find a mudroom where shoes, backpacks, and coats can live instead of piling up at the front door. This area works as the “family entrance,” keeping the mess under control and helping the foyer stay guest-ready.
Three-Car Garage With Built-In Workshop
The attached three-car garage (approximately 960 sq ft) offers plenty of room for vehicles, storage, and toys. With a side-entry configuration, the doors face away from the main street view for cleaner curb appeal.
A dedicated workshop space is carved out inside the garage, so you get a spot for tools, projects, and weekend tinkering without sacrificing parking. Whether you are into DIY, car care, or crafts that make a bit of a mess, this corner becomes your “hands-on” zone.
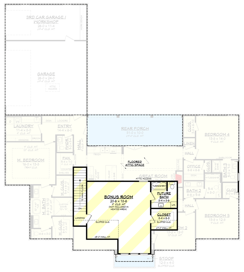
Optional Bonus Suite Upstairs
Over the main level you have the option to finish an additional 620 sq ft of bonus space. This area is incredibly flexible:
- Turn it into a game room or media lounge for movie nights.
- Create a teen retreat that feels semi-independent but still under your roof.
- Set it up as a guest suite, complete with its own bathroom if you choose the extra bath option.
- Use it as a big home office, studio, or even a combo of gym and hobby room.
If you do not need it right away, you can finish it later as your needs grow or budget allows. That makes this plan future-friendly without forcing you to build everything on day one.
Storage, Laundry & Daily Flow
Beyond the big headline rooms, this layout quietly solves a lot of small daily problems. You get:
- A main-level laundry with direct access from the primary suite.
- Hall closets for linens, cleaning supplies, and seasonal items.
- A butler’s pantry that keeps food storage, small appliances, and extra dishes organized.
- A mudroom entry from the garage, so bags, coats, and sports gear stop before they hit the living room.
All of those details add up to a home that feels smoother to live in. Less clutter in the main spaces, fewer piles on the dining table, and better traffic flow for a busy household.
Who This Home Is Perfect For
This sophisticated modern farmhouse fits especially well if you:
- Want a true one-level everyday lifestyle with the option of bonus space upstairs.
- Love open-concept living but still want a formal dining room for holidays and celebrations.
- Need four bedrooms now, with flexibility to add a fifth bedroom or bonus suite later.
- Care about practical details like a mudroom, butler’s pantry, workshop space, and primary-to-laundry access.
- Prefer a home that feels warm and welcoming on the outside, but quietly efficient and organized on the inside.
If you imagine mornings flowing from bedroom to coffee to kitchen without traffic jams, afternoons that move naturally from great room to backyard, and evenings where everyone has their own corner to relax, this modern farmhouse delivers exactly that kind of lifestyle in a polished, well-balanced package.
“`0


