This one-level modern-farmhouse plan packs a lot into 2,500 square feet: four bedrooms, 3 full bathrooms + 1 half bath, and a spacious 3-car side-entry garage.

With a thoughtfully designed open layout, generous outdoor porches, and functional touches like a mudroom and main-floor laundry, it’s an excellent choice for families who want comfort, practicality, and timeless style — all without an over-sized footprint.

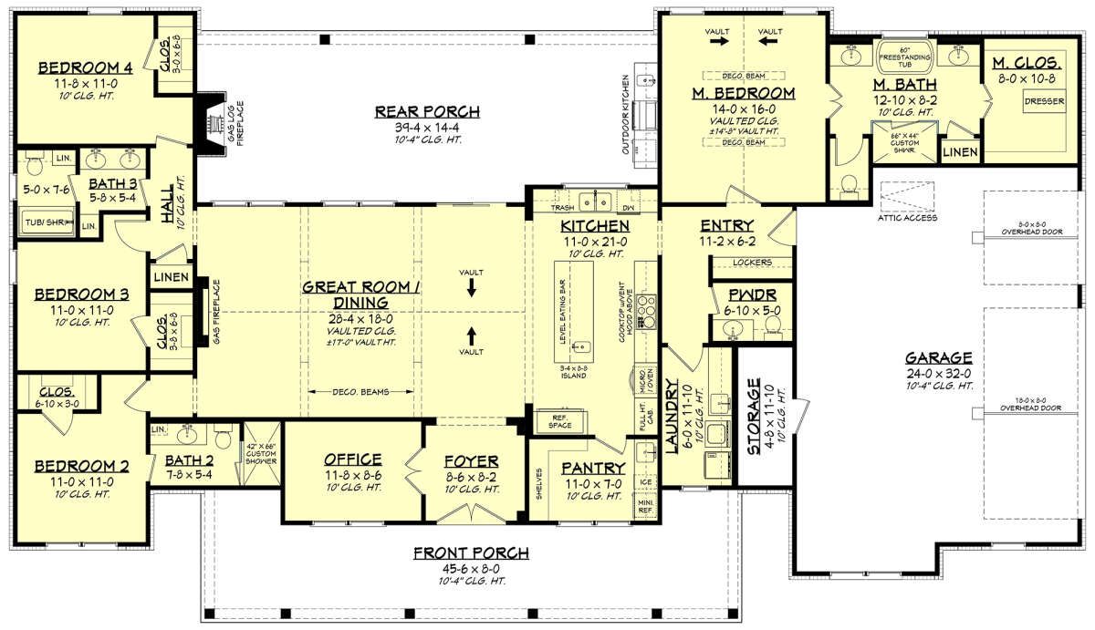
🏠 Key Facts & Specifications
- Living area: 2,500 sq ft — all on one level. 1
- Bedrooms / Bathrooms: 4 bedrooms, 3 full baths + 1 half bath. 2
- Garage: Side-entry 3-car garage (~802 sq ft of unheated area). 3
- Footprint: 91′ 2″ wide × 51′ 10″ deep. 4
- Porch & Patio Space: Large covered front porch (~403 sq ft) and rear porch/patio (~547 sq ft) — great for outdoor living and entertaining. 5
- Ceiling Height: 10-ft main floor ceiling. 6
- Layout Highlights: Master on main floor, split-bedroom layout, mudroom entry from garage, open kitchen-living space, main-floor laundry, optional basement stairs. 7
🏡 Layout & Living Spaces
As you enter through the front porch, you’re greeted by a foyer that flows into an open-concept kitchen, dining, and living area — ideal for casual family living or hosting guests. 8

The kitchen includes a central island and opens directly to the dining and living zones, making it the functional hub for meals, gatherings, and daily life. 9

The layout is enhanced by a mudroom and laundry area accessible from the garage — a convenient feature for busy households needing easy transitions from car to home. 10
🛏️ Bedrooms & Private Zones
The home offers four bedrooms, giving space for a family or guests. The master suite is on the main level, while other bedrooms are arranged for privacy — ideal for children, guests, or shared living. 11
With 3 full bathrooms and an additional half bath, the plan balances comfort and convenience — no more bathroom traffic jams for a full household. 12

🌿 Outdoor & Lifestyle Perks
The generous front and rear porch/patio spaces give plenty of opportunities for outdoor living — relaxing, entertaining, or enjoying weather with a view. 13
Combined with the 3-car garage and efficient interior flow, this design works for families who value practicality but still want stylish, farmhouse-inspired living.

✅ Who This Plan Is Best For
- Families needing 4 bedrooms plus multiple bathrooms — but wanting to stay within a moderate home size.
- People who appreciate main-floor living with bedrooms on one level (no stairs, easy accessibility).
- Homeowners looking for a mix of open communal spaces and private rooms — with convenient features like a mudroom and laundry near the garage.
- Those who enjoy indoor-outdoor living — porches and patios add flexibility and charm for gatherings or quiet evenings.

In short: this modern farmhouse plan — 2,500 sq ft, 4 beds, 3.5 baths, 3-car garage — offers a well-balanced, practical, and stylish foundation for everyday family living. It’s efficient, flexible, and designed with real-world use in mind. 🏡
“`14


