This 2,899-sq ft European-inspired ranch plan brings together timeless design, functional layout, and flexible living space.
With four bedrooms, three bathrooms, a 3-car garage, and a bonus room above the garage, it’s a versatile plan suitable for families, guests, or future expansion — all wrapped in an elegant exterior with curved arches, mixed-material facade, and classic details.

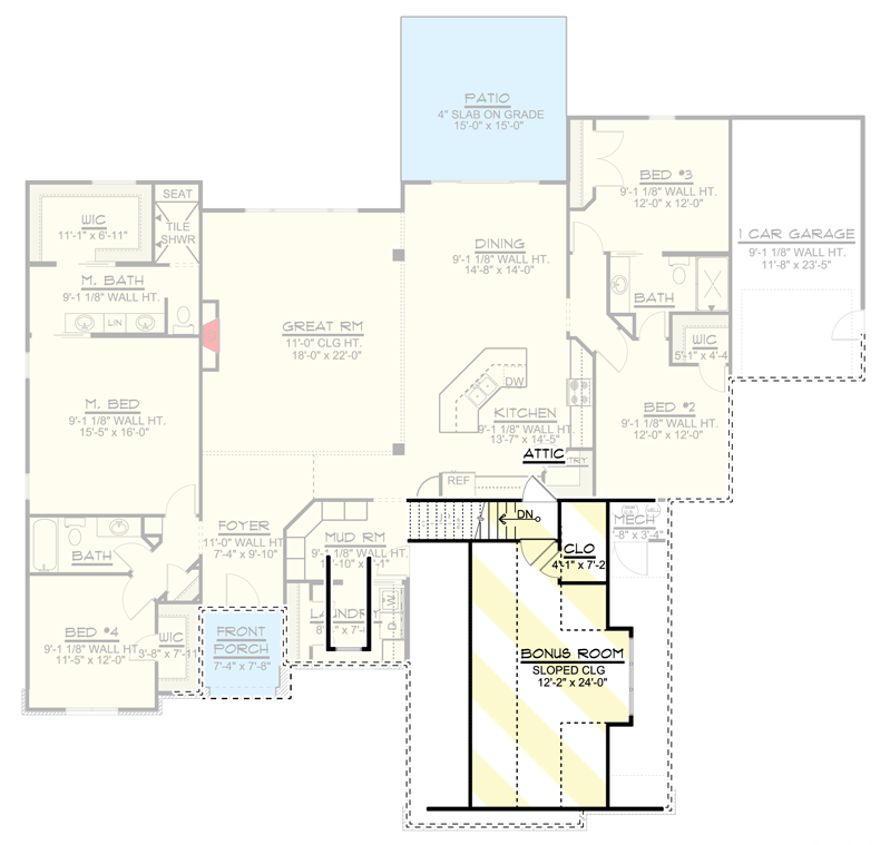
Bonus room

At a Glance — Key Specs & Layout Overview
| Heated Living Area | 2,899 sq ft 1 |
|---|---|
| Bedrooms | 4 total (master + 3 secondary) 2 |
| Bathrooms | 3 full baths 3 |
| Stories | Single-story main level + bonus room above garage 4 |
| Garage | 3-car attached garage 5 |
| Bonus Room (Above Garage) | ≈ 359 sq ft — extra flex space for guest / office / media room 6 |
| Ceiling Height (Great Room) | 11 ft ceilings, with fireplace focal point 7 |
| Outdoor Access | Dining room opens onto a 15′ × 15′ patio — ideal for outdoor dining or entertaining 8 |
Exterior Style & Curb Appeal
The exterior presents classic European-inspired ranch aesthetics: nested gables, a shed dormer, arched entryways, and a mixed-materials facade that combines stone/brick with other textures — lending character, charm, and strong curb appeal.
These architectural details give the home a timeless look that stands out — appropriate for both countryside lots and upscale suburban neighborhoods.

Interior Layout & Living Flow
Inside, the layout emphasizes openness and everyday convenience. The central great room features 11′ ceilings and a fireplace — a cozy, airy space perfect for family living or entertaining.
The kitchen includes an angled island with counter-height seating, ideal for quick meals or casual conversation, and opens to the dining room — which then connects through French doors to a roomy patio for easy indoor-outdoor flow. 11
This layout blends living, dining, and outdoor space seamlessly — useful for daily life, hosting, or relaxed weekend evenings.

Bedrooms & Private Zones
The master bedroom is designed for privacy and comfort: it includes a 4-fixture en suite bath with a tile shower, and a walk-in closet located behind pocket doors for a clean, functional organization. 12
Three additional bedrooms are placed throughout the plan — giving flexibility for kids, guests, bedrooms or dedicated home office/guest-room combinations. 13
This distribution balances communal gathering spaces and private zones, making the home practical for families, guests, or shared living.

Bonus Room & Flexibility for the Future
A key advantage of this plan is the bonus room above the garage — about 359 sq ft — which can serve as a guest suite, home office, hobby room, media space, or storage, depending on your needs. 14
Because this space is separate from the main living areas and garage, it offers flexibility without altering the core layout — a smart way to “grow” your home over time.
Outdoor Living & Entertaining Potential
The dining room opens onto a 15′ × 15′ patio — perfect for outdoor dining, barbecues, or relaxing evenings. 15
Whether you’re hosting friends or enjoying quiet family meals outside, this indoor-outdoor connection adds valuable living space (without increasing heated square footage) and works especially well in mild or warm climates.
Who This Plan Is Best For
This home plan is a great match if you want:
- A mid-sized ranch home with European/classic styling and modern conveniences
- 4 bedrooms + 3 baths but also a little extra room (bonus) for flexible use — guest room, office, hobby, or media
- An open, comfortable layout that supports family living, entertaining, and indoor-outdoor lifestyle
- A 3-car garage — useful for multiple vehicles, storage, workshops, or hobbies
- A house with charm, curb appeal, and design character that works both in rural and suburban settings
Final Thoughts
Plan 135111GRA — the European-Inspired Ranch Home — offers a balanced blend of style, comfort, and flexibility.
It gives you enough bedrooms and bathrooms for a family, a bonus space for future needs, a garage large enough for practical use, and an overall layout that supports daily living and entertaining alike.
If you appreciate classic European-style architecture but want a modern, functional home that adapts to your lifestyle over time — this plan is a solid, versatile choice.
“`16















