The Mountain-Craftsman design of Plan 25827GE masterfully blends rugged character and modern comfort — creating a home that’s ideal for woodland, mountain, or countryside settings.
Spanning about 3,402 sq ft of heated space, this plan offers 3 main-level bedrooms (plus a fourth in the lower level), 3 full baths and 1 half bath, a vaulted great room, and convenient features like laundry access from the master suite.

Plan Overview & Essential Specs
| Heated Living Area | 3,402 sq ft (≈ 2,522 sq ft main + 880 sq ft lower level) 3 |
|---|---|
| Bedrooms | 4 total (3 on main level, 1 in lower level) 4 |
| Bathrooms | 3 full + 1 half (3.5 total) 5 |
| Stories | 1 main level + finished lower level / walk-out basement 6 |
| Garage | Attached 2-car (side/rear entry) — 3-car optional 7 |
| Dimensions (Width × Depth) | 80′ 7″ × 61′ 3″ 8 |
| Porches | Front covered/vaulted porch + screened rear porch 9 |
Exterior & Curb Appeal — Rustic-Mountain Charm
The exterior presents a classic mountain-craftsman aesthetic: a vaulted covered front porch (with wood and stone details) sets the tone for a cozy, welcoming home — perfect for a woodland or hillside setting.
Wide eaves, mixed materials (wood/stone), and a roof-pitch suited to heavy weather add to the plan’s rugged but refined character — ideal if you want a home that feels seasonal, retreat-like, or at-one-with nature.

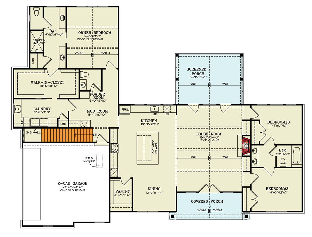
Interior Layout — Open, Spacious & Functional
Entering through the front porch brings you into a vaulted great room that flows to the rear screened porch — giving a great sense of openness and connection to nature.

To one side: a kitchen with a 6′ × 9′ island, dining area, and pantry, designed for both casual living and hosting.

On the main level’s rear: the master suite — complete with ensuite bathroom, walk-in closet, and direct access to the laundry room. This layout makes daily tasks easier and adds comfort and privacy.
On the opposite wing: two bedrooms sharing a Jack-and-Jill bath — a practical arrangement for kids or guests.

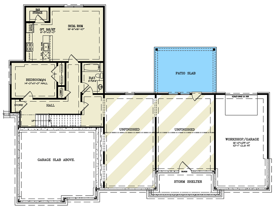
Lower Level — Bonus Space & Flexibility
The finished lower level adds substantial value: a fourth bedroom, a rec/game room or social area, and optional features like a wet bar or kitchenette — perfect for guests, extended stays, teens, or hobby space.
With 10′ ceilings down below, the space feels generous and can function almost like an independent flat — great if you host frequently or want flexibility for the future. 16
Why This Plan Works — Who It’s Best For
This design fits well if you’re looking for:
- A home with rustic mountain-craftsman styling — ideal for nature, countryside or hilly lots.
- Family-friendly layout: private master suite, shared bedrooms on main, plus extra space downstairs for guests or teens.
- Smart daily living: master-to-laundry access, open gathering spaces, and flexible living zones (indoor & outdoor).
- Long-term adaptability: finished lower level gives options for expansion, guest suites, or rental potential.
- A balance between generous space (≈ 3,400 sq ft) and practical comfort — not overly huge, but flexible enough for growing family or varying needs.
Final Thoughts
Plan 25827GE delivers a beautifully balanced home — combining the charm and sturdiness of a mountain-style craftsman with modern layout intelligence and flexibility.
Whether you imagine quiet mornings on the porch, family meals around the big kitchen island, or hosting friends in the lower-level rec room — this home plan offers warmth, adaptability, and lasting appeal.
If you value comfort, character, and room to grow (or change), this Mountain-Craftsman plan stands out as a strong, versatile choice.
“`17



