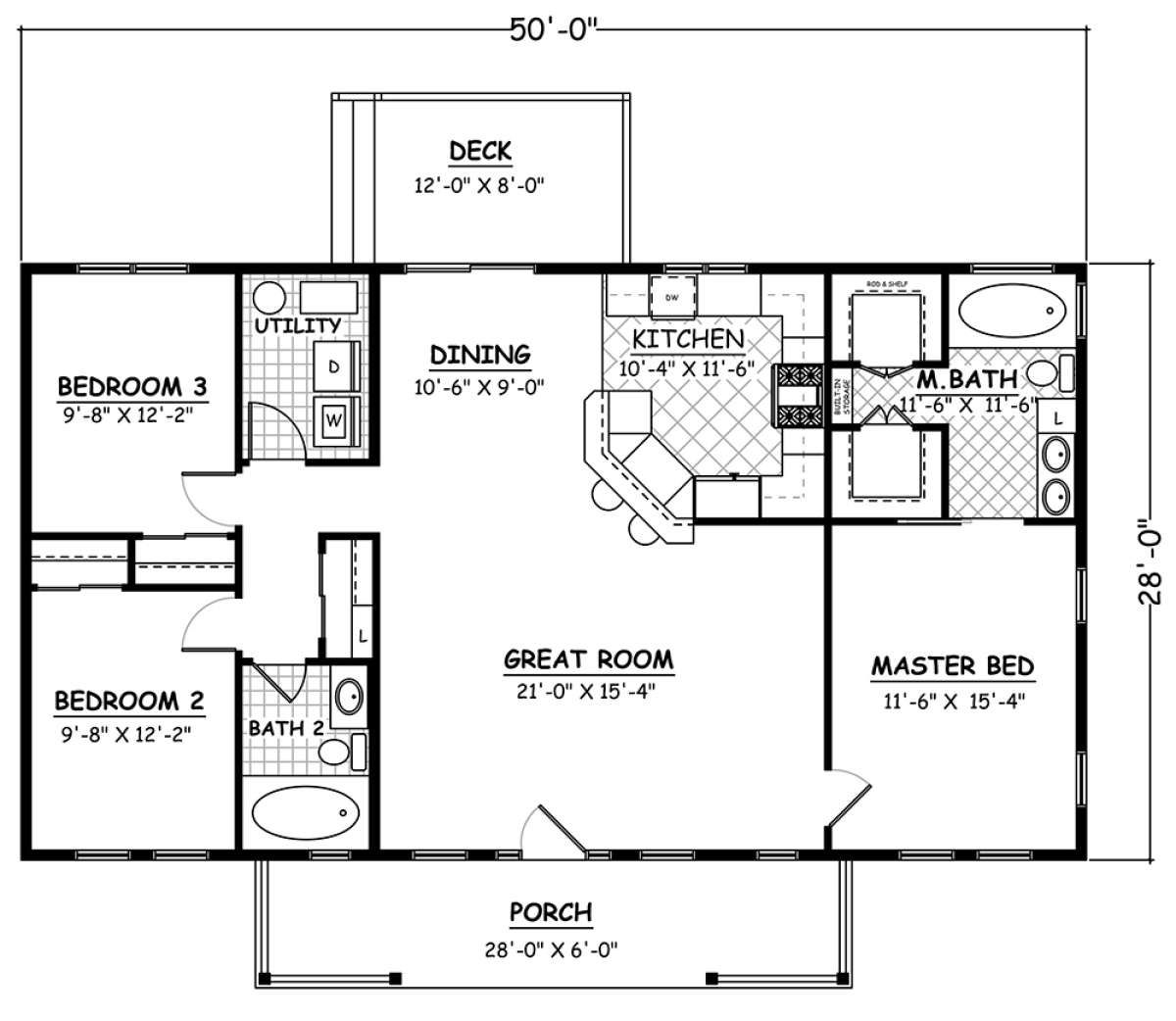
This attractive one-story ranch home offers approximately **1,400 heated square feet**, with **3 bedrooms** and **2 full bathrooms**, all on a smart, efficient footprint of **50′ wide × 28′ deep**.
Floor Plan:


Exterior Design
The home presents a classic ranch silhouette with a large covered front porch and a simple roof form pitched at **8:12**, giving height and character without excessive cost. 0
At 50′ wide the façade provides strong curb appeal, yet the 28′ depth keeps the build cost efficient and the lot footprint shallow—ideal for narrower parcels or subdivided lots. 1
Exterior materials combine country charm (sculpted beams, open railings) with functional design, and a rear deck connects the indoor living area to the backyard for casual entertaining. 2

Interior Layout & Flow
Entering from the covered porch leads you directly into a large family room that flows openly into the dining area and kitchen. The slider access to the deck makes this space naturally connected to the outdoors—perfect for relaxed living or hosting gatherings. 3
The plan features a split-bedroom layout: the owner’s suite is located on one side of the home for privacy, while the two additional bedrooms lie on the opposite wing—giving separation between relaxing and sleeping zones. 4

Bedrooms & Bathrooms
The master suite features dual walk-in closets and a full en-suite bath, offering comfort and privacy. The two secondary bedrooms share the second full bathroom, accessed via a short hallway. This efficient clustering keeps circulation minimal. 5
Having two full baths in a home of this size greatly boosts flexibility for families, guests, or multi-generational living, while maintaining compact scale and affordability.

Living & Dining Spaces
The main living and dining zone includes generous window views and plenty of natural light, anchoring the home’s social heart. The open layout and direct deck access foster a seamless indoor-outdoor connection. 6
The uncomplicated layout results in fewer interior walls, more visual openness, and efficient furnishing—so the home feels larger than its footprint suggests without wasted space.
Kitchen Features
The kitchen is placed adjacent to the dining area and overlooks the living room, enabling an interactive flow during meal prep and social time. Its bar-style counter adds casual seating, and the proximity to the deck supports outdoor dining or BBQs. 7

The functional design includes pantry-sized storage, ample counter space relative to the home’s size, and logical adjacency to the laundry/utility room—balancing convenience with efficient use of square footage.
Outdoor Living
The expansive covered front porch extends the living zone outdoors while enhancing curb appeal. It provides a dedicated space for seating and relaxation that doesn’t intrude into the indoor footprint. 8
A rear deck accessible from the dining area offers ideal space for al-fresco dining, entertaining guests, or simply enjoying the backyard. The combination of front and rear outdoor zones increases usable living space without major additional cost. 9

Construction & Efficiency Notes
The plan is drawn with 2×6 exterior framing (optionally convertable to 2×4), which provides flexibility for insulation upgrades and regional adaptation. 10
With a compact footprint and efficient floor plan the mechanical, plumbing and service runs are minimized. The simple roof form and shallow depth also contribute to lower build cost and better energy performance.
Estimated Building Cost
The estimated cost to build this home in the United States ranges between $220,000 – $300,000, depending on region, finish quality, site conditions and labor rates.

Why This Ranch Plan Works
This design hits a sweet spot: three bedrooms, two baths, open living and great outdoor connectivity in roughly 1,400 sq ft. The split-bedroom plan adds function and privacy, while the efficient scale keeps cost and maintenance manageable.
For young families, couples who entertain, or those wanting to right-size with full functionality, this ranch plan delivers a comfortable, attractive, and value-driven home. It’s ready to become a lifetime home rather than a compromise.
“`11














