DREAM HOMES
  • Home
  • Tiny House
  • Two Bedrooms
  • Three Bedrooms
  • Two-storey
  • Modern House
No Result
View All Result
  • Home
  • Tiny House
  • Two Bedrooms
  • Three Bedrooms
  • Two-storey
  • Modern House
No Result
View All Result
DREAM HOMES
No Result
View All Result
Home House Plans

2-Bed Hill Country Home Plan with Carport – 1,522 sq ft • 2 Beds & 2 Baths

barikisimba by barikisimba
October 23, 2025
in House Plans
0
2-Bed Hill Country Home Plan with Carport – 1,522 sq ft • 2 Beds & 2 Baths
0
SHARES
194
VIEWS
Share on FacebookShare on Twitter

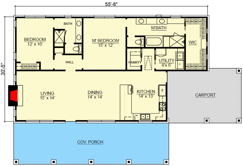
This stylish Hill Country-inspired one-story home offers approximately **1,522 heated square feet**, with **2 bedrooms**, **2 full bathrooms**, and an attached two‐car carport.

Floor Plan:

Exterior Design

The home measures roughly **67′ wide × 42′ deep**, with a modest maximum ridge height of **17′** — making it well suited for ranch sites and one-level living. 1

The exterior evokes the Hill Country vernacular with stone accents, a ribbed metal roof, and broad covered porch. The carport is integrated on the side-front, keeping the main facade clean and uncluttered. 2

Interior Layout & Flow

You’re welcomed by the deep covered porch that opens into a flowing space combining living room, dining area and kitchen — perfect for modern open-living while retaining regional character. The fireplace anchors the living wall, and the kitchen uses a U-shaped configuration for efficiency. 3

The carport enters directly into the kitchen area, making access convenient for daily errands and grocery drops. Bedrooms are tucked toward the rear of the plan for privacy and quiet. 4

Bedrooms & Bathrooms

The master suite features its own full bath with separate tub and shower, plus a walk-in closet — thoughtful luxury in a modest size home. 5

The second bedroom also enjoys its own full bathroom, making the home equally suitable for guests or shared living. Both bedrooms are rear-facing, enhancing peace and separation from living zones.

Living & Dining Spaces

The open-concept great room, kitchen and dining layout creates a sense of volume and connectivity throughout the core of the home. The fireplace in the living area adds warmth and a focal point.

Dining is conveniently placed between the living area and the kitchen, and thanks to the porch adjacency, there’s good potential for indoor-outdoor flow on mild evenings.

Kitchen Features

This efficient kitchen design incorporates U-shaped counters for good workflow while staying compact. With direct access from the carport, it’s optimized for both function and convenience.

While modest, the kitchen layout allows for quality finishes and a smart pantry or storage allocation — ideal for those who value practicality and design in equal measure.

Carport & Storage

The two-car carport (315 sq ft) offers covered vehicle parking without dominating the home’s frontage. 6

Storage is provided via closets and the modest plan dimensions ensure fewer hallways and wasted zones — meaning more of the square footage goes into useful living space.

Construction & Efficiency Notes

The design uses 2×4 exterior wall construction, standard measurements for the first floor (9′ ceilings) and a simple 6:12 primary roof pitch with a secondary 2:12 pitch. 7

The compact, single-story footprint with clustered bedrooms and utility zones makes it economical to build and efficient to operate — a strong fit for both primary homes and retreat scenarios.

Estimated Building Cost

The estimated cost to build this home in the United States ranges between $215,000 – $285,000, depending on region, finishes, site conditions, and contractor rates.

Why This Hill Country Plan Works

This home blends regional character with smart modern layout. With two bedrooms and two baths, it’s perfect for empty-nesters, a small family, or seasonal use — yet designed with finish and detail that feel upscale without being oversized.

The wide front porch, stone/metal roof aesthetic and open living zones deliver style and vision, while the carport integration and efficient footprint keep build and operating costs reasonable. For those seeking a charming, livable home with Hill Country flair, this plan ticks the boxes.

“`8

Related

Previous Post

Simple Rustic Cabin with 8′-Deep Front Porch – 1,367 sq ft • 2 Beds & 2 Baths

Next Post

3-Bed Cottage Plan with Open Layout – 1,181 sq ft • 3 Beds & 2 Baths

barikisimba

barikisimba

Next Post
3-Bed Cottage Plan with Open Layout – 1,181 sq ft • 3 Beds & 2 Baths

3-Bed Cottage Plan with Open Layout – 1,181 sq ft • 3 Beds & 2 Baths

Leave a Reply Cancel reply

Your email address will not be published. Required fields are marked *

  • Trending
  • Comments
  • Latest
10 Beautiful Houses And Advantages of Owning a Small House (1–2 Rooms)

10 Beautiful Houses And Advantages of Owning a Small House (1–2 Rooms)

November 30, 2024
AMERICAN BEAUTIFUL HOUSES WITH FLOOR PLANS

AMERICAN BEAUTIFUL HOUSES WITH FLOOR PLANS

February 10, 2025
Discover The Benefits Of Tiny Houses As Well As 10 Unique House Designs For Modern Lifestyles

Discover The Benefits Of Tiny Houses As Well As 10 Unique House Designs For Modern Lifestyles

October 31, 2024
Top 10 Stunning House Designs for Modern Living

Top 10 Stunning House Designs for Modern Living

September 29, 2024
Country Ranch Duplex — (2 × 612 Sq Ft Units)

Country Ranch Duplex — (2 × 612 Sq Ft Units)

3
The Ten Best Tiny House Designs in 2024 With Floor Plans

The Ten Best Tiny House Designs in 2024 With Floor Plans

2
Explore Our 12×9 Meter House Design with 2 Beds, 2 Baths, and Gable Roof

Explore Our 12×9 Meter House Design with 2 Beds, 2 Baths, and Gable Roof

1
Compact Comfort: Designing a Stylish 60 sqm Two-Bedroom Bungalow

Compact Comfort: Designing a Stylish 60 sqm Two-Bedroom Bungalow

1
2,589 Sq Ft Open-Concept Craftsman – 4–5 Bedrooms, Bonus Room Over Garage (Plan 51778HZ)

2,589 Sq Ft Open-Concept Craftsman – 4–5 Bedrooms, Bonus Room Over Garage (Plan 51778HZ)

December 2, 2025
3,402 Sq Ft Mountain-Craftsman Home — Rustic Charm, Smart Layout (Plan 25827GE)

3,402 Sq Ft Mountain-Craftsman Home — Rustic Charm, Smart Layout (Plan 25827GE)

December 2, 2025
2,195 Sq Ft Modern Farmhouse – 3 Beds, 2.5 Baths (Plan 041‑00327)

2,195 Sq Ft Modern Farmhouse – 3 Beds, 2.5 Baths (Plan 041‑00327)

December 2, 2025
2,899 Sq Ft European-Inspired Ranch — 4 Beds, 3 Baths & Bonus Room (Plan 135111GRA)

2,899 Sq Ft European-Inspired Ranch — 4 Beds, 3 Baths & Bonus Room (Plan 135111GRA)

December 1, 2025

Recent News

2,589 Sq Ft Open-Concept Craftsman – 4–5 Bedrooms, Bonus Room Over Garage (Plan 51778HZ)

2,589 Sq Ft Open-Concept Craftsman – 4–5 Bedrooms, Bonus Room Over Garage (Plan 51778HZ)

December 2, 2025
3,402 Sq Ft Mountain-Craftsman Home — Rustic Charm, Smart Layout (Plan 25827GE)

3,402 Sq Ft Mountain-Craftsman Home — Rustic Charm, Smart Layout (Plan 25827GE)

December 2, 2025
2,195 Sq Ft Modern Farmhouse – 3 Beds, 2.5 Baths (Plan 041‑00327)

2,195 Sq Ft Modern Farmhouse – 3 Beds, 2.5 Baths (Plan 041‑00327)

December 2, 2025
2,899 Sq Ft European-Inspired Ranch — 4 Beds, 3 Baths & Bonus Room (Plan 135111GRA)

2,899 Sq Ft European-Inspired Ranch — 4 Beds, 3 Baths & Bonus Room (Plan 135111GRA)

December 1, 2025
  • Home
  • House Design

© 2024 Site By @Renato

No Result
View All Result
  • Home
  • Small House
  • 2 Bedroom
  • 3 BedRoom
  • House Design
  • 3-Storey
  • Bungalow
  • 2-Storey
  • Farmhouse

© 2024 Site By @Renato