This smartly-scaled modern farmhouse offers around **1,056 heated square feet**, featuring **3 bedrooms** and **2 full bathrooms**. The streamlined footprint and efficient layout make it an excellent choice for a starter home or modest living.
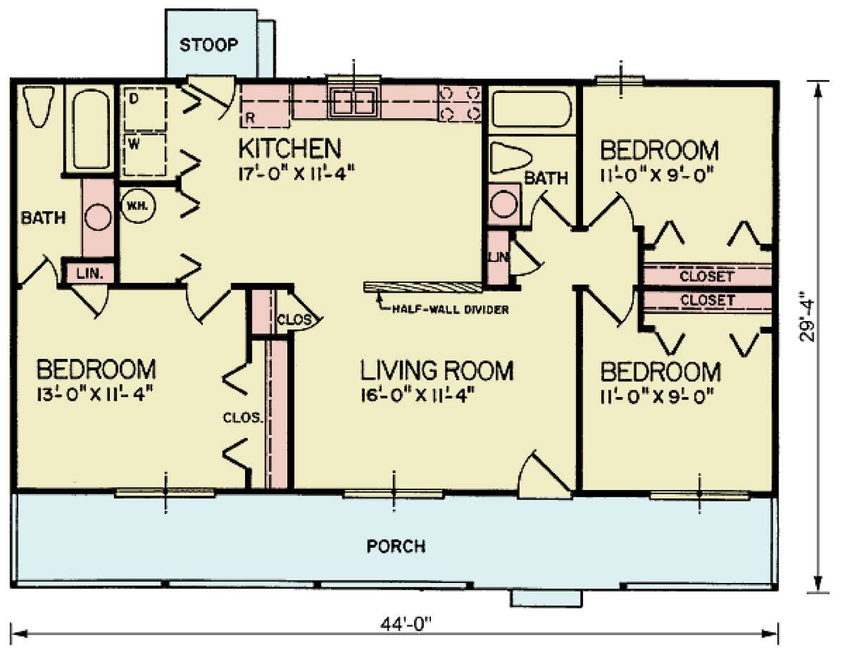
Floor Plan:

Exterior Design
The home’s footprint spans approximately **44′ wide × 33′-4″ deep**, with a ridge height well under typical two-story structures—making this one modest on the lot. 1
Styling leans modern farmhouse: clean lines, gabled roof with 5:12 pitch, and likely board-and-batten or siding façade options. 2×4 exterior framing is used by default, keeping build costs efficient. 2
A significant front porch (~235 sq ft) anchored the facade, offering generous transition space from outdoors to indoors. 3

Interior Layout & Flow
Upon entry, you step directly into the open living/dining/kitchen zone. The layout minimizes wasted corridors and maximizes usable space.
The bedrooms are arranged with efficiency in mind—three bedrooms sharing the single-level floor plan, with the two full baths positioned to serve the rooms while preserving openness in the living area. 4
Bedrooms & Bathrooms
Each of the three bedrooms is sized to support standard furnishings and has access to either a dedicated or nearby full bathroom. The inclusion of two baths in this size home is a major plus.
The master bedroom enjoys one full bath while the other two bedrooms share the second bath—keeping privacy high without sacrificing space. Since all is on one level, transitions are smooth and practical.

Living & Dining Spaces
The living area’s open layout fosters connection between kitchen, dining and lounging zones. Large windows on the front (and likely rear) bring daylight in and visually expand the compact footprint.
The dining space sits comfortably between the kitchen and living room, making entertaining or family meals natural. The design avoids wasted nooks and emphasizes functional openness.
Kitchen Features
The kitchen, while modest in size, is optimized for efficiency. With the open floor plan, the cook remains part of social interaction rather than isolated. Counter and storage layout are likely streamlined and practical.
Proximity to the dining/living zone and minimal circulation barriers mean the kitchen supports both daily use and small gatherings without feeling cramped.

Outdoor Living (Front Porch)
A standout feature is the generous front covered porch (~235 sq ft) which extends the living area outdoors and adds strong curb appeal. 5
While rear porches or decks aren’t emphasized in the standard layout, the front porch itself offers ample space for outdoor seating and connection to the yard.
Construction & Efficiency Notes
With 2×4 exterior walls by default and a footprint of just over 1,000 sq ft, this home is efficient both to build and to maintain. Compact size means heating/cooling loads are lowered and fewer materials are needed.
The open layout and minimal hallway/corridor space boost livability, while the generous front porch adds usable square footage without increasing heated area—smart value engineering.

Estimated Building Cost
The estimated cost to build this home in the United States ranges between $155,000 – $225,000, depending on region, finish level, site conditions and labour rates.
Why This Plan Appeals
This modern farmhouse plan strikes an excellent balance of size, function and style. With three bedrooms, two baths, an open layout and a signature front porch, it offers full-family functionality in a surprisingly compact footprint.
For those seeking a home that’s efficient, build-friendly, and stylish without excess square footage, this plan delivers. It’s ideal for first homes, downsizing or any homeowner valuing simplicity and smart design.
“`6














