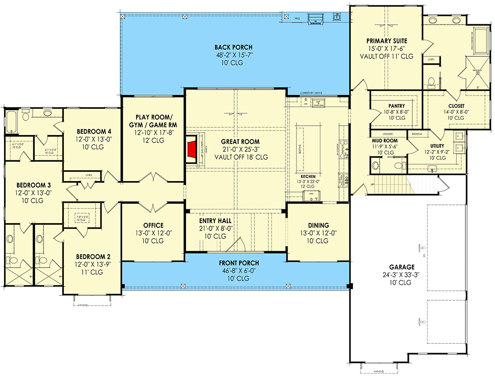
This expansive modern farmhouse spreads across approximately 3,718 square feet of carefully arranged living space designed for both comfort and style. With four bedrooms, four and a half baths, and a spacious three-car garage, the layout balances open gathering spaces with private retreats. A bonus room above the garage adds flexible square footage that adapts to changing lifestyle needs. Soaring vaulted ceilings, functional zones for work and play, and thoughtful circulation make this plan ideal for families who value accessibility, connection, and architectural character.


Exterior & Curb Appeal
The exterior embraces modern farmhouse charm with a balanced front elevation featuring metal roof accents, shed dormers, and a deep covered porch that anchors the facade. Clean lines, well-proportioned openings, and a harmonious blend of materials create visual interest from every angle. Carefully placed windows bring natural light deep into the home’s core and frame the surrounding landscape with clarity and warmth. This modern farmhouse silhouette feels timeless yet refined, making a memorable impression without overwhelming simplicity.


Interior Layout
Inside, the plan opens with a gracious entry that flows into a vaulted great room with a soaring ceiling that enhances volume and spatial connection. The layout encourages easy movement from space to space, linking living, dining, and kitchen areas without interrupting the sense of openness. Defined wings separate private sleeping quarters from shared living zones, ensuring that daily routines and gatherings feel balanced and purposeful. Clear sightlines and seamless transitions support a natural and intuitive circulation throughout.

Kitchen & Living Areas
The kitchen is thoughtfully designed for both everyday living and entertaining. An oversized island provides generous workspace and casual seating, while abundant counters and storage support ease of use. Adjacencies to the dining and great room make the kitchen a hub of activity where food preparation, conversation, and shared living merge beautifully. Large windows and doors bring daylight into these core spaces, creating an inviting atmosphere that feels bright, open, and engaging.

Bedrooms & Bathrooms
The master suite is tucked behind the three-car garage for added privacy and quiet away from main activity zones. With a vaulted ceiling and a generous ensuite bathroom, it presents a restful retreat designed for comfort and relaxation. A walk-in closet and access to the laundry room create a practical everyday flow. Across the home, three additional bedroom suites each include their own full baths and ample closet space, giving family members and guests private accommodations with thoughtful convenience.

Bonus Spaces
A substantial bonus room above the garage adds flexible square footage that can be adapted to suit your lifestyle. Whether finished as a media room, a creative studio, a play area, or a home office, this space invites versatility while remaining connected to the home’s overall layout. Its placement creates a sense of separation from daily activity areas, making it ideal for focused pursuits or lively gatherings without interrupting the rhythm of main living zones.

Outdoor Living
Outdoor living is an essential part of this farmhouse plan, with covered porch spaces that extend the interior footprint into fresh air. The rear porch becomes an ideal setting for al fresco dining, casual lounging, or evening conversations under the sky. These outdoor areas enhance the home’s livability and encourage daily interaction between interior comfort and exterior enjoyment, creating intentional space for relaxation and connection with nature.

Practical Features
Everyday practicality has been thoughtfully integrated into this home’s design. The three-car garage provides generous storage and secure parking, with direct access to a mudroom that helps keep daily transitions orderly. Well-placed closets throughout support organization without intruding on living areas. Likewise, generous natural light and high ceilings contribute to a bright, uplifting interior that enhances comfort and energy efficiency. Circulation paths between functional zones are clear and intuitive, making daily life feel effortless.

Lifestyle Value
This modern farmhouse plan supports a dynamic lifestyle with spaces that adapt as your needs evolve. Open shared areas foster connection and engagement, while private wings and adaptable bonus spaces offer retreat and flexibility. Thoughtful architectural details paired with practical planning create a home that feels refined, warm, and deeply livable. Whether hosting gatherings with loved ones or enjoying quiet daily routines, this design enriches both everyday moments and special occasions.
Construction Cost Estimate (United States)
Estimating the cost to build this approximately 3,718 square foot modern farmhouse in the United States involves consideration of regional labor rates, material choices, and finish levels. Base construction in areas with moderate labor costs and standard finishes would typically fall into a mid-to-upper range budget for homes of this size and complexity. Material upgrades such as custom cabinetry, premium flooring, and high-efficiency systems will increase the overall investment, as will intricate exterior features like metal roof accents and expansive porch spaces. Labor costs in high-demand urban or coastal regions tend to be higher than in rural markets. Site conditions, foundation requirements, and outdoor amenities also shape the total project cost. Early collaboration with a local builder helps align design goals with financial expectations to achieve a successful construction outcome that reflects your priorities.





