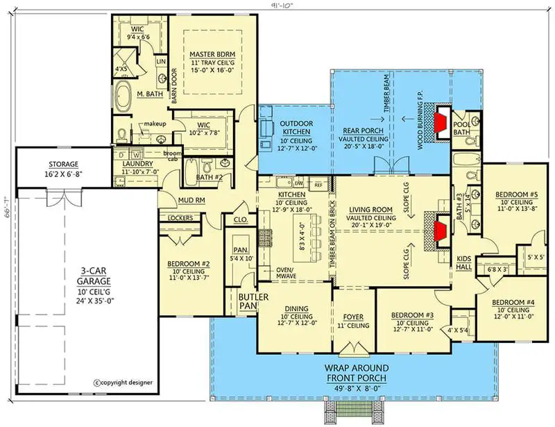
Designed with both elegance and everyday living in mind, this 2,705-square-foot modern farmhouse offers the perfect blend of rustic charm and contemporary comfort.

With a spacious split-bedroom floor plan, open living areas, and a 3-car garage, this home delivers a thoughtful design that adapts easily to modern family life.
Eye-Catching Modern Farmhouse Exterior
The exterior makes an instant impression with its crisp board and batten siding, steep gables, and a welcoming covered front porch supported by classic wood columns. Accents like black-framed windows and decorative brackets add contrast and style, while the three-car garage is positioned with a side entry to maintain a clean and symmetrical façade.

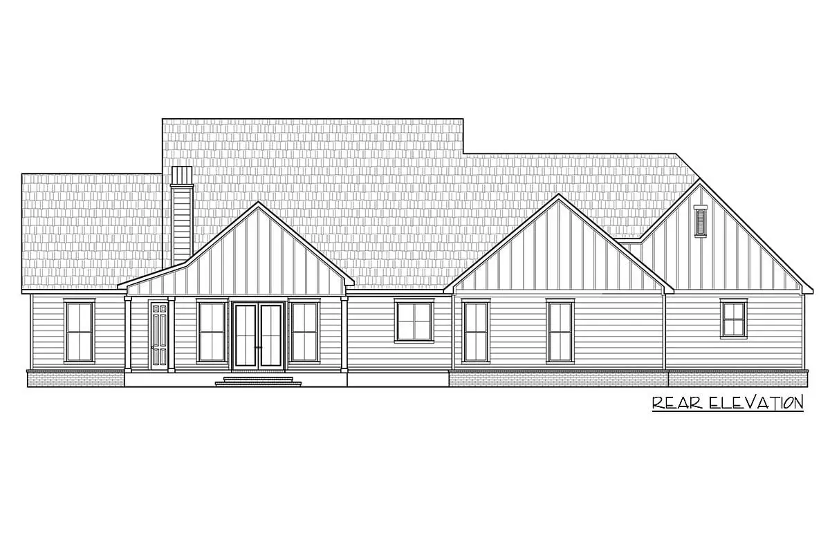
Outdoor Living with Front and Rear Porches
The wide front porch offers a classic farmhouse welcome and the perfect place to sit and enjoy peaceful mornings. Around back, an expansive covered rear porch creates a true outdoor living room—ideal for entertaining, grilling out, or relaxing in the shade. With plenty of space for furniture and a beautiful connection to the backyard, this porch is ready for year-round use.
Spacious Great Room with Vaulted Ceiling
At the heart of the home, the great room features a soaring vaulted ceiling with exposed beams and a cozy fireplace that creates warmth and ambiance. Large windows along the back wall let natural light pour in, enhancing the bright, airy feel of the space. It’s a perfect place for family gatherings, quiet nights, or hosting friends in style.

Stylish Kitchen with Central Island and Walk-In Pantry
The open kitchen is designed to be both functional and beautiful. A large island with bar seating serves as a central gathering point, while the walk-in pantry keeps everything organized and out of sight. With plenty of cabinetry, counter space, and a seamless flow to the dining area, this kitchen is ready for everyday meals and special celebrations alike.

Private Primary Suite with Porch Access
Set apart from the other bedrooms, the primary suite offers a private escape with rear porch access and large windows that bring the outdoors in. The ensuite bathroom includes dual vanities, a soaking tub, a separate shower, and a generous walk-in closet—combining luxury with functionality in a peaceful setting.

Split-Bedroom Design for Family Flexibility
Across the home, two additional bedrooms share a full bathroom and are tucked into their own wing for added privacy. Each bedroom offers ample closet space and is ideally sized for children, guests, or even converting into an office or creative space. The split layout supports a comfortable lifestyle for families of all sizes.

Dedicated Office and Formal Dining Room
A separate home office near the foyer provides a quiet workspace ideal for remote professionals or students. The formal dining room adds a touch of sophistication and is positioned to welcome guests for holidays, dinners, and celebrations, all while remaining connected to the kitchen for easy serving.

Functional Mudroom and Laundry Spaces
Between the garage and the main living area, a mudroom with built-in lockers helps keep the household organized. Adjacent to this is a spacious laundry room with countertops and storage—making chores efficient and keeping daily life running smoothly.

Three-Car Garage with Ample Storage
The three-car garage not only accommodates multiple vehicles but also provides space for tools, bikes, lawn equipment, or even a workshop area. The side-entry design enhances curb appeal while offering maximum functionality for active households.
Effortless Living in a Stylish Setting
This modern farmhouse was designed to make everyday life easier and more enjoyable. With its open floor plan, flexible bedroom layout, abundant storage, and stylish finishes, it’s a home that brings together classic farmhouse warmth with the needs of today’s families—all wrapped up in 2,705 square feet of thoughtfully crafted space.













