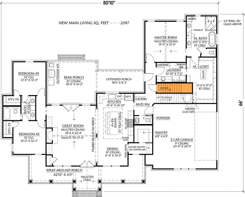
Woven with charm and grounded in thoughtful design, this 2,290 square foot New American farmhouse reflects modern rural living at its finest. Blending a welcoming exterior with a functional interior layout, it appeals to families seeking comfort, versatility, and everyday luxury. The plan offers flexibility with three bedrooms and the option for a fourth, multiple baths, and rich indoor-outdoor interplay that elevates everyday moments and gatherings alike. Whether you are imagining your forever home or a retreat on rolling acreage, this farmhouse embodies refined simplicity with broad lifestyle appeal.

Exterior & Curb Appeal
The exterior greets you with a combination of brick and board and batten siding that creates visual depth and timeless character. A generous wrap-around porch sweeps across the front and continues around the side, offering both shelter and space for seated conversation, morning coffee, or evening relaxation. Tall windows punctuate the facade, framing views and drawing natural light deep into the living spaces. The subtle contrast between masonry and vertical siding gives the elevation balance and a crafted feel, while architectural details such as a pitched roof and thoughtful overhangs provide classic proportions that feel both traditional and fresh.

Interior Layout
Step through double doors into an open and fluid heart of the home where the great room, dining area, and kitchen flow effortlessly together. A vaulted ceiling above the great room creates a sense of airiness, and a centered fireplace anchors the space, inviting warmth and central focus for gatherings. This expansive main living zone sets the tone for connectivity, yet cleverly zones comfortable lounging, dining, and cooking for seamless everyday use and entertaining. Beyond the main area, private spaces are arranged with familial comfort and privacy in mind.

Kitchen & Living Areas
The kitchen enjoys a central position within the open layout, with generous counter space and room for a casual dining nook or island seating. Thoughtful planning ensures that the cook is part of the action, whether hosting friends or keeping an eye on children doing homework at the counter. Adjacent, the great room’s vaulted ceiling and generous proportions make it a welcoming refuge for relaxation or lively conversation. French doors at the rear open to the porch, extending living space outward and encouraging an easy flow between indoor comfort and fresh air.

Bedrooms & Bathrooms
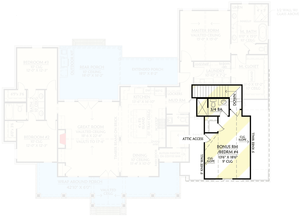
The master suite is delicately nestled behind the garage, offering privacy and a serene retreat from the communal spaces. Its accompanying luxury bathroom features multiple fixtures and a walk-in closet with direct access to the main laundry room, creating a thoughtful circulation that simplifies daily routines. Two additional bedrooms are positioned on the opposite side of the home, sharing a Jack-and-Jill style bath that balances convenience and privacy. For those needing an extra sleeping space or guest suite, the bonus room above the garage, complete with its own full bath, can easily serve as a fourth bedroom when finished.

Bonus Spaces
Above the garage, a spacious bonus room adds flexible square footage that can transform with your lifestyle. Whether designated as a home office, media room, hobby space, or fourth bedroom, this area enhances usability without infringing on primary living zones. Its placement above the garage creates a private domain separate from the main traffic areas of the house, ideal for quiet work or play.

Outdoor Living
Outdoor living is a defining feature of this farmhouse. The wrap-around porch naturally expands daily life into the open air, offering shelter for porch swings, rocking chairs, and seasonal décor. At the rear, French doors and generous porch coverage invite alfresco dining or morning coffee with a view. Whether it’s a quiet sunrise over rolling fields or an evening barbecue with friends, the outdoor living spaces are designed to be extensions of the interior, fostering connection with the landscape and family life.
Practical Features
Functionality has not been sacrificed in the pursuit of style. The two-car attached garage provides secure parking and storage while sitting just off the main circulation path for ease of access. A convenient mudroom transition zone keeps everyday clutter contained near the garage entry. The main laundry connection to the master closet reduces unnecessary trips across the home, exemplifying thoughtful flow and practical consideration. Ceiling heights and ample storage throughout further enhance everyday comfort and usability.
Lifestyle Value
This farmhouse design is crafted for families who value harmony between shared spaces and personal retreats. Convivial layouts paired with private corners allow for both lively gatherings and peaceful solitude. The balance of open-plan living and distinct private zones supports a dynamic lifestyle that adapts to your daily rhythms. Natural materials and classic farmhouse elements lend an enduring aesthetic that feels both grounded and elegant. Whether raising a family or entertaining friends, this home amplifies the pleasures of daily living and connection to place.
Construction Cost Estimate (United States)
Estimating construction costs for this farmhouse in the United States involves considering labor, materials, site conditions, and finish levels. For a 2,290 square foot home with quality finishes typical of a modern farmhouse, rough construction costs might range from moderate to high, depending on region and selected materials. In many parts of the country, basic construction could fall in the lower to mid range of national averages, with more custom elements, high-end cabinetry, stonework, or premium fixtures increasing the overall budget. Labor costs vary significantly by area, but contractor hours for this size and complexity might represent a substantial portion of the budget. Mechanical systems, roofing, and exterior siding choices also affect totals. A broad range for construction might span from modest regional averages up through more elevated figures in high-cost metropolitan or coastal areas. Including landscaping, driveways, and outdoor living amenities can further influence the final cost. Careful planning with a local builder and transparent budgeting will help align design aspirations with financial expectations while building this inviting farmhouse home.















