This Modern Farmhouse plan offers approximately 4,276 square feet of well-designed space that balances comfort, style, and flexibility. The layout includes 5 bedrooms, 4 full bathrooms, 1 half bath, and an attached 3-car garage. With generous shared areas, a dedicated home office, and a beautifully planned outdoor kitchen, this home supports everyday living, entertaining, and work-from-home comfort all under one roof.

An Exterior That Marries Modern Simplicity with Farmhouse Warmth
The exterior showcases a clean but inviting Modern Farmhouse aesthetic, with balanced rooflines and carefully placed windows that let in abundant natural light. A welcoming covered entry and thoughtful facade composition create strong curb appeal without unnecessary embellishment. The attached garage integrates smoothly into the overall design, preserving a composed street presence.

Open Shared Living Areas Designed for Connection
As you enter, the home unfolds into spacious shared living zones that encourage connection and ease of use. The great room flows seamlessly into the dining area and kitchen, creating a central hub for daily life and social interaction. A large island anchors the kitchen, providing ample prep space and casual seating for family meals or informal gatherings. The thoughtful layout minimizes barriers between key spaces, making everyday routines and entertainment feel natural and effortless.

A Dedicated Home Office to Support Productivity
One of the standout features of this plan is the dedicated home office. Positioned for both privacy and convenience, it provides a quiet space for remote work, study, or creative projects. Its placement near the entry makes it ideal for use without interrupting core family zones, offering a focused workspace that feels intentional and functional.

Private Bedroom Retreats and Comfortable Suites
The primary suite is positioned to provide a peaceful retreat with a spacious full bathroom and generous closet space. Secondary bedrooms are thoughtfully arranged to offer comfort and privacy for family members or guests. Each of the additional bedrooms has logical access to full bathrooms, helping avoid congestion during busy routines and enhancing personal comfort throughout the home.

Flexible Spaces and Bonus Rooms
Beyond the main shared and private zones, this plan includes flexible spaces that adapt to your lifestyle. These rooms can serve as media areas, playrooms, hobby spaces, or guest suites depending on your needs. Their placement enhances the home’s versatility without interrupting the flow of daily life.
Outdoor Living
This farmhouse excels in blending indoor and outdoor living. A covered outdoor kitchen and patio area expand your living space into the fresh air, creating ideal settings for al fresco meals, gatherings, or relaxed weekend cooking. These spaces feel like natural extensions of the interior, enhancing your ability to enjoy outdoor comfort throughout much of the year.

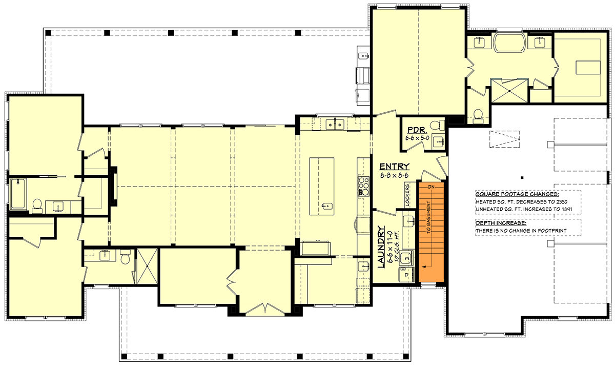
Practical Details That Support Everyday Comfort
The home’s circulation and utility spaces are planned for efficiency. A mudroom adjacent to the garage entry helps keep everyday clutter contained, while a dedicated laundry room supports organization and ease of use. Well-placed windows throughout maximize daylight without sacrificing privacy or comfort, contributing to an overall feeling of openness and light.

A Home That Fits Many Lifestyles
This Modern Farmhouse plan supports a range of lifestyles — from active family living to hosting friends, working from home, or enjoying quiet retirement years. Its open shared spaces promote social connection, while private retreats and dedicated functional zones help maintain balance and comfort for all household members.
Cost and Construction Planning Considerations
In the United States, homes of this size and character typically fall into a construction cost range that reflects regional labor conditions, material quality, site conditions, and chosen finish levels. Efficient material selections, thoughtful mechanical planning, and early collaboration with builders can help align final costs with your vision. Premium finishes and custom details, especially in outdoor living spaces and interior finishes, can elevate the overall investment while enriching daily life.
















