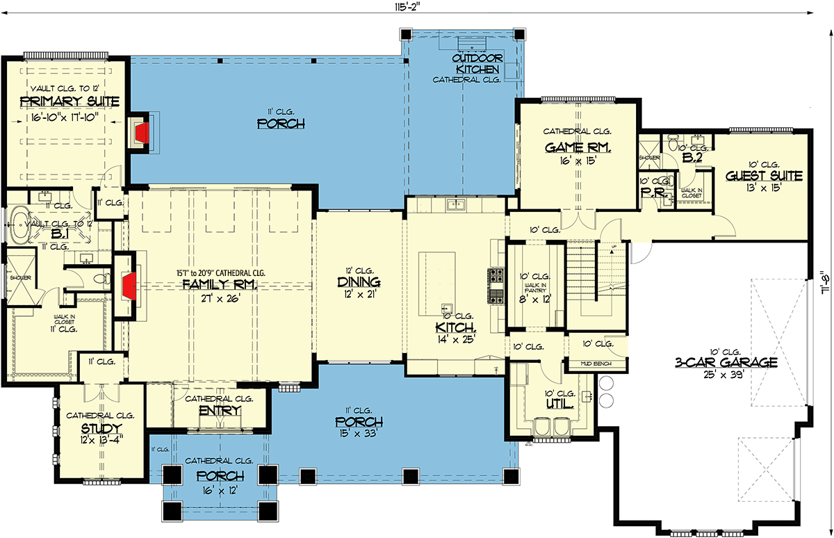
This thoughtfully designed Transitional Farmhouse plan encompasses approximately 4,600 square feet of livable space crafted to support modern family life, work, play, and everyday comfort. The layout includes 4 bedrooms, 3.5 bathrooms, an attached 3-car garage, a dedicated study, and a game room that adds versatility and entertainment value to the home.

An Exterior That Feels Timeless and Welcoming
The exterior of this home blends classic farmhouse proportions with transitional detailing that feels current without being overly ornate. Balanced rooflines and a covered entry create a welcoming presence, while generous windows bring natural light into interior spaces. The attached garage is positioned to support ease of access without dominating the street facade, maintaining a refined architectural rhythm.

Shared Living Areas Designed for Everyday Connection
Upon entering, you encounter shared zones designed to feel open yet purposeful. The family room connects naturally with the dining area and kitchen, creating a central living zone that supports both everyday routines and larger gatherings. A large kitchen island offers workspace and casual seating, making it an ideal hub for family meals and interaction. Careful planning ensures smooth circulation between spaces without sacrificing definition or comfort.

A Dedicated Study for Focused Work or Quiet Time
A dedicated study near the main entry provides a peaceful space for work, reading, or creative projects. Its placement ensures that productivity and quiet activity can happen without interrupting the flow of daily life in shared zones. Whether you work from home regularly or need a comfortable space for managing household tasks, this room enhances the home’s functional versatility.

Primary Suite That Feels Like a Retreat
The primary bedroom is positioned to provide a sense of privacy and tranquility. Its full bathroom offers thoughtful storage and a comfortable layout for everyday use. Secondary bedrooms are placed with both privacy and convenience in mind, each with easy access to full bathroom facilities to support both resident and guest routines. The thoughtful bedroom configuration helps reduce traffic conflicts and enhances everyday comfort.

Game Room Adds Entertainment and Flexibility
The game room adds a fun, flexible space that can serve multiple purposes — from a dedicated recreation area to a secondary family lounge, media room, or hobby space. Its location within the floor plan supports playful use while still being connected to the home’s primary living zones. This added space increases the home’s adaptability and long-term utility for families with varied interests.

Outdoor Living That Enhances Comfort
Outdoor living areas are integrated into the design with covered porch spaces that extend your living footprint. These exterior rooms provide comfortable settings for dining, relaxation, or socializing in mild weather. Because they connect directly to the interior gathering spaces, they feel like natural extensions of daily life rather than afterthoughts.
Practical Details for Daily Ease
Utility spaces such as a mudroom adjacent to the garage entry and a dedicated laundry room help support everyday routines while keeping main living areas calm and organized. Thoughtful placement of windows enhances daylight without compromising privacy, and higher ceilings in shared zones help create a sense of openness without added construction complexity.
A Home That Adapts to Lifestyle Needs
This Transitional Farmhouse plan is ideal for families who value connected living, functional workspaces, and versatile entertainment zones. Its blend of open shared areas, private retreats, and dedicated rooms makes it suitable for daily comfort, social gatherings, and evolving lifestyle needs. Whether you need space for work, play, quiet retreats, or outdoor enjoyment, this plan delivers a balanced and livable design.
Construction and Planning Considerations
For construction planning in the United States, homes of this size and character generally fall into a cost range influenced by regional labor rates, material choices, site conditions, and the level of interior finishes. Early collaboration with builders, careful selection of materials, and defining your preferred finish levels can help align final costs with your goals. Premium features and custom details will trend toward a higher build cost, while efficient material choices and competitive local labor may help manage the overall budget without compromising quality.















