This stylish modern farmhouse spans approximately 3,076 square feet of well-crafted living space designed for comfort, connection, and everyday ease. With a striking exterior and a thoughtful interior layout, this home brings together open living zones, private retreats, and flexible spaces that adapt to family life. Four bedrooms and multiple baths provide generous accommodations, while architectural detailing adds depth and character to every elevation and room. Designed to balance modern living with timeless farmhouse charm, this plan supports both vibrant gatherings and quiet moments at home.

Exterior & Curb Appeal
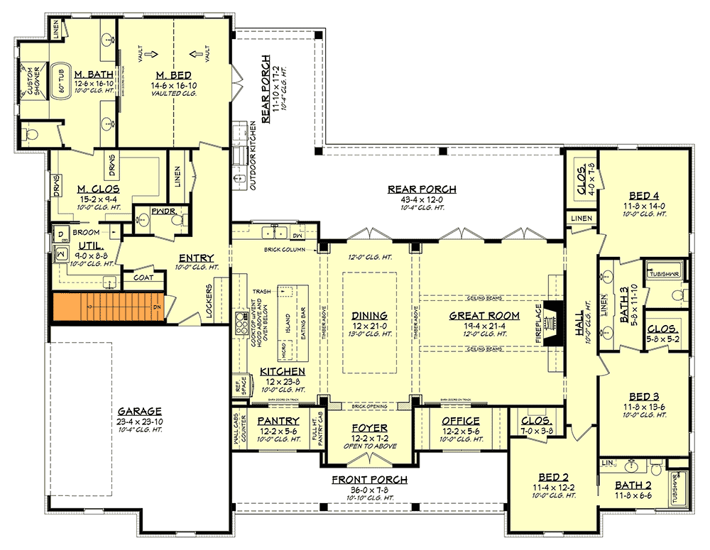
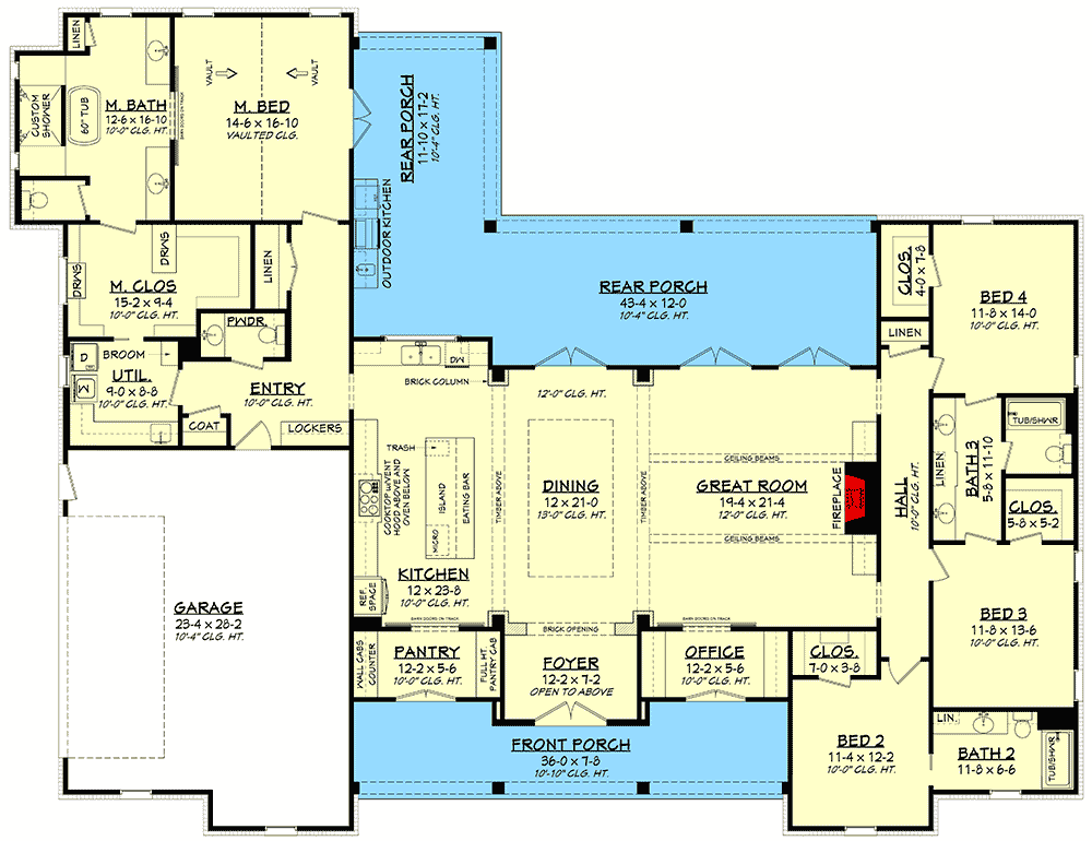
From the street, this modern farmhouse makes a memorable first impression. A symmetrical facade, centered French doors, and a generous covered porch create a sense of welcome and proportion. The elevated shed dormer adds architectural interest while allowing natural light to penetrate the interior. Clean lines and balanced proportions blend traditional farmhouse influences with contemporary sensibilities, producing a curb appeal that feels fresh yet rooted in classic design principles.

Interior Layout
Stepping inside, the open layout immediately welcomes you with an airy flow between living areas. A well-defined entry leads into the core of the home, where living, dining, and kitchen spaces connect without barriers. High ceilings and careful placement of windows amplify natural light and create visual continuity between spaces. Thoughtful planning ensures that daily routines — from casual family dinners to hosting guests — feel effortless and engaging. The layout supports intuitive movement while giving each area a distinct identity.

Kitchen & Living Areas
The kitchen is designed to be the heart of the home, featuring an oversized island with casual seating and abundant workspace. Ample counters and storage help streamline everyday meal preparation and entertaining. Adjoining the kitchen, the living and dining areas maintain visual openness while allowing distinct activities to take place side by side. Large windows and doors overlooking the rear porch bring the outdoors in and enhance the sense of space. These shared zones serve as flexible hubs for gatherings and everyday living alike.

Bedrooms & Bathrooms
The primary suite is a standout feature of this farmhouse plan. With vaulted ceilings that elevate the sense of retreat, the master suite becomes a private sanctuary. Dual French doors open to the rear outdoor space, inviting fresh air and light into the bedroom. The adjoining bath offers generous amenities, including dual vanities, a deep soaking tub, and a spacious shower. A walk-in closet, connected directly to the laundry area, enhances everyday convenience. Three additional bedrooms are positioned thoughtfully along a secondary wing, each offering closet space and access to well-appointed bathrooms. This arrangement supports both privacy and practicality for family members or guests.

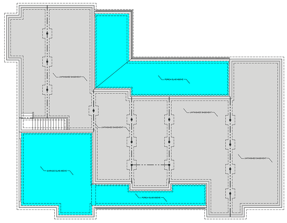
Bonus Spaces
While the main floor hosts all primary living and sleeping areas, this plan includes generous flexible spaces that adapt to your needs. Whether envisioned as a home office, hobby room, or extra lounge, these areas add valuable square footage that enhances livability without disrupting the core flow of the home. Such spaces offer the freedom to customize your home to reflect both function and personality.

Outdoor Living
Outdoor living is integrated into the design with covered porch spaces that extend from shared living zones. These areas provide shaded retreats for morning coffee, alfresco dining, or relaxing evenings outdoors. The rear porch becomes a natural extension of the main living area, encouraging fluid transitions between indoor comfort and fresh air. These outdoor elements expand your living footprint and enhance the connection to surrounding landscapes.

Practical Features
Everyday functionality has been thoughtfully addressed in this plan. The side entry garage offers convenience and plenty of storage space, while a dedicated mudroom helps manage daily transitions from outdoors to indoors. Walk-in closets, intuitive circulation paths, and well-placed storage solutions contribute to an efficient and organized home. Large windows and vaulted spaces not only enhance aesthetics but improve natural ventilation and illumination, creating a comfortable living environment throughout the seasons.

Lifestyle Value
This modern farmhouse plan appeals to families who value open, connected living without sacrificing personal retreat spaces. The architecture achieves a balance of form and function, blending aesthetic refinement with practical design choices. Shared spaces foster connection and interaction, while private wings allow for rest and individual pursuits. The home’s character reflects a thoughtful approach to everyday life — supporting celebration, quiet reflection, and the routines in between.
Construction Cost Estimate (United States)
Estimating the cost to construct this 3,076 square foot modern farmhouse in the United States depends on regional labor rates, material selections, and the level of finishes you desire. Base construction in areas with moderate labor rates and standard materials might land in a mid-range budget for homes of this size. Custom exterior siding, premium fixtures, and high-end finishes can raise costs, as can factors like site conditions, permit fees, and foundation type. Labor typically constitutes a significant portion of the budget, especially for vaulted ceilings and detailed trim work. Choosing local materials and engaging early with builders helps align expectations and manage costs effectively. While exact figures vary widely by location and contractor, thoughtful planning and clear priorities ensure your design goals translate into a well-executed home that fits your budget.















