This modern farmhouse plan offers approximately 2,400 square feet of wonderfully balanced space designed for contemporary family life. With four bedrooms (plus the option for a fifth), three and a half to four and a half baths, and the choice of a two- or three-car side-entry garage, the layout blends everyday comfort with refined architectural details. The exterior’s symmetrical gables and welcoming porch set the tone for a home that feels both composed and inviting, while vaulted ceilings and thoughtful room placement support a harmonious interior environment.


Exterior & Curb Appeal
The facade of this farmhouse expresses quiet strength and balance. Twin gables flank the front porch, creating a symmetrical composition that feels grounded and intentional. Clean rooflines, supportive porch columns, and thoughtfully placed windows give the exterior depth and presence. The side-entry garage preserves visual continuity along the front elevation, allowing the architectural features and outdoor living spaces to shine. Material choices and proportions work in concert to produce a classic yet contemporary aesthetic with broad lifestyle appeal.

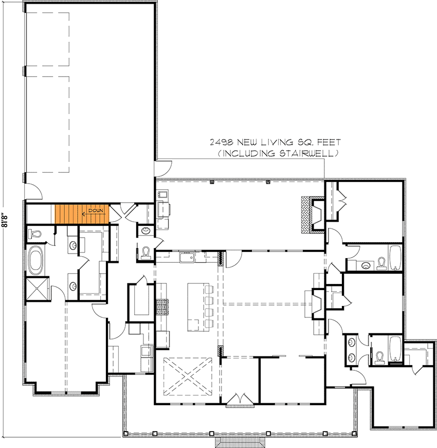
Interior Layout
Stepping inside, the vaulted ceilings and open sightlines create a sense of openness and connection throughout the main living areas. The great room serves as the home’s central gathering place, with ample space for relaxation and shared activity. From there, the layout flows naturally into the kitchen and dining zones, making everyday life and entertaining feel effortless. Sightlines are clear and unobstructed, giving the plan a sense of cohesion and ease while maintaining distinct functional areas.

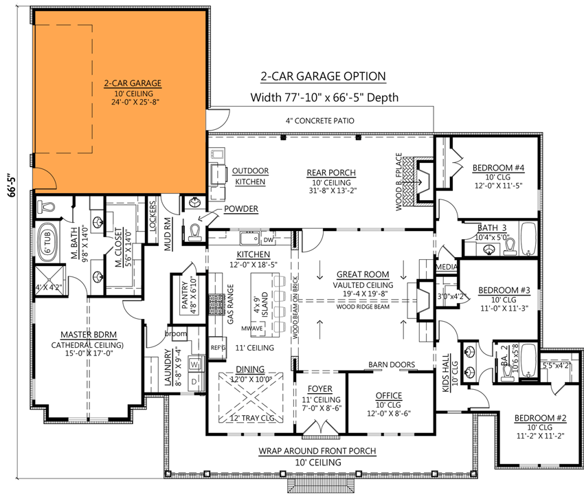
Kitchen & Living Areas
The kitchen is designed for both performance and social interaction. A well-proportioned island offers casual seating and workspace, while generous counters and storage keep everyday tasks organized. Adjacencies to the dining space and great room allow for seamless transition between cooking, eating, and relaxing. Large windows frame views to the outdoors and bring natural light deep into the interior, enhancing the sense of spaciousness and comfort in the home’s central hub.

Bedrooms & Bathrooms
Four well-sized bedrooms provide restful personal spaces. The primary suite offers privacy and calm, separated from other sleeping zones and anchored by a well-appointed ensuite bathroom. Secondary bedrooms are ideally placed to balance accessibility and quiet, each with access to full bathroom facilities. Some configurations allow for a fifth flexible bedroom, ideal for guests or evolving family needs. Thoughtful placement and thoughtful proportions ensure that each bedroom feels welcoming and intimate without sacrificing connection to the home’s shared zones.
Bonus Spaces
Beyond the core living spaces, this plan offers versatile areas that adapt to your lifestyle. Whether used as a home office, hobby room, or cozy retreat, these bonus spaces add depth to the plan’s functionality. Their placement supports privacy and separation from main living zones when needed, allowing a balance between everyday flow and dedicated activity areas.

Outdoor Living
Outdoor living is elegantly integrated with covered porch areas that invite you to linger outdoors. These spaces provide a natural extension of daily life, perfect for morning coffee, casual gatherings, or relaxing in the fresh air. Their thoughtful connection to the interior encourages seamless movement between indoor comfort and outdoor enjoyment, enhancing the home’s overall livability.
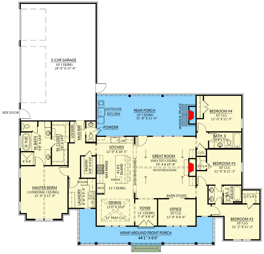
Practical Features
Everyday practicality is a hallmark of this plan. A side-entry garage provides secure parking and storage without dominating the front elevation. Ample closet space throughout keeps living areas uncluttered, while clear circulation patterns ensure smooth transitions between rooms. Vaulted ceilings and strategic window placement contribute to natural illumination and a sense of openness, making daily life feel bright and uplifting. Thoughtful organization of functional zones supports efficient living without compromising spatial quality.

Lifestyle Value
This modern farmhouse design appeals to families and homeowners who value ease of movement, connection, and refined detail. Shared spaces encourage interaction and engagement, while private rooms and adaptable bonus areas offer restful retreat and flexibility. Architectural character feels timeless without unnecessary complexity, balancing style with everyday comfort. Whether hosting gatherings, working from home, or relaxing with loved ones, this plan adapts gracefully to a wide variety of routines and lifestyle needs.
Construction Cost Estimate (United States)
Estimating the construction cost for this approximately 2,400 square foot modern farmhouse in the United States depends on regional labor rates, material selections, and finish levels. In areas with moderate labor costs and standard materials, base construction for a home of this size typically falls within a mid-range budget. Choosing more premium finishes such as custom cabinetry, stone accents, and high-efficiency windows will increase the overall investment. Labor costs can vary widely, with metropolitan and coastal regions tending toward higher rates than rural areas. Features such as vaulted ceilings, expansive windows, and thoughtful exterior detailing also influence build costs. Engagement with a local builder early in the planning process helps align design priorities with practical budgeting, ensuring the home delivers both aesthetic satisfaction and functional value.
















