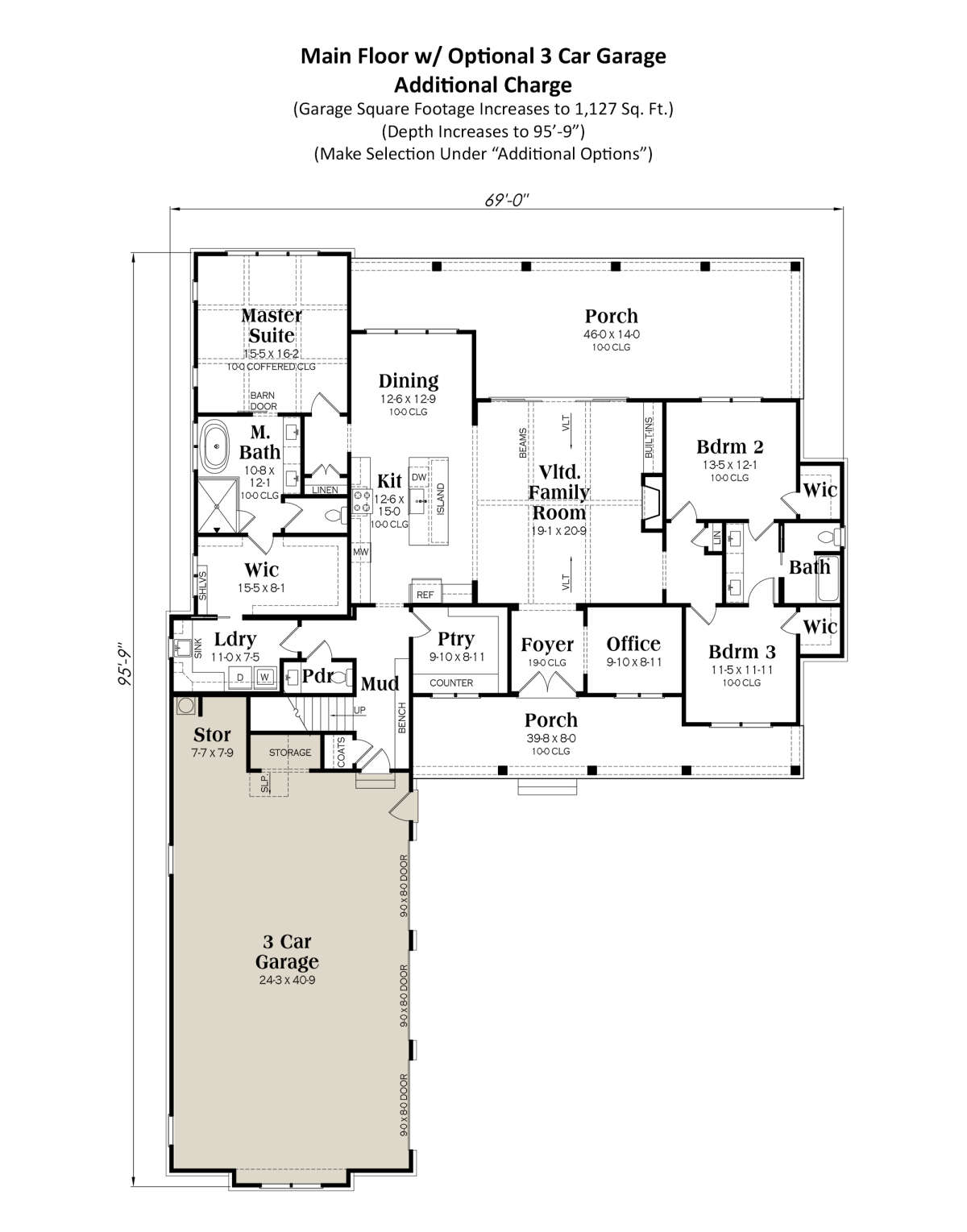
This thoughtfully designed modern farmhouse spans approximately 2,469 square feet of comfortable living space, blending classic style with contemporary function. Its open layout and flexible bedroom configuration make it ideal for families who value everyday livability and relaxed entertaining. Whether you use three bedrooms with ample space or convert one area to a home office or bonus room, the design adapts to your lifestyle while maintaining a warm, inviting feel throughout.

Exterior & Curb Appeal
The exterior captures modern farmhouse charm with clean rooflines, balanced gables, and a welcoming covered front porch. Thoughtfully placed windows and simple yet striking trim details give the facade both rhythm and character. The combination of vertical and horizontal siding adds subtle texture, while the porch invites casual relaxation and creates a hospitable transition from outside to interior living. The overall look feels composed and timeless, suited to rural, suburban, or countryside settings alike.

Interior Layout
Stepping inside, a clear sense of openness and flow greets you. A vaulted great room serves as the heart of the home, connecting visual and functional zones with ease. Sightlines extend from the living area through to the kitchen and dining space, encouraging connection among family and friends while maintaining distinct areas for everyday routines. Thoughtful circulation paths make moving from one zone to another intuitive, defining a layout that feels both open and purposeful.

Kitchen & Living Areas
The kitchen is designed for both efficiency and sociability. A generous island provides ample workspace and informal seating, making it easy to engage with guests or family while preparing meals. Surrounding counters and cabinets support everyday use and keep essentials within reach. The adjacent dining area naturally extends the kitchen’s function, creating a flowing space for daily meals or larger gatherings. Large windows in the great room and dining zones bring abundant daylight into the interior, enriching the sense of connection to the outdoors.

Bedrooms & Bathrooms
The primary suite provides a private retreat with comfortable proportions and a well-appointed ensuite bathroom. The design includes space for dual vanities and a generous shower, creating a calm environment for morning routines and restful evenings. Two additional bedrooms are arranged to provide both privacy and proximity to shared spaces. A shared full bathroom serves these bedrooms, while a convenient half bath near the main living areas supports guests and daily use. The flexible fourth bedroom option allows homeowners to tailor the plan for their needs, whether for family, guests, or a dedicated work area.

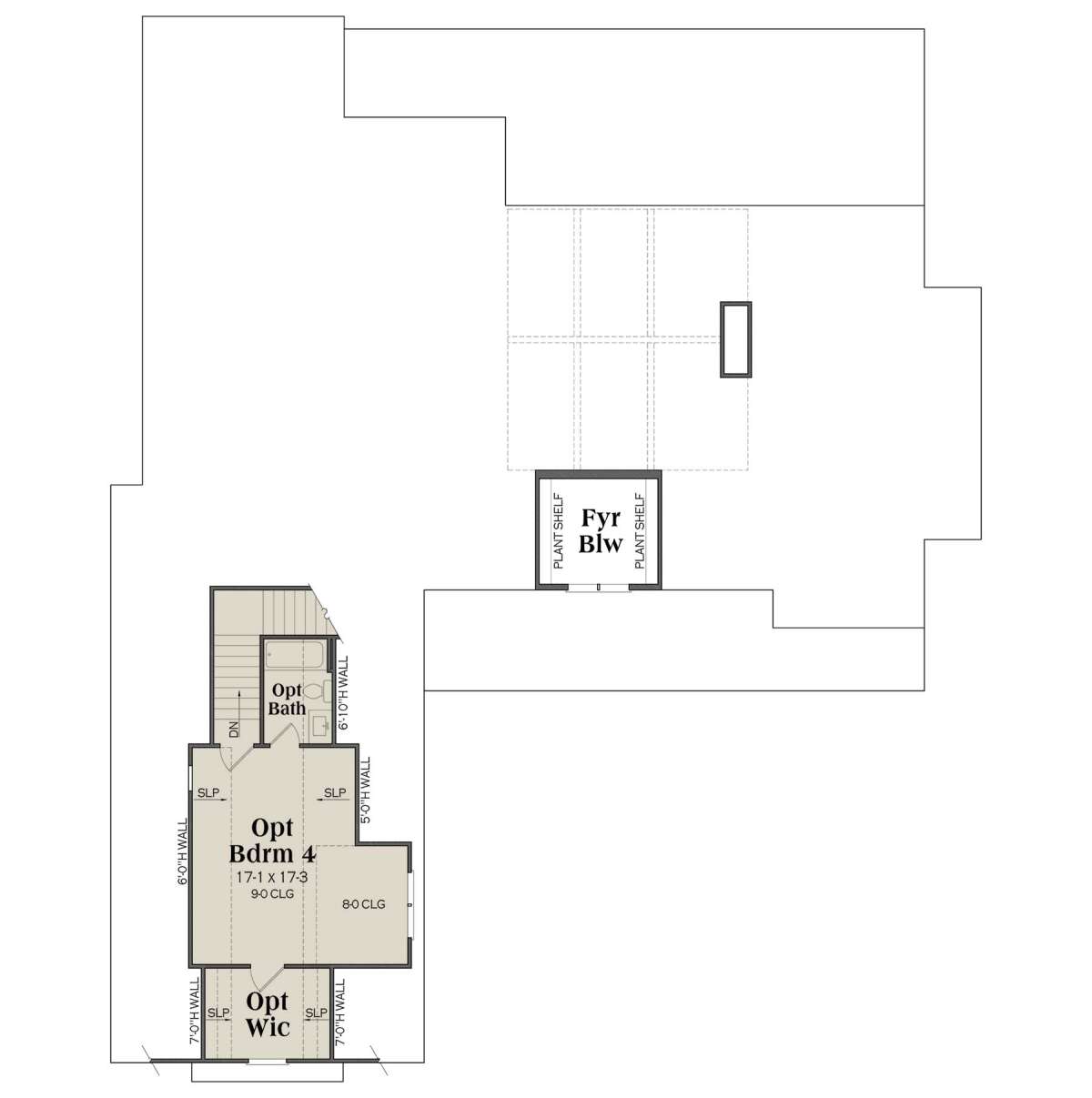
Bonus & Flex Spaces
This farmhouse plan includes flexible space that can be adapted to suit your lifestyle. Whether finished as a bonus room, home office, play area, or media room, this space adds meaningful square footage without compromising the logical flow of the home. Its location near the main living zones makes it easily accessible while creating a distinct area for focused activities or additional accommodations as needed.
Outdoor Living
Outdoor living is seamlessly integrated into this home’s layout. A rear porch provides sheltered space for dining, lounging, or simply enjoying fresh air. This area becomes a natural extension of the interior living zones, encouraging connection between indoor comfort and the landscape beyond. Whether you are enjoying a morning coffee or hosting an evening barbecue, the porch enhances everyday living and invites connection with family and friends.

Practical Features
Practical design elements support daily living throughout the plan. A side entry garage provides secure parking and storage, while a mudroom transition zone near the garage entry helps keep everyday items organized. Well-placed closets and storage areas throughout the home help maintain a clean and uncluttered environment. Efficient circulation and thoughtful room placement make everyday routines feel natural and unencumbered, while well-proportioned windows enhance natural light and energy performance.
Lifestyle Value
This modern farmhouse plan appeals to homeowners who appreciate open shared spaces, adaptable layouts, and a connection between inside and outside living. The arrangement of public and private areas supports both lively gatherings and peaceful retreats, making the home suitable for a range of lifestyles. Architectural details such as vaulted ceilings, the welcoming porch, and thoughtful transitions between zones give the design a sense of charm and intentional planning. Whether entertaining guests, working from home, or enjoying family time, this plan makes everyday life feel connected, comfortable, and inspiring.

Construction Cost Estimate (United States)
Estimating construction costs for this approximately 2,469 square foot modern farmhouse in the United States depends on regional labor rates, material selections, and the level of finishes you choose. In many regions with moderate labor costs and standard materials, base construction for a home of this size typically falls into a mid-range budget relative to national averages. Choosing upgraded finishes such as custom cabinetry, premium flooring, stone or accent features, and high-performance systems will increase the overall investment. Labor costs in metropolitan or high-demand regions tend to be higher than in rural areas. Architectural features such as vaulted ceilings, expansive porch areas, and flexible bonus spaces may also contribute to framing and finishing costs. Site conditions, foundation type, and desired landscaping further influence total project expenses. Collaborating early with a local builder helps align your design priorities with realistic budgeting and ensures a successful build that meets both functional needs and aesthetic expectations.
















