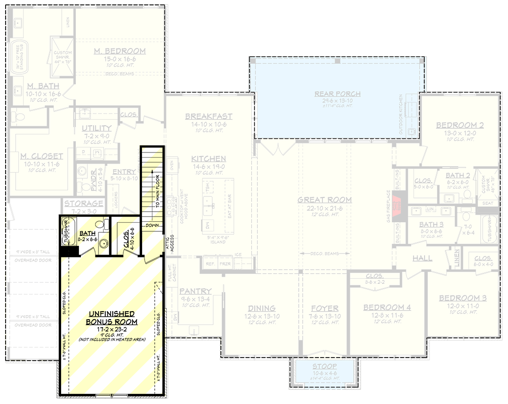
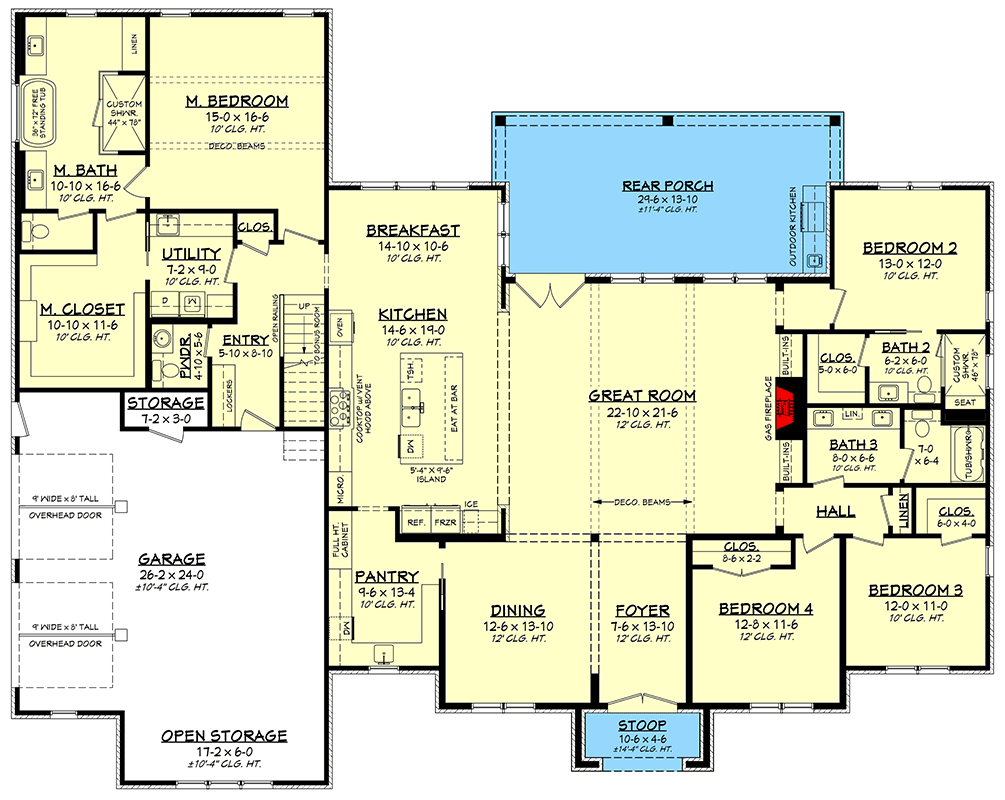
This generously appointed transitional farmhouse design spans approximately 3,163 square feet of thoughtfully arranged living space, perfect for modern families who appreciate style, comfort, and functional flow. With four spacious bedrooms, three full baths, one half bath, and the option to finish a versatile bonus room above, this home offers both private retreats and open living zones. A sprawling great room anchors the interior, while outdoor living is enhanced with a covered porch and a dedicated outdoor kitchen, creating memorable spaces for everyday life and entertaining.

Exterior & Curb Appeal
The exterior blends modern farmhouse simplicity with transitional detailing for a look that feels both refined and welcoming. Balanced gables and a clean roofline define the architecture, while a covered front stoop gives the facade presence without feeling imposing. The rear porch extends the home’s living footprint, highlighted by an outdoor kitchen that encourages alfresco dining and relaxed gatherings. Well-proportioned windows enhance curb appeal while allowing ample natural light to filter into the interior.

Interior Layout
Inside, a grand foyer leads directly to the open-concept great room, where a gas fireplace becomes a focal point for shared living. The layout thoughtfully separates the luxurious master suite from the secondary bedrooms, offering privacy without sacrificing connection to the home’s central zones. The kitchen, breakfast nook, and formal dining room are arranged to promote effortless entertaining and comfortable daily life, with logical circulation paths that make movement intuitive and coherent throughout.

Kitchen & Living Areas
The kitchen is designed as a hub of activity, featuring a large island ideal for casual meals or gathering while preparing food. Ample counter space and cabinetry meet the needs of everyday use and entertaining alike, and a butler’s walk-in pantry adds useful storage and preparation space. The adjacent dining room provides a more formal setting for meals, while the breakfast nook offers everyday convenience. Sightlines from the kitchen extend into the great room, fostering connection and communication across key living zones.

Bedrooms & Bathrooms
The first-floor master suite is a serene retreat, located away from the main living areas for enhanced privacy. A spa-like bath and spacious walk-in closet provide comfort and functional ease, with the added convenience of direct access to the main-level laundry room. On the opposite side of the plan, three additional bedrooms share access to full baths, offering comfortable space for family members or guests. Each room feels distinct and thoughtfully placed to support both rest and accessibility.

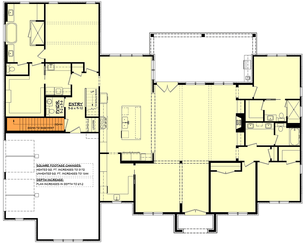
Bonus Room & Flex Spaces
An optionally finished bonus room above the main level adds approximately 547 square feet of adaptable space. With its own full bathroom and closet, this area can serve as a guest suite, media room, home office, or creative hub. Its flexible nature enhances the home’s functional footprint without interrupting the core living zones. A dedicated mudroom with storage cubbies and a utility room near the garage entry further support daily organization.

Outdoor Living
Outdoor living is a standout feature of this plan. A generous covered rear porch offers protected space to relax or entertain, complete with an outdoor kitchen that invites al fresco dining and social gatherings. Whether hosting summer cookouts or enjoying peaceful mornings outside, these exterior spaces expand the livable area and strengthen the connection between interior comfort and the surrounding landscape.
Practical Features
Practical design choices are evident throughout the home. The covered front stoop and rear porch create functional outdoor transitions, while a side-entry two-car garage with a mudroom entry keeps daily activity areas organized. Large windows flood interior spaces with natural light, enhancing both energy efficiency and the feeling of openness. Thoughtful circulation paths make navigating the home effortless, and built-in storage solutions help maintain order in living areas.

Lifestyle Value
This transitional farmhouse plan appeals to families and homeowners who value both interactive shared spaces and comfortable personal retreats. The layout supports a variety of routines — from lively entertaining and casual living to focused work and restful evenings. Architectural details such as balanced proportions, intentional room placement, and connection between indoor and outdoor living build a home that feels both intentional and inviting for daily life and special occasions alike.

Construction Cost Estimate (United States)
Estimating the construction cost for this approximately 3,163 square foot transitional farmhouse in the United States depends on regional labor rates, material quality, and finish levels. In many areas with moderate labor costs and standard material selections, base construction typically falls into a mid-range budget for homes of this size and architectural complexity. Upgrading to premium finishes such as custom cabinetry, luxury surfaces, high-performance windows, and specialty exterior materials will raise the overall investment. Labor costs tend to be higher in urban and high-demand regions compared to rural areas. Architectural features such as the covered rear porch with outdoor kitchen, vaulted ceilings, and versatile bonus space also contribute to framing and finishing costs. Site conditions, foundation type, and outdoor amenities influence total project expenses. Collaborating early with a local builder helps align design priorities with realistic budgeting, ensuring the home meets both functional goals and aesthetic expectations.













