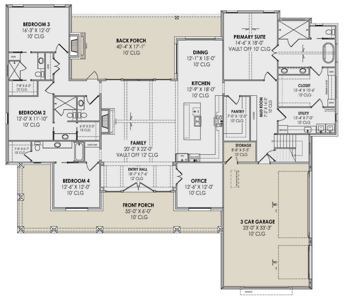
This expansive modern farmhouse plan spreads across approximately 3,392 square feet of thoughtfully crafted living space. With four bedrooms, four full bathrooms, one half bath, and a versatile layout designed for everyday comfort and entertaining, this home feels both generous and welcoming. Architectural features like clean rooflines, ample windows, and inviting covered porches balance modern design with classic farmhouse warmth. Open gathering spaces and private retreats create a home that supports relaxed living, purposeful flow, and a deep connection between interior and outdoor areas.

Exterior & Curb Appeal
The exterior presents a composed and elegant profile featuring a welcoming covered front porch and balanced gables that provide visual rhythm. A mix of horizontal and vertical siding textures reinforces the modern farmhouse aesthetic while offering depth and interest. Thoughtfully placed windows bring in abundant natural light and help define the structure’s proportions. The covered rear porch extends the living space outward, offering a seamless transition to outdoor enjoyment and enhancing the home’s curb appeal.

Interior Layout
The interior layout emphasizes open flow and generous spaces that enhance daily living. The great room sits at the heart of the home, with tall ceilings and direct access to the rear porch, creating a bright and inviting gathering zone. This central space connects smoothly to the kitchen and dining area, fostering shared moments and making entertaining easy. Thoughtful circulation routes ensure that movement between primary areas feels intuitive while maintaining clarity between shared and private zones.

Kitchen & Living Areas
The kitchen is designed for both everyday functionality and social interaction. A large central island offers ample workspace and casual seating, making it a natural hub of activity. Surrounding counters and cabinetry provide generous storage and organization, while a nearby butler’s pantry enhances efficiency. The kitchen opens to the dining area and great room, creating a cohesive living space that invites connection. Large windows throughout these zones draw in daylight and frame views of the surrounding landscape, making these shared areas feel both bright and expansive.
Bedrooms & Bathrooms
The master suite is positioned to provide a private retreat, complete with a spacious bedroom area and a luxurious ensuite bathroom featuring dual vanities, a separate shower, and a walk-in closet. This suite’s thoughtful placement ensures both tranquility and accessibility. On the opposite wing of the home, three additional bedrooms each enjoy access to full baths, offering comfortable accommodations for family members or guests. Each bedroom is well-proportioned and arranged to balance privacy and connection to the home’s shared spaces.

Bonus & Flex Spaces
This farmhouse plan includes flexible spaces that can adapt to your lifestyle. A dedicated home office near the front entry provides a quiet workspace that’s ideal for remote work or study, while additional bonus areas can serve as media rooms, hobby spaces, or secondary living areas. These zones are thoughtfully positioned to provide separation from primary gathering areas when needed, while still feeling connected to the overall floor plan. This adaptability enhances the home’s long-term livability and supports evolving needs over time.

Outdoor Living
Outdoor living is thoughtfully integrated into the design with a covered rear porch that expands the home’s living footprint. This area offers shaded space for dining, lounging, or simply enjoying fresh air and views of the yard. Its location off the great room encourages seamless indoor-outdoor flow, making it easy to extend daily life into the outdoors. Whether hosting seasonal barbecues or savoring quiet morning coffee, this porch becomes an essential part of everyday living.
Practical Features
Practical design elements are woven throughout the plan to support comfortable, organized living. A mudroom near the garage entry helps manage daily transitions and keep clutter contained. Ample closet space and strategically placed storage throughout the home ensure that living areas remain tidy and functional. Large windows enhance natural light and contribute to energy efficiency, while clear circulation paths make navigating between rooms intuitive. These practical features enhance everyday use without detracting from the home’s aesthetic appeal.

Lifestyle Value
This modern farmhouse plan appeals to families who value connected living, versatile spaces, and thoughtful design. Open shared areas foster engagement and interaction, while private bedrooms and flexible work zones offer peaceful retreats. Architectural details such as vaulted ceilings, balanced proportions, and intentional indoor-outdoor transitions create a home that feels both refined and livable. Whether hosting gatherings, working from home, or enjoying quiet evenings with loved ones, this design supports a wide range of lifestyles and daily rhythms with comfort and style.
Construction Cost Estimate (United States)
Estimating the construction cost for this approximately 3,392 square foot modern farmhouse in the United States depends on regional labor rates, chosen materials, and the level of finishes. In many areas with moderate labor costs and standard materials, base construction for a home of this size typically falls into a mid-range budget. Selecting premium finishes such as custom cabinetry, stone or specialty siding accents, high-end flooring, and energy-efficient systems will increase the overall investment. Labor costs in metropolitan and high-demand regions tend to be higher than in rural areas. Architectural features such as vaulted ceilings, covered outdoor living spaces, and flexible bonus areas contribute to framing and finishing costs. Site conditions, foundation type, and desired landscaping also influence the total project cost. Early collaboration with a local builder helps align design priorities with realistic budgeting and ensures that the home is built to meet both functional needs and aesthetic goals.
















