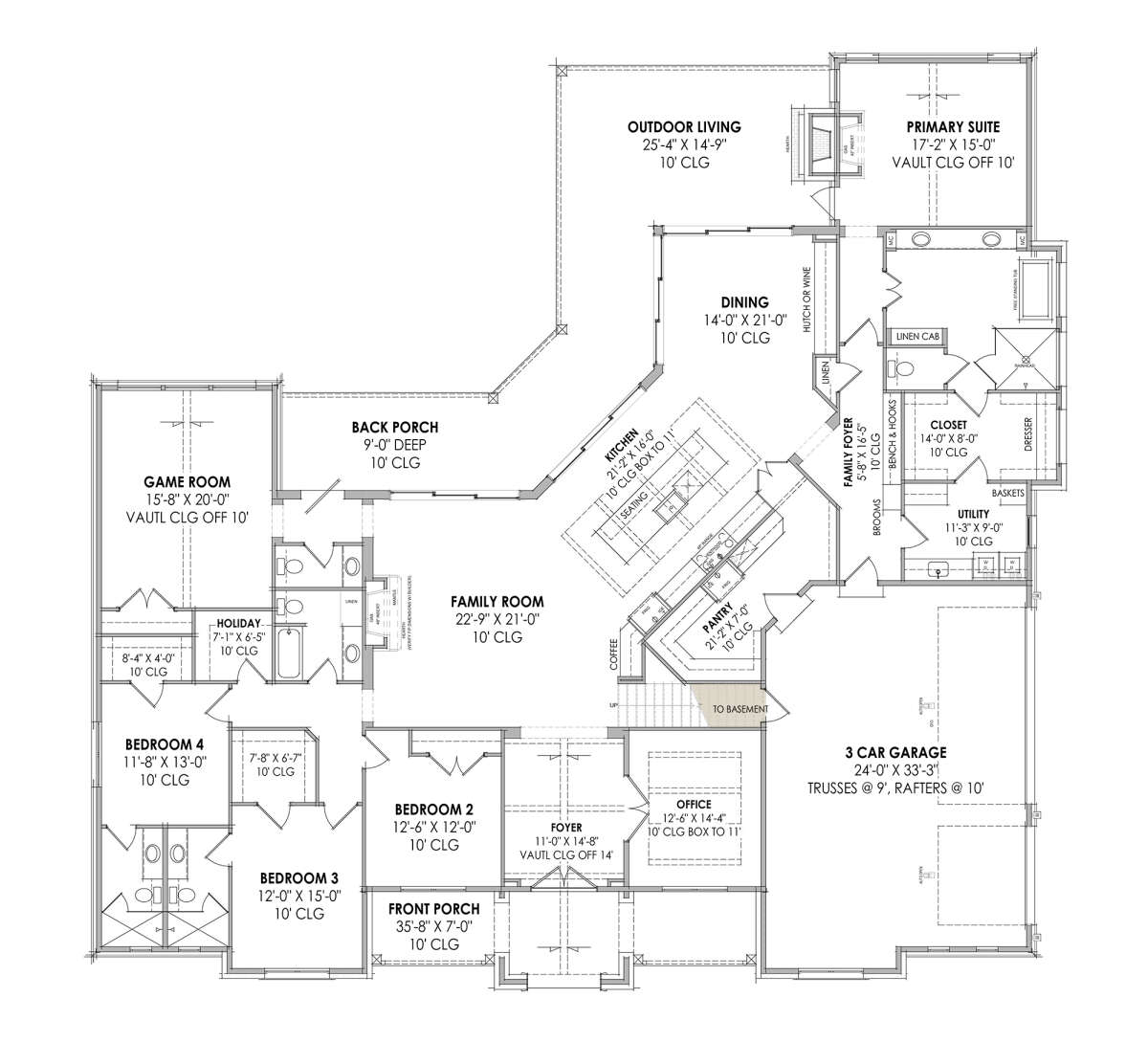
This impressive Craftsman home plan offers approximately 4,032 square feet of well-considered living space designed to support everyday family life, flexible gathering zones, and gracious entertaining. With four bedrooms, four and a half baths, and versatile bonus areas, the layout balances spacious shared rooms with intimate retreats. Classic Craftsman details like tapered columns, thoughtful trim, and layered rooflines give the exterior timeless appeal, while an intuitive interior arrangement makes daily living feel natural and comfortable.

Exterior & Curb Appeal
The exterior captures hallmark Craftsman character with balanced proportions, textured siding, and elegant stone accents that lend visual depth and warmth. A wide covered front porch beckons you to slow down and enjoy moments outdoors, while clean rooflines and symmetrical gables create an architectural rhythm that feels both familiar and refined. Carefully placed windows contribute to the facade’s harmony and allow natural light to enhance the interior from multiple angles. The overall effect is welcoming, grounded, and expressive of thoughtful design.

Interior Layout
Stepping inside, you’ll notice a smart balance between openness and distinct functional zones. The great room sits at the heart of the home, with lofty ceilings and generous proportions that immediately communicate a sense of space. From here, sightlines extend smoothly into the dining area and kitchen, reinforcing visual connection without sacrificing definition. Thoughtful placement of bedrooms and utility areas ensures that private retreats are comfortably separated from active living zones, supporting both connection and privacy where needed.

Kitchen & Living Areas
The kitchen serves as a dynamic hub for both everyday use and social activity. Anchored by a generous island with seating, it offers abundant workspace for meal preparation and an inviting spot for casual conversation. Surrounding countertops and cabinetry provide ample storage, and a nearby walk-in pantry enhances organization. Adjacency to the dining area and great room encourages effortless interaction during family meals and gatherings. Expansive windows in these shared spaces draw sunlight deep into the interior, creating bright and hospitable living areas that feel open yet grounded.

Bedrooms & Bathrooms
The primary suite is thoughtfully positioned for tranquility and comfort, featuring generous square footage and a well-appointed ensuite bathroom. Dual vanities, a dedicated shower, and an expansive closet create daily ease. Three additional bedrooms are each paired with full or convenient bathroom access, ensuring restful accommodations for family members or guests. These private zones are sized to feel comfortable and well-separated from hub areas, maintaining peace and comfort for every occupant.

Bonus & Flex Spaces
This plan includes additional flexible areas that expand the home’s utility. A bonus room can serve as a media room, hobby space, or casual retreat for family and guests alike. Near the entry, a versatile room can function as a home office, study, or formal sitting area — offering a quiet space that’s distinct from busier zones. These flexible rooms adapt to evolving needs without interrupting the home’s flow, adding lasting functional value.

Outdoor Living
Outdoor living features prominently with a covered rear porch that extends the home’s usable footprint. This space is perfect for alfresco dining, laid-back gatherings, or morning coffee while soaking in views of the yard. Its proximity to the great room and kitchen encourages seamless indoor-outdoor movement, making it easy to enjoy fresh air and sunshine. Thoughtful design of outdoor areas enhances daily life and reinforces connection with the landscape.
Practical Features
Practical design choices are woven throughout the home. A mudroom located near the garage entry helps keep everyday routines organized and reduces clutter. Abundant closets and storage spaces ensure that living areas remain tidy and welcoming. Intuitive circulation paths between rooms make navigating the house comfortable and efficient, while strategically placed windows contribute to natural ventilation and energy performance. These thoughtful details support everyday living without detracting from the overall aesthetic harmony of the plan.

Lifestyle Value
This Craftsman home plan appeals to homeowners who value both connection and personal retreat. Shared living spaces encourage interaction and engagement, while private bedrooms and flexible bonus areas provide rest and adaptability. Architectural elements such as tapered columns, layered rooflines, and generous windows lend character and depth to every area. Whether hosting lively gatherings or enjoying quiet evenings with family, this design supports a range of lifestyle needs with style and comfort.
Construction Cost Estimate (United States)
Estimating construction costs for this approximately 4,032 square foot Craftsman home in the United States depends on regional labor rates, selected materials, and the level of finishes. In areas with moderate labor costs and standard material choices, base construction for a home of this scale and architectural detail typically falls into a mid-to-upper range budget. Upgraded features such as custom cabinetry, premium flooring, stone or specialty exterior materials, and high-performance windows will increase the overall investment. Labor costs in metropolitan or high-demand regions tend to be higher than in rural areas. Architectural features such as vaulted ceilings, covered porches, and flexible bonus spaces contribute to framing and finishing expenses. Site conditions, foundation requirements, and landscaping preferences also influence total project costs. Early collaboration with a local builder helps align design priorities with realistic budgeting and ensures a successful build that meets both functional needs and aesthetic expectations.















