This expansive modern ranch home spans approximately 4,807 square feet of thoughtfully planned living space, designed to support refined everyday life and gracious entertaining. With two well-appointed master suites, a dedicated home office, generous gathering areas, and flexible spaces that adapt to your lifestyle, this plan delivers comfort and functionality without compromise. Its ranch layout ensures single-level ease of movement, while architectural details create visual interest and a sense of purposeful design throughout.

Exterior & Curb Appeal
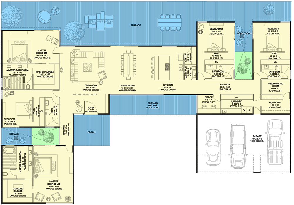
The exterior of this modern ranch showcases balanced proportions, clean rooflines, and an inviting covered entry that sets a composed and welcoming tone. A combination of siding textures and trim enriches the facade with depth and character, while thoughtfully placed windows provide rhythm and allow abundant natural light to penetrate interior spaces. A three-car garage integrates seamlessly into the design, offering both convenience and a cohesive aesthetic. Overall, the home conveys a refined yet relaxed presence that fits beautifully into pastoral and suburban settings alike.


Interior Layout
Stepping through the front entry, you’re welcomed by an open and inviting layout that emphasizes connection between shared living spaces while preserving distinct zones for privacy and purpose. The great room, dining area, and kitchen share expansive sightlines that encourage effortless interaction and natural flow. Wide hallways and clearly defined transitions make navigation intuitive, setting the stage for smooth daily routines and comfortable entertaining. Placement of private suites away from the main living hub enhances both tranquility and practicality.

Kitchen & Living Areas
The kitchen is designed for versatility and social engagement, anchored by a large island that accommodates casual seating and meal prep. Endless counter space and abundant cabinetry support culinary routines, while a walk-in pantry offers generous storage. The adjacent dining area connects fluidly to the great room, creating a communal zone where conversation and activity flow freely. Large windows throughout these spaces draw in daylight and frame exterior views, enhancing a sense of openness and warmth that elevates everyday living.
Bedrooms & Bathrooms
This plan’s standout feature is the inclusion of two master suites, each offering a private retreat with generous proportions, ample closet space, and access to well-appointed bathrooms. One suite enjoys direct access to the outdoor living area, making it a serene haven at the end of the day. The second master suite is positioned to offer equal comfort and privacy, ideal for guests or multigenerational living. Additional bedrooms are well sized and thoughtfully located to balance accessibility and quiet, each served by easy access to full bathrooms. This thoughtful bedroom placement supports both family dynamics and hosting needs with grace.

Home Office & Bonus Spaces
A dedicated home office provides a focused workspace that feels separate from high-traffic areas, perfect for remote work, study, or creative endeavors. Its location ensures privacy without isolation, maintaining proximity to core living spaces. Flexible areas throughout the home can serve as bonus rooms, hobby zones, formal studies, or media spaces, enhancing adaptability as lifestyle needs evolve. These areas broaden the functional footprint of the plan while preserving its overall harmony and flow.
Outdoor Living
Outdoor living is thoughtfully woven into the design with covered porch spaces that extend living areas into the landscape. These zones offer ideal settings for alfresco dining, lounge seating, and evening gatherings, fostering a seamless transition between indoor comfort and fresh air. Whether enjoying morning coffee, hosting friends, or simply relaxing, the outdoor areas enhance daily life and expand the home’s usable footprint.

Practical Features
Practicality is a strong theme throughout the plan. A mudroom with direct garage access supports organized daily routines, while generous closets and storage areas help maintain clutter-free living spaces. Strategic window placement enhances natural light and ventilation, contributing to comfort and energy efficiency. Intuitive circulation between rooms makes daily movement effortless, and the thoughtful arrangement of functional zones supports easy adaptation to a range of needs and daily rhythms.
Lifestyle Value
This modern ranch plan resonates with homeowners who value comfort, connection, and thoughtful design. Shared spaces encourage interaction and engagement, while private retreats provide solace and rest. The inclusion of two master suites adds flexibility for family living, guest stays, or long-term adaptability. Architectural details such as clean lines, balanced proportions, and integrated indoor-outdoor connections create a home that feels both contemporary and timeless. Whether hosting gatherings or enjoying peaceful moments, this design supports a rich and fulfilling lifestyle.
Construction Cost Estimate (United States)
Estimating the construction cost for this approximately 4,807 square foot modern ranch in the United States involves several variables, including regional labor rates, material selections, and desired levels of finish. In regions with moderate labor costs and standard materials, base construction for a home of this size and complexity generally falls into a higher mid-range budget. Choosing premium finishes such as custom cabinetry, high-end fixtures, stone accents, and energy-efficient systems will increase the overall investment. Labor costs in metropolitan or high-demand areas tend to be higher than in rural markets. Architectural features such as expansive covered porches, multiple master suites, and integrated outdoor living spaces contribute to framing and finishing costs. Site conditions, foundation requirements, and desired landscaping further influence total project expenses. Early collaboration with a local builder helps align design priorities with realistic budgeting and ensures the home is built to meet both functional expectations and aesthetic goals.













