This expansive modern transitional home offers approximately 4,944 square feet of well-designed living space, elegantly balancing open gathering zones, private retreats, and flexible areas for work, recreation, and comfort. With four to five bedrooms, five baths, multiple living areas, and generous spaces for indoor-outdoor enjoyment, this plan blends contemporary design, transitional architectural detail, and thoughtful functionality. Vaulted ceilings, abundant natural light, and thoughtful circulation create a home that feels both welcoming and refined.

Exterior & Curb Appeal
The exterior greets you with a composed yet striking presence. Clean rooflines and balanced gables form a visually compelling silhouette, while a broad covered entry porch offers a hospitable transition from outside to in. A mix of modern siding textures, carefully placed trim, and expansive windows gives this home a transitional character that bridges contemporary and classic design. The result is a facade with depth and visual rhythm that suits both scenic countryside settings and sophisticated neighborhoods.

Interior Layout
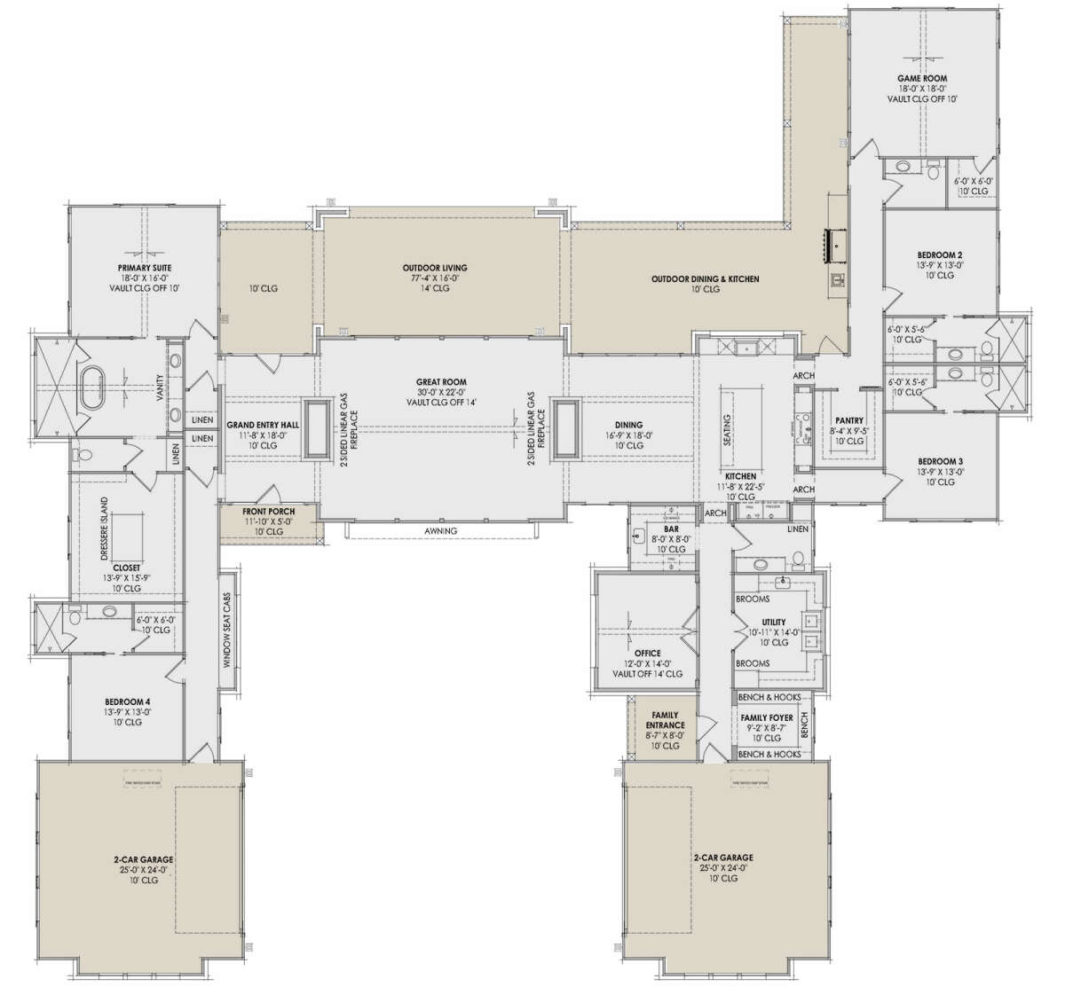
Upon entering, you are welcomed into a gracious foyer that leads into a series of interconnected living spaces. The great room serves as the heart of the home, with tall ceilings and expansive views that encourage both everyday relaxation and lively gatherings. Clear sightlines connect the great room to adjoining dining and kitchen zones, while thoughtful circulation ensures that each area flows naturally into the next. Private wings and separate zones enhance privacy and make routine transitions feel seamless.

Kitchen & Living Areas
The kitchen is designed to support both efficiency and sociability, featuring generous counter space, an oversized island with seating, and room for a breakfast nook. Its open design allows the cook to remain part of conversations in the adjoining living and dining spaces. Large windows frame views to the outdoors and deliver abundant daylight. The open kitchen and living areas create an environment that feels open and interconnected — ideal for entertaining and everyday family life alike.

Bedrooms & Bathrooms
The master suite offers a private retreat with generous room proportions, a luxurious bath, and ample closet space. Positioned away from bustling living zones, it provides a calm and restful environment. Additional bedrooms are thoughtfully arranged with easy access to well-appointed bathrooms that feature comfortable layouts and quality finishes. One of the secondary rooms may serve as a guest suite or flexible bedroom, making the home adaptable to your family’s lifestyle and changing needs over time.

Bonus & Flex Spaces
This plan also includes versatile rooms that can be tailored to your needs — whether a home office, library, playroom, or media zone. Flexible spaces such as these enhance everyday living and offer options for quiet retreat or dedicated activity areas. Their placement supports both integration with main living zones and potential separation for focused use, giving the home an adaptable footprint that evolves with your lifestyle.

Outdoor Living
Outdoor living components play an important role in this plan. Covered porch areas extend living space beyond interior walls, providing inviting spots for morning coffee or relaxed evening gatherings. These outdoor zones promote daily interaction with nature and expand opportunities for entertaining. Thoughtful access from key indoor gathering spaces encourages a seamless transition between inside and outside, enhancing livability year-round.

Practical Features
Practical design runs throughout the home. A spacious mudroom adjacent to the garage helps keep everyday routines organized, while abundant closets support easy storage. Open circulation paths and generous natural light enhance comfort and navigation throughout the plan. Thoughtful placement of windows, thoughtful zoning of active and quiet spaces, and intelligent traffic flow make this house feel both functional and elegant. These features combine to create a home that supports daily life with ease and clarity.

Lifestyle Value
This modern transitional design speaks to homeowners who value connection, comfort, and adaptability. Shared spaces encourage togetherness and engagement, while private bedroom wings and flexible bonus rooms allow for retreat and quiet focus. The plan’s architectural details — from high ceilings to balanced proportions — create a refined, inviting environment that accommodates both grand entertaining and relaxed everyday living. Whether hosting celebrations, working from home, or enjoying quiet evenings with family, this home supports a versatile, engaging lifestyle.

Construction Cost Estimate (United States)
Estimating construction costs for this approximately 4,944 square foot modern transitional home in the United States depends on several key factors, including regional labor rates, materials, and the level of finishes you choose. In many areas with moderate labor costs and standard materials, base construction for a home of this size and complexity typically falls into a higher-mid-range budget. Selecting premium finishes such as custom cabinetry, high-end flooring, and upgraded mechanical systems will elevate the overall investment. Labor costs tend to be higher in urban or coastal regions than in rural markets. Architectural features such as vaulted ceilings, extensive windows, and covered porch spaces contribute to both the home’s aesthetic appeal and construction expense. Site conditions, foundation type, and landscaping also influence total project cost. Early collaboration with a local builder helps align design priorities with realistic budgeting, ensuring your home plan becomes a successful, beautifully executed build that meets both your functional and aesthetic goals.













