
This thoughtfully crafted modern farmhouse design offers approximately 2,792 square feet of comfortable living space arranged across a spacious single-story layout. The home includes three bedrooms and two and a half bathrooms, creating an ideal balance between privacy and open living. With its welcoming architectural style, practical interior layout, and carefully designed gathering spaces, the home is perfectly suited for families who appreciate a blend of traditional farmhouse charm and modern functionality. The design emphasizes natural flow, generous room sizes, and inviting outdoor spaces that extend the living experience beyond the interior. :contentReference[oaicite:0]{index=0}


Exterior & Curb Appeal
The exterior embraces the classic character of modern farmhouse architecture. Strong rooflines, a balanced front elevation, and large windows create an inviting presence that feels both timeless and contemporary. The farmhouse style often incorporates simple yet elegant materials such as board and batten siding, brick accents, and natural wood details, which contribute to the home’s warm and welcoming appearance. :contentReference[oaicite:1]{index=1}


Wide porch areas enhance the overall curb appeal while also providing outdoor spaces where homeowners can relax and enjoy the surrounding landscape. The proportions of the design allow the house to sit comfortably on a suburban or rural lot while maintaining strong architectural balance.

Interior Layout
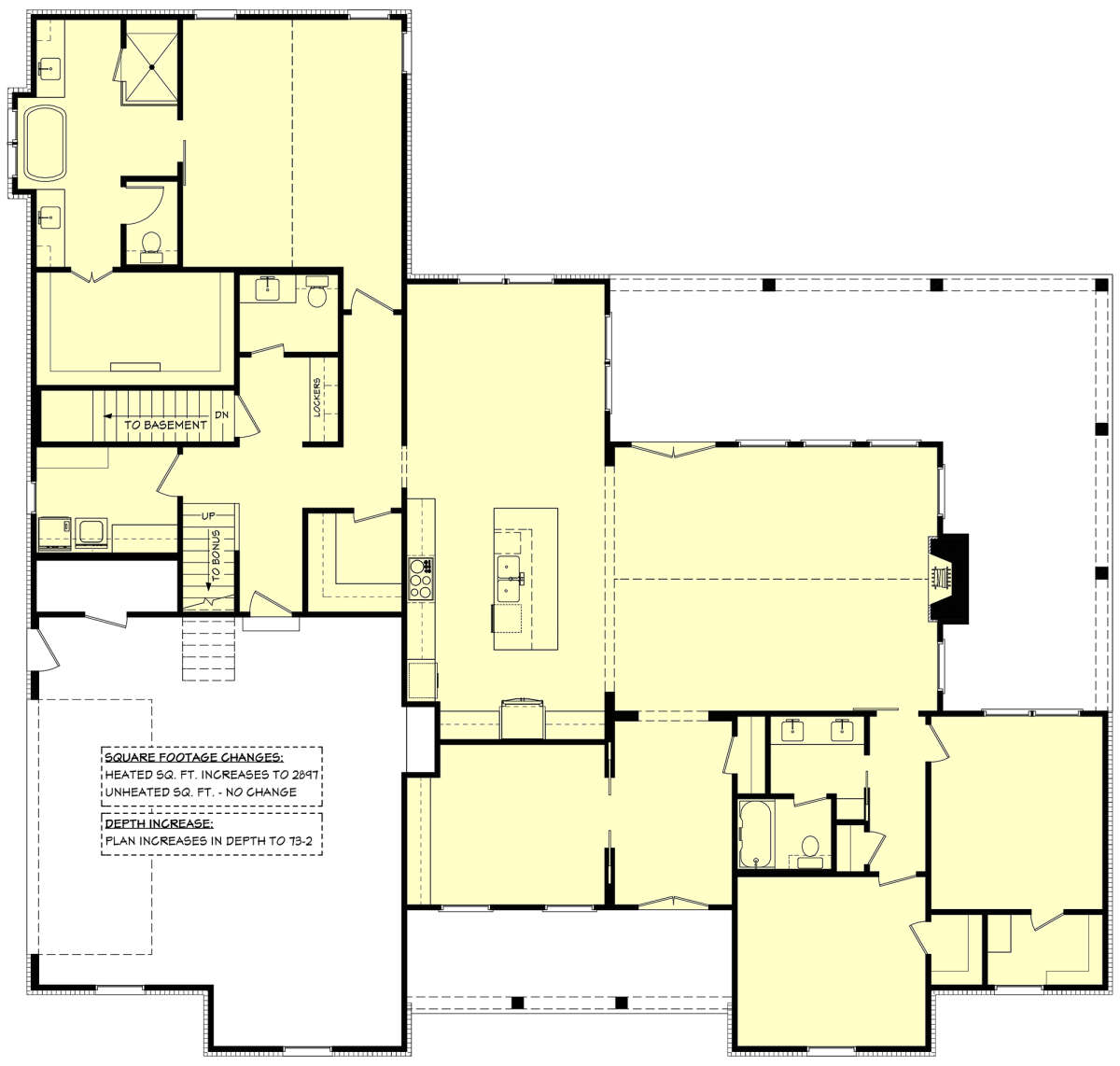
Inside, the layout centers around an expansive open-concept living area that connects the great room, kitchen, and dining space. This central zone serves as the heart of the home, creating a comfortable environment where daily family life and social gatherings naturally come together. The single-story configuration ensures easy movement throughout the home while maintaining spacious and well-proportioned rooms.
The design uses a split-bedroom arrangement, positioning the primary suite in a private section of the home while the additional bedrooms are located in a separate wing. This thoughtful organization provides privacy while still keeping convenient access to the main living areas.

Kitchen & Living Areas
The kitchen functions as both a practical workspace and a social hub for the household. A large center island offers generous preparation space while also providing seating for casual meals or conversation. Ample cabinetry and pantry storage help maintain an organized cooking environment, making the kitchen both efficient and inviting.
The open connection between the kitchen, dining area, and great room allows activities such as cooking, dining, and relaxing to happen simultaneously. High ceilings and large windows fill the living spaces with natural light, creating a bright and welcoming atmosphere for everyday living.
Bedrooms & Bathrooms
The primary suite is designed as a private retreat that prioritizes comfort and relaxation. The spacious bedroom connects to a well-appointed bathroom that typically includes dual vanities, a large shower, and a generous walk-in closet. This suite provides homeowners with a peaceful environment separated from the more active areas of the home.
Two additional bedrooms offer comfortable accommodation for family members or guests. These rooms share access to nearby bathrooms, ensuring both convenience and privacy throughout the home.

Bonus Spaces
Homes of this size often include flexible areas that can adapt to a variety of lifestyle needs. These spaces may serve as a home office, hobby room, or recreation area depending on how the homeowner chooses to use them. Flexible rooms allow the home to evolve over time while maintaining the efficiency of the original floor plan.

Outdoor Living
Outdoor living areas extend the comfort of the home beyond its interior walls. Covered porches create welcoming environments for relaxing outdoors, enjoying meals with family, or hosting gatherings with friends. These spaces connect naturally with the main living areas, allowing indoor and outdoor activities to flow seamlessly together.
The combination of open interior spaces and inviting exterior areas encourages a lifestyle that blends comfort, relaxation, and social connection.
Practical Features
The home typically includes a spacious garage that provides secure parking as well as additional storage for tools, equipment, or recreational gear. Practical areas such as a laundry room, storage closets, and well-planned circulation paths help keep daily routines organized and efficient.
The single-story layout also improves accessibility and long-term convenience by keeping all primary living spaces on one level.
Lifestyle Value
This modern farmhouse house plan offers a lifestyle centered around comfort, flexibility, and welcoming design. The open living areas encourage family interaction and entertaining, while the private bedroom arrangement ensures peaceful retreats for rest and relaxation.
The blend of traditional farmhouse charm and contemporary interior planning creates a home that remains both stylish and functional for a wide variety of lifestyles.
Construction Cost Estimate (United States)
Constructing a home of approximately 2,792 square feet in the United States typically falls within a mid-to-upper construction budget depending on region, labor rates, and material selections. Homes of this size require significant structural framing, roofing systems, insulation, and interior finishing work.
Premium materials such as stone exterior accents, custom cabinetry, luxury flooring, and high-end appliances can increase the overall construction cost. Additional factors including site preparation, foundation type, landscaping, and regional labor markets will also influence the final project budget. Working with an experienced builder early in the planning process helps ensure the design aligns with realistic construction expectations while maintaining the architectural vision of the home.













