This charming modern farmhouse offers approximately 2,801 square feet of thoughtfully designed living space arranged across a comfortable single-story layout. Featuring four bedrooms and three and a half bathrooms, the home blends traditional farmhouse character with modern open living. The design focuses on spacious gathering areas, practical everyday features, and inviting outdoor spaces that enhance both comfort and functionality. With a flexible two-to-three-car garage option and a wide footprint, the plan provides a balanced combination of style, livability, and architectural charm. :contentReference[oaicite:0]{index=0}

Exterior & Curb Appeal
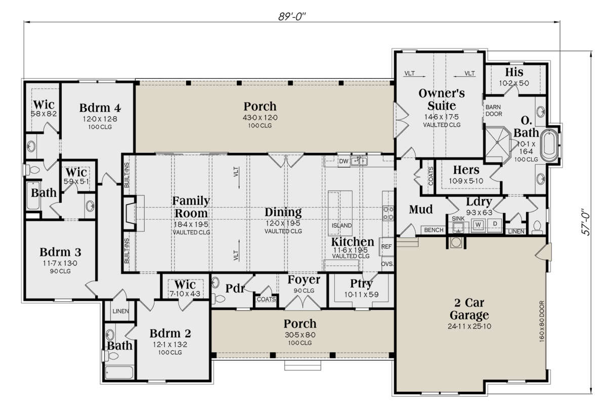
The exterior reflects the warm and welcoming aesthetic that defines modern farmhouse architecture. Board and batten siding, decorative window panels, dormers, and a spacious covered front porch create a façade that feels timeless and inviting. The porch provides ample room for outdoor seating, seasonal decorations, and relaxed moments enjoying the surrounding neighborhood.
The home spans roughly 89 feet in width and 57 feet in depth, creating a broad yet efficient footprint that fits comfortably on many residential lots. A side-entry garage keeps the front elevation visually clean while contributing to the overall farmhouse charm. :contentReference[oaicite:1]{index=1}
Interior Layout
The interior layout begins with a short foyer that includes a coat closet and a nearby powder room for guests. Beyond the entry, the floor plan opens into a spacious living zone where the dining room, kitchen, and family room are visually connected. This open arrangement forms the central hub of the home and encourages comfortable interaction during daily routines and social gatherings.
The home features a split-bedroom configuration that positions the primary suite in a private corner while the secondary bedrooms occupy the opposite wing. This thoughtful organization maintains privacy while ensuring that all rooms remain conveniently connected to the central living spaces. :contentReference[oaicite:2]{index=2}

Kitchen & Living Areas
The kitchen is designed to function as both a practical workspace and a social centerpiece. A large center island provides additional preparation space as well as seating for casual meals. Extensive countertops, a spacious walk-in pantry, and generous cabinetry make the kitchen highly efficient for everyday cooking and entertaining.
The adjoining family room creates a warm and inviting environment with a fireplace and built-in shelving that serve as the focal point of the space. A vaulted ceiling unifies the kitchen, dining area, and family room, enhancing the openness of the layout. French doors lead directly to the rear porch, allowing natural light to fill the interior while creating an easy transition to outdoor living. :contentReference[oaicite:3]{index=3}

Bedrooms & Bathrooms
The primary suite provides a peaceful retreat positioned away from the home’s main activity areas. The bedroom features a vaulted ceiling and direct access to the rear porch, creating a quiet and relaxing environment. The adjoining bathroom includes a spacious layout with dual vanities, a large shower, and separate walk-in closets for added storage and organization.
Three additional bedrooms are located on the opposite side of the home. One bedroom includes its own private bathroom, making it ideal for guests or extended family members. The remaining two bedrooms share a Jack and Jill bathroom with separate vanities, allowing multiple occupants to use the space comfortably. :contentReference[oaicite:4]{index=4}
Bonus Spaces
Flexible spaces within the design allow homeowners to adapt the layout to their lifestyle needs. One of the secondary bedrooms can easily function as a home office, study, or hobby room if fewer sleeping spaces are required. These adaptable rooms provide long-term flexibility as family needs evolve.
Additional storage areas throughout the home help maintain organization while supporting everyday activities.

Outdoor Living
Outdoor living is an important element of this farmhouse design. The rear porch features a ten-foot ceiling and stretches roughly forty-three feet across the back of the home, providing generous space for outdoor seating, grilling, and dining. This covered area offers protection from the elements while allowing homeowners to enjoy fresh air and outdoor gatherings.
The strong connection between the great room and the rear porch creates a seamless indoor-outdoor lifestyle that is ideal for entertaining or simply relaxing outdoors. :contentReference[oaicite:5]{index=5}

Practical Features
The home includes a two-car garage with the option to expand to a three-car configuration depending on homeowner preferences. The garage connects directly to a mudroom where coats, shoes, and everyday items can be organized before entering the main living areas.
Other practical features include main-level laundry, generous storage closets, and wide circulation paths that make daily routines efficient and convenient. These thoughtful elements ensure the home remains comfortable and functional for long-term living. :contentReference[oaicite:6]{index=6}
Lifestyle Value
This modern farmhouse design offers a lifestyle centered around comfort, openness, and welcoming architecture. The spacious living areas encourage family interaction and entertaining, while the private bedroom layout provides quiet retreats for relaxation.
By combining traditional farmhouse charm with modern interior planning, the home creates a balanced environment that supports both relaxed everyday living and memorable gatherings with friends and family.
Construction Cost Estimate (United States)
Building a home of approximately 2,801 square feet in the United States typically falls within a mid-to-upper construction range depending on regional labor costs, materials, and finish selections. The total investment can vary significantly based on the quality of finishes, complexity of the roof structure, and local building conditions.
Farmhouse homes often include features such as large covered porches, decorative siding, and custom interior elements that may influence the final construction budget. Additional costs may include site preparation, foundation type, landscaping, and energy-efficient upgrades. Consulting with an experienced builder early in the planning process helps ensure that the project remains aligned with realistic cost expectations while maintaining the architectural quality of the design.













