This well-designed modern farmhouse plan offers approximately 2,762 square feet of comfortable living space arranged across a spacious single-story layout. With four bedrooms, three full bathrooms, and one half bath, the home provides a balanced blend of open communal areas and private retreats. The design emphasizes practical family living while maintaining the clean, welcoming aesthetic that defines modern farmhouse architecture. A flexible layout, bonus room option, and generous garage space make this plan highly adaptable for modern households. :contentReference[oaicite:0]{index=0}


Exterior & Curb Appeal
The exterior reflects the timeless appeal of modern farmhouse design with balanced gables, a welcoming front porch, and large windows that enhance both symmetry and natural lighting. The wide footprint gives the home a confident presence while maintaining an approachable and relaxed character. Modern farmhouse architecture often combines traditional farmhouse elements with contemporary detailing, creating homes that feel warm yet stylish. :contentReference[oaicite:1]{index=1}
The front porch acts as a natural focal point, inviting homeowners and guests to enjoy outdoor relaxation while reinforcing the home’s welcoming atmosphere. Clean rooflines and thoughtful proportions ensure the home maintains strong curb appeal in both rural and suburban settings.
Interior Layout
Inside, the home is organized around a flowing open floor plan that encourages connection between key living areas. The central great room anchors the layout and provides a comfortable gathering space that connects directly with the kitchen and dining areas. This arrangement allows for easy movement throughout the home while maintaining defined zones for daily activities.
The single-story layout enhances accessibility and convenience, while the split-bedroom configuration separates the primary suite from the secondary bedrooms. This thoughtful placement ensures privacy while still maintaining easy access to shared spaces.

Kitchen & Living Areas
The kitchen functions as the heart of the home, offering both efficiency and social interaction. A spacious island provides generous workspace for meal preparation and also serves as a casual dining and gathering area. Surrounding cabinetry ensures ample storage, while the nearby dining space allows family meals and gatherings to flow naturally.
Large windows bring natural light into the kitchen and living areas, enhancing the sense of openness and warmth. The open-concept design ensures that cooking, dining, and relaxing can happen simultaneously without isolating anyone from the activity in the home.

Bedrooms & Bathrooms
The primary suite offers a peaceful retreat designed for comfort and convenience. The spacious bedroom connects to a well-appointed bathroom that typically includes dual vanities, a large shower, and generous closet space to support daily routines.
Three additional bedrooms are thoughtfully arranged to accommodate family members or guests. Two of the bedrooms share a Jack and Jill bathroom, while another bedroom has convenient access to a nearby hall bath. This arrangement ensures both privacy and efficiency for busy households.

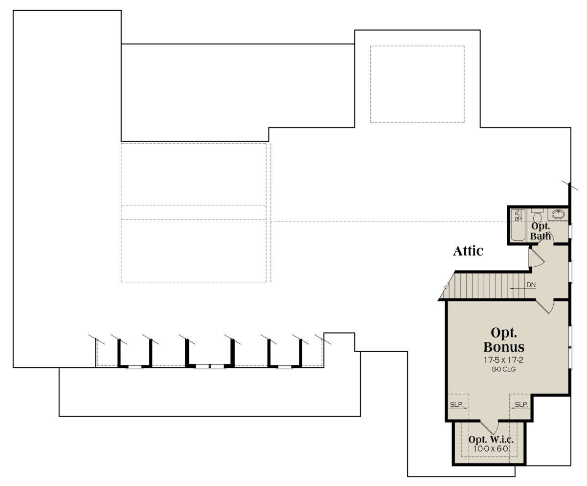
Bonus Spaces
A bonus room of approximately 515 square feet provides valuable flexibility for homeowners who need additional living space. This area can serve as a media room, playroom, hobby area, or guest retreat depending on household needs. The optional bonus room allows the home to grow and adapt as lifestyle requirements change. :contentReference[oaicite:2]{index=2}

Outdoor Living
Outdoor living spaces enhance the overall lifestyle offered by this modern farmhouse design. Covered porch areas create comfortable outdoor environments for relaxing, dining, or entertaining. Positioned near the main living areas, these spaces create a seamless connection between indoor comfort and outdoor enjoyment.
The combination of interior openness and accessible outdoor spaces makes the home ideal for gatherings, family activities, and enjoying the surrounding landscape.

Practical Features
This home includes a two-to-three car garage providing secure parking as well as additional storage space. A mudroom located near the garage entry helps keep daily routines organized and prevents clutter from entering the main living areas.
Additional features such as a dedicated office, laundry room on the main floor, and generous storage throughout the home enhance everyday practicality. The home’s wide layout also allows for comfortable room proportions and smooth circulation between spaces. :contentReference[oaicite:3]{index=3}
Lifestyle Value
This modern farmhouse plan is ideal for homeowners who value open living spaces combined with comfortable private areas. The design encourages connection through shared living zones while providing peaceful retreats through well-separated bedrooms. Flexible spaces such as the office and bonus room allow the home to adapt to evolving lifestyle needs.
The combination of timeless farmhouse style and modern functional planning ensures that this home remains both visually appealing and highly livable for years to come.
Construction Cost Estimate (United States)
Constructing a home of approximately 2,762 square feet in the United States typically falls within a moderate to upper mid-range construction budget depending on region, labor rates, and finish selections. In areas with average construction costs, homes of this size often fall within a comfortable mid-level pricing range. Selecting premium materials such as custom cabinetry, stone exterior accents, luxury flooring, and energy-efficient systems will increase the overall investment.
Additional factors including site preparation, foundation type, landscaping, and regional labor markets can also affect the final cost. Working with a qualified local builder early in the planning process helps ensure the design aligns with realistic construction budgets and local building requirements.

















