This impressive Craftsman home plan offers approximately 5,092 square feet of thoughtfully designed living space, delivering a perfect balance of architectural character, spacious interiors, and modern comfort. With four to five bedrooms, multiple bathrooms, and expansive gathering areas, the layout supports both large families and homeowners who enjoy entertaining. The single-story footprint spreads across a wide layout, allowing generous room proportions and a natural flow between spaces that enhances everyday living. :contentReference[oaicite:0]{index=0}


Exterior & Curb Appeal
The exterior reflects the timeless appeal of Craftsman architecture, known for its strong structural lines, welcoming porch spaces, and natural materials. Wide roof overhangs, decorative gables, and carefully balanced proportions give the home a confident and elegant presence. The design’s wide footprint enhances its visual impact while maintaining a warm and inviting atmosphere. Large windows bring rhythm to the facade and allow natural light to brighten the interior, reinforcing the home’s connection with the surrounding landscape.

Interior Layout
Inside, the layout emphasizes open living areas combined with well-defined private zones. The great room serves as the central hub of the home, linking seamlessly with the kitchen and dining spaces to create an ideal setting for both daily family life and entertaining guests. With all primary living areas located on the main level, the plan offers convenient accessibility while maintaining generous ceiling heights and expansive room sizes. Bedrooms are arranged in a split configuration to ensure privacy and comfort throughout the home. :contentReference[oaicite:1]{index=1}

Kitchen & Living Areas
The kitchen is designed to function as both a practical workspace and a social gathering area. A large central island provides ample preparation space while offering seating for casual dining and conversation. Extensive cabinetry and countertop space ensure that the kitchen remains organized and efficient, even during large gatherings or holiday meals.
The kitchen flows naturally into the dining area and great room, creating a cohesive environment where family members and guests can interact comfortably. Large windows and high ceilings enhance the openness of these spaces while providing abundant natural light.

Bedrooms & Bathrooms
The primary suite serves as a luxurious private retreat. The spacious bedroom connects to a well-appointed bathroom featuring dual vanities, a large shower, and generous closet space. This suite offers homeowners a peaceful environment separate from the rest of the household.
Additional bedrooms are positioned thoughtfully throughout the layout to accommodate family members or guests. Each bedroom has convenient access to nearby bathrooms, ensuring comfort and privacy for everyone living in or visiting the home.
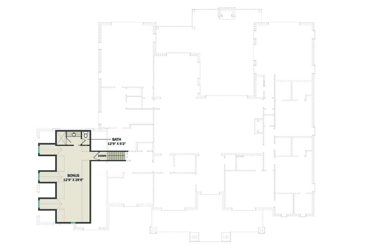
Bonus Spaces
An optional bonus room adds approximately 615 square feet of additional space that can be customized to fit a variety of lifestyle needs. This flexible area can serve as a media room, recreation space, home office, or additional guest suite. The ability to finish this bonus space provides homeowners with the flexibility to adapt the home as their needs evolve. :contentReference[oaicite:2]{index=2}

Outdoor Living
Outdoor living plays an important role in the design of this Craftsman home. Covered porch areas provide generous space for relaxing outdoors, entertaining guests, or enjoying meals in the open air. The rear porch in particular offers a large outdoor living zone that connects naturally with the main interior spaces, creating a smooth transition between indoor and outdoor environments. :contentReference[oaicite:3]{index=3}
Practical Features
The home includes a spacious three-car garage that provides secure parking as well as additional storage. Utility areas such as the mudroom and laundry spaces are positioned to help maintain organization throughout the house. The wide layout also allows for larger closets and storage areas, ensuring that everyday living remains efficient and clutter-free. :contentReference[oaicite:4]{index=4}

Lifestyle Value
This Craftsman house plan is ideal for homeowners who appreciate classic architectural character combined with modern living convenience. The large communal spaces encourage gatherings and family interaction, while the well-separated bedroom zones provide quiet retreats for rest and privacy. Flexible spaces such as the bonus room ensure the home can adapt to changing lifestyle needs over time.
Construction Cost Estimate (United States)
Building a home of approximately 5,092 square feet in the United States generally falls within a high-end construction budget depending on region, materials, and finish selections. In many parts of the country with moderate labor costs, homes of this size typically fall within the upper-tier residential construction category. Premium upgrades such as stone or brick exterior finishes, custom cabinetry, luxury flooring, and high-performance energy systems can increase the overall cost significantly. Regional labor rates, site preparation requirements, foundation type, and landscaping will also influence the final construction investment. Working with an experienced local builder early in the planning process helps ensure that the project aligns with realistic budgets and construction expectations.

















