This thoughtfully designed modern farmhouse offers approximately 2,763 square feet of comfortable living space arranged across a spacious single-story layout. The plan includes four bedrooms and three and a half bathrooms, providing both privacy and flexibility for modern family life. With open gathering areas, a welcoming farmhouse aesthetic, and a practical three-car garage, the design blends rustic warmth with contemporary functionality. The layout emphasizes natural flow, generous room sizes, and inviting outdoor spaces that extend the home’s living experience. :contentReference[oaicite:0]{index=0}

Exterior & Curb Appeal
The exterior reflects the welcoming charm that defines modern farmhouse architecture. Strong rooflines, a balanced façade, and a mix of board and batten siding with masonry accents give the home a timeless rural character while maintaining a refined appearance. Large windows across the front elevation add visual rhythm while allowing sunlight to brighten the interior.
The home spans nearly 90 feet in width and roughly 69 feet in depth, creating a wide and confident street presence that fits beautifully on suburban or rural lots. Covered front and rear porches reinforce the farmhouse aesthetic and create inviting outdoor spaces that complement the home’s architecture. :contentReference[oaicite:1]{index=1}
Interior Layout
Inside, the layout centers around an expansive open-concept living area designed to encourage connection and comfort. The great room, kitchen, and dining space are arranged in a cohesive configuration that allows daily activities and social gatherings to flow naturally. High ceilings and wide openings between rooms enhance the sense of openness and light throughout the home.
The design uses a split-bedroom arrangement that places the primary suite in a private section of the house while the additional bedrooms are located in another wing. This arrangement maintains privacy while still keeping convenient access to shared living spaces. :contentReference[oaicite:2]{index=2}

Kitchen & Living Areas
The kitchen serves as the central hub of the home, combining practical design with social functionality. A large island provides generous preparation space and seating for casual meals or conversation. Surrounding cabinetry and a walk-in pantry offer extensive storage for cookware, appliances, and pantry items.
Adjacent to the kitchen, the great room provides a comfortable space for relaxing and entertaining. A separate keeping room adds additional gathering space, making the home especially well suited for hosting guests or spending relaxed family evenings together. :contentReference[oaicite:3]{index=3}
Bedrooms & Bathrooms
The primary suite is designed as a peaceful retreat that combines comfort and privacy. The spacious bedroom connects to an elegant bathroom with dual vanities, a large shower, and a generous walk-in closet. One distinctive feature is the direct connection between the primary closet and the laundry room, which improves convenience for everyday routines.
Three additional bedrooms provide comfortable accommodations for family members or guests. One bedroom can function as a private guest suite, while the remaining rooms share access to nearby bathrooms designed for efficiency and comfort. :contentReference[oaicite:4]{index=4}

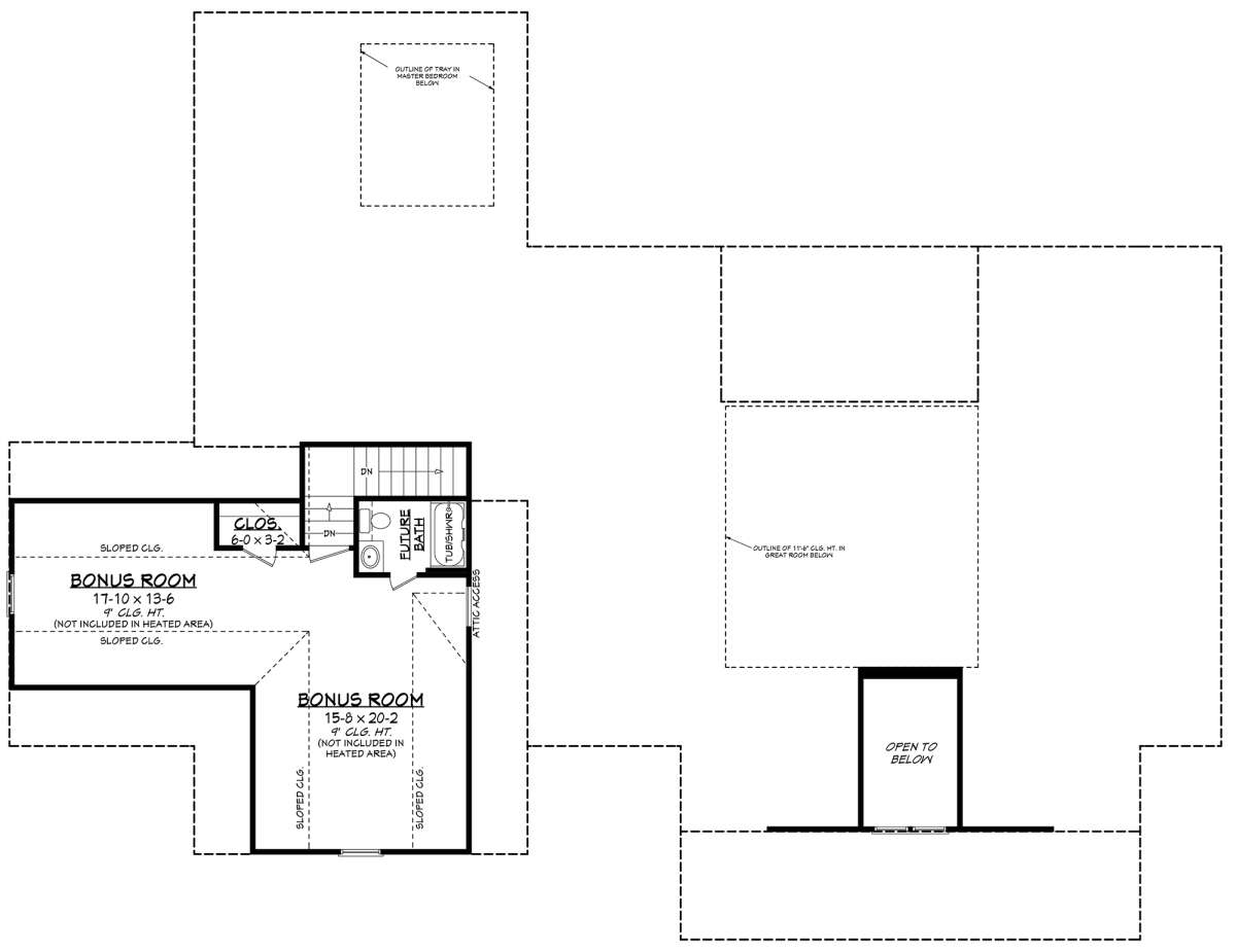
Bonus Spaces
An optional bonus room above the garage provides approximately 685 square feet of additional flexible space. This unfinished area can later be converted into a media room, home office, recreation space, or guest suite depending on the homeowner’s needs.
The inclusion of this future space allows the home to expand over time while preserving the efficiency of the main floor layout. :contentReference[oaicite:5]{index=5}

Outdoor Living
Outdoor living is an important element of this modern farmhouse design. Covered porch areas provide inviting places to relax outdoors, enjoy morning coffee, or host evening gatherings with friends and family.
The rear porch connects naturally to the main living areas, allowing indoor and outdoor spaces to function together. This connection encourages a lifestyle that embraces both comfortable interior living and outdoor enjoyment.
Practical Features
The home includes a spacious three-car garage providing nearly 950 square feet of additional space for vehicles, tools, or recreational equipment. Practical features such as a mudroom, dedicated laundry room, and organized storage areas help keep the household running smoothly.
Wide hallways and thoughtful circulation throughout the floor plan ensure that the home remains easy to navigate and highly functional for daily living. :contentReference[oaicite:6]{index=6}

Lifestyle Value
This modern farmhouse design is ideal for homeowners who appreciate the warmth of traditional architecture combined with modern convenience. The expansive living areas encourage family interaction and entertaining, while the private bedroom layout ensures peaceful spaces for rest and relaxation.
The addition of flexible rooms and future expansion space ensures the home can adapt as family needs evolve, making it a practical long-term residence with timeless architectural appeal.
Construction Cost Estimate (United States)
Building a home of approximately 2,763 square feet in the United States typically falls within a mid-to-upper construction range depending on regional labor rates, materials, and finish selections. For a home of this size, costs may vary widely depending on structural complexity, site preparation, and the quality of interior finishes.
Upgrades such as stone exterior accents, custom cabinetry, high-end appliances, and luxury flooring can significantly increase the overall construction investment. Additional considerations such as foundation type, landscaping, and energy-efficient systems also influence the final budget. Working closely with a local builder early in the planning process helps ensure that the design aligns with realistic construction expectations and long-term value.













